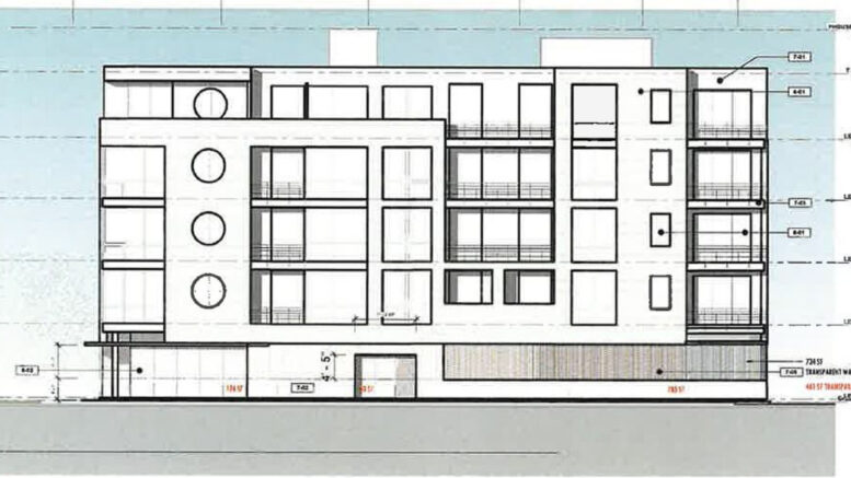
Plans Revealed For Mixed-Use Development At 2565 West Madison Street In Near West Side
Plans have been revealed for a new mixed-use development at 2565 West Madison Street in the Near West Side. Located just west of the intersection with North Western Avenue and across the street from Johnny’s Icehouse, the project will replace a large vacant lot on the edge of Garfield Park.
Read More




