Plans Revealed For Residential Development In Near North Side
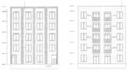
Updated plans have been revealed for a residential development at 1453 North Sedgwick Street in the Near North Side. Located at the intersection with West Blackhawk Street, the proposal would replace a pair of three-story homes across from the Marshall Field Garden Apartments.





