Plans have been revealed for a new mixed-use development at 1040 West Belmont Avenue in Lake View. Located near the corner of North Kenmore Avenue, just a few steps from the CTA Belmont station, the project would replace a large one-story commercial building currently home to a Giordano’s outpost.

Site context map of 1040 W Belmont Ave via Google Maps

View of 1040 W Belmont Ave via Google Maps
The project is being led by Kiferbaum Development Group, with local firm Jonathan Splitt Architects handling the design. The completed structure would rise five stories and 71 feet 6 inches in height, hugging the street front and filling a gap between two existing three-story buildings. It would join similar nearby developments such as 925 W Belmont and 1215 W Belmont.

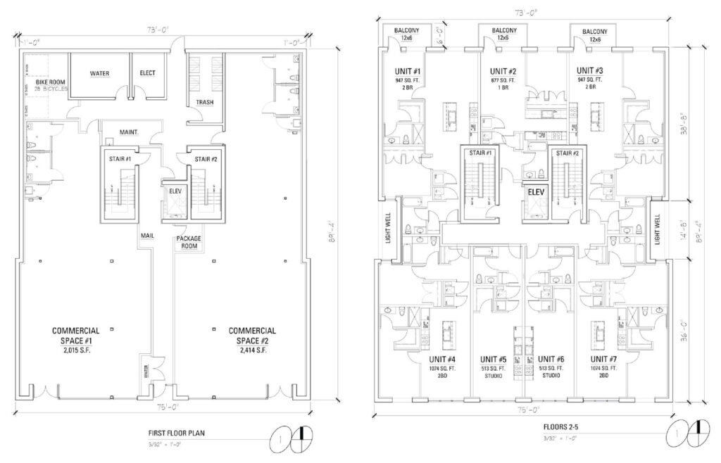
Floor plans of 1040 W Belmont Ave by Jonathan Splitt Architects
The majority of the building’s ground floor would be occupied by 4,429 square feet of commercial space, split into two storefronts by a front entry corridor. Additionally, eight parking spaces would be provided at the rear, accessed from the alley. Above this would be 28 residential units, consisting of eight studios, four one-bedroom units, and 16 two-bedroom layouts.

Elevations of 1040 W Belmont Ave by Jonathan Splitt Architects
In total, six of the units would be designated as affordable. Select units would feature small balconies, while all residents would have access to a shared rooftop deck. The building would be clad in a red-brick façade with cast-stone details. The development team will now begin the process of rezoning the site and securing approval from the alderman and the city. No timeline has been announced.
Subscribe to YIMBY’s daily e-mail
![]()
Follow YIMBYgram for real-time photo updates
Like YIMBY on Facebook
Follow YIMBY’s Twitter for the latest in YIMBYnews


Copy and paste into every empty or underutilized lot in the city, please and thank you
It’s beginning to look like the era of having recessed balconies cover the face of the building is finally fading.
Hopefully we get back to basic principles that made our architecture attractive.
Like… you can blame developers, but it’s what the masses want too. Design integrity is just as at fault as those buying into the ideas.
I prefer a facade that respects the three layers for a balanced face. And it’s not like front-facing balconies are anything new; we just did it so much better back then. I hope the real change is our masses wanting more of the heritage and less of the unenthusiastic minimalism. The developers provide what we eat. If they can sell ice to an eskimo, why would they try harder?
Selling ice to Eskimo? With global warming heating up you might just have a viable business idea. 🤔
Nice upgrade! Looking forward to it
Whats going to happen to the Giordanos?
Don’t worry Richard, we’ll be taking it to a farm (suburb) upstate.
They been there , I am guessing 30 years?
They’re Giorda-going.
Gior-DONEZO is the dad-joke you were looking for
Every time I have been in, it wasn’t that busy. It may close (or hopefully relocate to a smaller space)