Chicago’s first Native American-focused affordable housing development is topped out at 2907-2917 West Irving Park Road in the Irving Park neighborhood. Jigzibik has risen to its full seven-story height after taking over a vacant mid-block lot this past summer. The building’s sawtooth design is clearly visible, with inset balconies ready to take shape.

Rendering of Jigzibik by Canopy Architecture + Design

Rendering of Jigzibik by Canopy Architecture + Design

Looking west on Irving Park Road. Photo by Daniel Schell

Photo by Daniel Schell

Photo by Daniel Schell

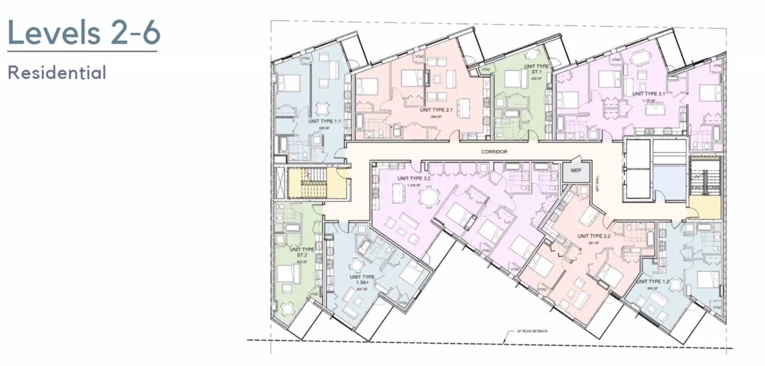
Co-developers Full Circle Communities and Visionary Ventures are putting up 45 new units of affordable housing in a 62,000-square-foot structure on the site. Floor plans will include 10 studio apartments plus 15 one-bedroom, 10 two-bedroom, and 10 three-bedroom layouts. Dwelling units will occupy levels two through six, with a community room, art/maker space, roof deck and garden beds, and a computer lab/library on the seventh floor. Canopy Architecture + Design is the design architect, and Skender is performing general contracting duties.

First floor and site plan by Canopy Architecture + Design

Residential floor plans by Canopy Architecture + Design

Top floor plan by Canopy Architecture + Design

Photo by Daniel Schell

Photo by Daniel Schell

Photo by Daniel Schell

Photo by Daniel Schell

Photo by Daniel Schell
The first floor will include a residential lobby, management and supportive service spaces and maintenance offices, as well as commercial space for a non-profit tenant. The construction permit, addressed as 2909 West Irving Park Road and issued by the city on May 6 of last year, refers to that retail space as a “white box unfinished tenant space” to be built out by a separate, future permit. It also calls for 16 partially covered parking spaces. A demolition permit was issued on June 11 to remove remaining foundations from the vacant lot, which lies between North Francisco Avenue and North Richmond Street.

Photo by Daniel Schell

Photo by Daniel Schell

From North Richmond Street, looking east. Photo by Daniel Schell

West façade. Photo by Daniel Schell

From the alley. Photo by Daniel Schell

Photo by Daniel Schell

Photo by Daniel Schell

Photo by Daniel Schell
The apartments and facilities are intended to serve the Native American community, but will not be exclusive to Native American tenants. All 45 units will be affordable to households earning 15 percent AMI to 60 percent AMI. The construction permit was issued with a reported cost of $26 million; the full development is expected to cost about $34 million. The development team anticipates a 12-month construction cycle; having broken ground in July of last year, that sets a prospective completion date of early in the third quarter of this year.

2907-2917 West Irving Park, May 2025. Photo by Daniel Schell

A demolition permit was issued to dig out these old foundations. Photo by Daniel Schell

Notice of a zoning change request posted on the construction fence prior to groundbreaking. Photo by Daniel Schell

Site context of 2907-2917 West Irving Park Road, via Google Maps

Local bus stops, via Google Maps
Tenants of Jigzibik will reside mere steps away from stops for the CTA’s Route 80 bus at Irving Park Road and Francisco Avenue. The newly-routed #93 California/Dodge bus stops one block east at California Avenue for north-south travel. The nearest elevated train platform is the Francisco Brown Line almost a mile north. However, a ride east on the #80 bus allows for connecting with the Irving Park Brown Line station 1.3 miles away. A mile and a half west on the #80 bus leads to the Irving Park Blue Line and Metra UP-NW trains.
Subscribe to YIMBY’s daily e-mail
![]()
Follow YIMBYgram for real-time photo updates
Like YIMBY on Facebook
Follow YIMBY’s Twitter for the latest in YIMBYnews


Acute angles in bedrooms are often a challenge, but I really like the floor plans of these units.
I hope the facade comes out as clean as the form.
I love the color and design!
I like the design. Perfect density for the location too.
800K a unit to build a bunch of small apartments. Well over double what this should actually cost. I still don’t understand how this benefits the community?
By providing housing to a city with a housing shortage? Don’t be pedantic
This building looks great. If you are looking for affordable housing, you want a comfortable space, not necessarily a luxury/lavish space.
The addition of a balcony for every apartment does add a bit of luxury
and living space, which anyone can appreciate. All affordable housing
being built should be appreciated.