The Chicago City Council has approved plans for the redevelopment of the three-building property at 900 West Fulton Market. Situated at the intersection of West Fulton Market and North Peoria Street, the project’s current iteration was revealed two years ago and received preliminary approval at that time. Now, developer Midwest Property Group is once again moving forward with the plans.

Current view of 900 W Fulton Market by NORR

Rendering of 900 W Fulton Market by NORR
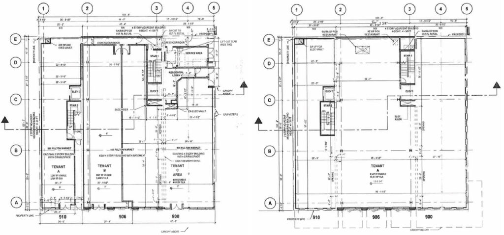
The project would rehabilitate the two outer buildings at 900 and 910 W. Fulton, while replacing the middle building at 906 W. Fulton with a new five-story structure rising 72 feet in height. The redevelopment will also unify all floors across the three structures, creating three ground-floor storefronts along with a new residential and office entrance along the side.

Lower floor plans of 900 W Fulton Market by NORR

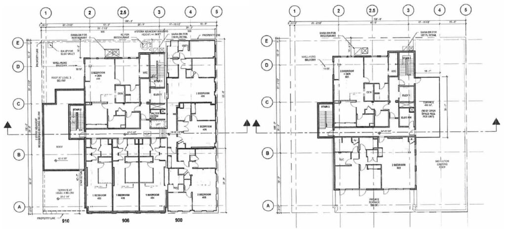
Upper floor plans of 900 W Fulton Market by NORR
The project will offer approximately 29,000 square feet of commercial space, including nearly 10,000 square feet of street-front retail, as well as dedicated office space on the lower three floors. A small rooftop terrace above 910 W. Fulton will be provided for one tenant. The upper floors will contain nine residential units consisting of one- and two-bedroom layouts.

Elevation of 900 W Fulton Market by NORR

Elevation of 900 W Fulton Market by NORR
The two rehabilitated buildings will receive new windows while preserving much of their historic character. The new structure will be clad in red brick, with windows and detailing designed to fit the surrounding context. With city approval in hand, the project can now move forward with permitting, though no construction timeline has been announced.
The development would bring new activity to a soon-to-be-vacated block, as the neighboring Time Out Market is set to close later this month.
Subscribe to YIMBY’s daily e-mail
![]()
Follow YIMBYgram for real-time photo updates
Like YIMBY on Facebook
Follow YIMBY’s Twitter for the latest in YIMBYnews


Love the redevelopment just wish it was taller considering it is 2 blocks from the Morgan Street Stop
I’m disappointed it’s taken this long to reach this point. Very similar to the 2020 rendering, then the wild tower proposal with the awful carport, then the shorter version of 2020’s.
The corner building and other shorty getting preserved is a chef’s kiss. The new construction easily could’ve been the 10-story range. (I say easy like it can be done in legos) Obviously, more goes into a development than just words. Let’s just get it done and wrap another block up.
Probably because they want to make it look nice and historic which is often an uphill battle in construction these days, but I agree with you it should be taller and these things should not take so long.
I don’t know much about this project but West Loop in general should be a lot more built up by now. It was the most “booming” part of Chicago (and probably all of the midwest) for a few years and maybe still is but a lot of that momentum has been slowed by so many projects being delayed, or just unapproved for years which is as good as no plan at all for people who are in the area walking, driving, riding by countless empty lots in an area that has extremely high potential and ongoing development. Is it really that hard to build a building that would make the land owners tons of money instead of leaving it empty? Call me naive but I don’t get why so many lots in west loop are still empty. Is it legal issues? Disagreements between land owners? It’s 2026 ffs
The slow pace is reflective of an unfavorable capital market and the high cost of construction. With lenders providing less debt at higher rates than in the past, investor return on equity drops significantly and makes raising equity much more challenging. Developers can be forced to scale back project scope or they sit and wait for more favorable capital markets.
Or maybe the developer was just busy with other projects.
Nonsense John .NYC is having no trouble at all with all types of new construction .
Bad leadership here is frightening developers and lenders away from Chicago .
George is right chicago has bad leadership hope it gets better
We need to bring back the guy who skipped pension payments and sold the parking meters. That was real leadership!