Plans have been revealed for a residential development at 1201 West Kinzie Street within Fulton Market. Located on the corner of North Racine Avenue, the project would replace a narrow, wedge-shaped vacant lot bordered by the Metra tracks to the south. The development is being led by LG Group.

Site context map of 1201 W Kinzie St via Google Maps
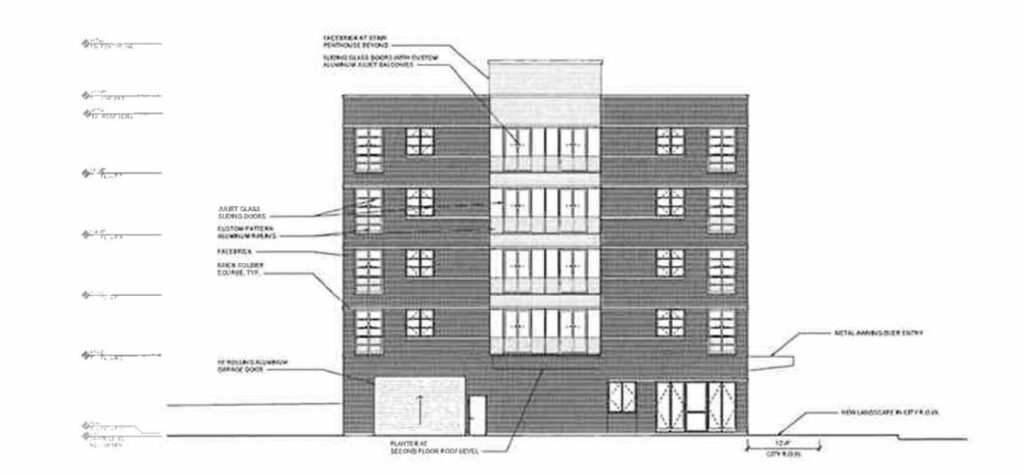
Set to rise five stories and approximately 68 feet in height, the relatively modest project bucks the trend of high-rise developments in the area—such as the 53-story tower proposed across the street at 420 North May. The smaller site and the current lending environment may be contributing factors to its scaled-down approach.

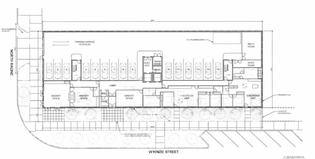
Ground plan of 1201 W Kinzie St by Dirk Denison Architects

Roof plan of 1201 W Kinzie St by Dirk Denison Architects
Designed by Dirk Denison Architects, the building will include some amenity space, a limited number of units, and a 15-vehicle parking garage on the ground floor. Residential floors will sit above, with a total of 66 units offered in a mix of studios, one-, two-, three-, and even four-bedroom layouts designed to accommodate larger families. Twenty percent of the units will be designated as affordable housing.

Elevation of 1201 W Kinzie St by Dirk Denison Architects
Residents will have access to a shared rooftop deck, as none of the individual units will include full-sized balconies. The exterior will feature a mix of brick and other paneling, though final materials have not yet been confirmed. As of now, no construction timeline has been announced. The developers have submitted a zoning application and are currently seeking city approval.
Subscribe to YIMBY’s daily e-mail
![]()
Follow YIMBYgram for real-time photo updates
Like YIMBY on Facebook
Follow YIMBY’s Twitter for the latest in YIMBYnews


This is great. I only wish there was retail on the ground level facing Kinzie. That would be pleasant retail corridor if built up.
Used to work in the area, the noise from the freight and Metra line is non-stop.
If anything, a commercial space or a high rise with a extra tall podium belongs here. Side question, what happened to the idea of adding a commuter train stop for the Metra trains coming through here? (tracks to the north of this proposed development)
Future metra stop would be closer to Ashland I believe. The spot they proposed will honestly be too far west to really even serve Fulton market
Yea definetely too far. Everything considered it seems like that stretch from Racine to Ogden is probably the best location with all things considered (cost, ease, etc).
Eventually fulton market will get fully developed until Ogden so it will help with the infill
Too far? It’s a 10 minute walk from Halstead to Ashland. Hardly a trek. I used to walk at least that far (there and back) at lunch routinely. Didn’t even break a sweat and I’m not exactly a gym rat.
I live in the area and have done a similar walk. It’s not a 10 min walk lol. Even google map shows something like a 25 min walk. And depending on what part of West Loop you are heading to it could be more.
Ok, from Halstead might be 20 min. But that’s reg eastern limit of the west loop. Assuming one walks at 3 mph. I’m 63, and until I stopped working downtown last year, I routinely walked that loop at lunch. If someone born at the end of the baby boom can do it, so can you whippersnappers. Look at it as free exercise before and after work.
Distance between stations is also an important factor to consider with diesel trains. 2 miles is already too close to both existing stations as it is. The entire idea for that being a Metra station seems untethered from reality without many other systemic changes occurring first.
Wow, this is painfully banal. Time was actually spent designing something this ugly. Amazing
I am rather surprised this is from LG. They have done some nice work in River North/Gold Coast. It’s a weird site with noise issues, but this???? Could be an opportunity to do something cool and would actually make people want to live there. I’ve always lived on the lake so maybe I don’t get it, but is the goal to cram as many buildings into Fulton Market as possible?
Buildings like this – undersized for the area – are built to stand for 25 years, then be torn down and replaced with something larger. There was a time they were called “taxpayer” buildings. This may be a sign that the West Loop is getting saturated – LG couldn’t see doing a big project, but wanted to get some return from their investment in land.
Exit stairs on ground level don’t comply with the building code. Same thing with the horizontal exit passageways.
As someone mentioned, LG has done some respectable projects previously. Don’t know what’s happening here?
Dirk Denison doing a mid-rise — nice!