The City of Chicago has issued a new construction permit for a residential building at 1628 West Division Street in the Wicker Park neighborhood. Vision II, from Chicago developer RDM Companies, will be built on the surface parking lot next to RDM’s Vision I at 1624 West Division, which was completed in 2021, and the Wicker Park Connection, a two-building project opened by a separate developer in 2016 and 2018.

Rendering of Vision II by Kennedy Mann

Rendering of Vision II by Kennedy Mann

Rendering of Vision II by Kennedy Mann

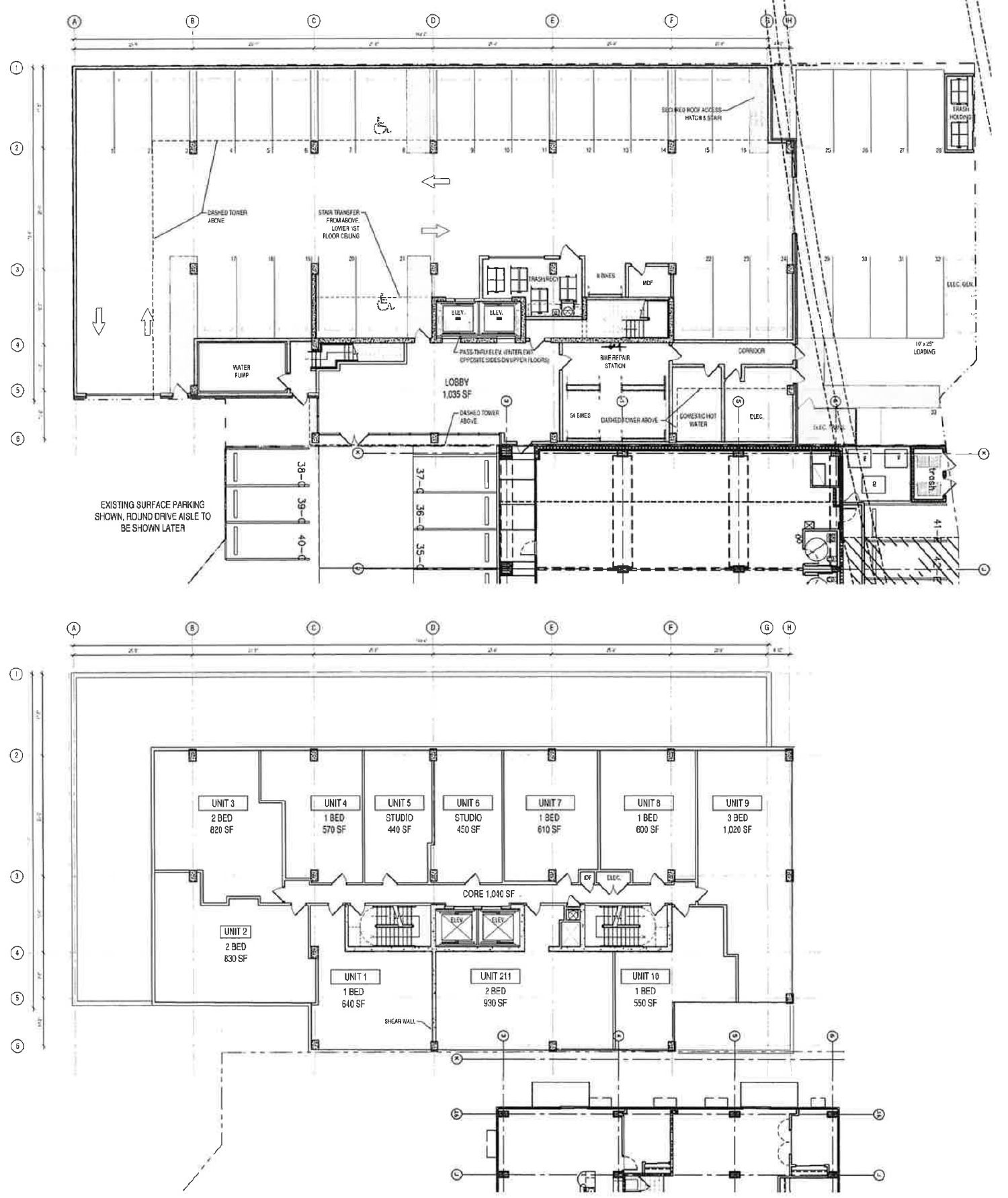
Floor plans by Kennedy Mann
Vision II is a 13-story, 121-unit tower designed by Kennedy Mann. The permit application dates way back to October 2022; it came through on April 9 with a reported cost of $38 million. Norcon is named as the general contractor, with Adjustable Concrete on board as the concrete contractor.
The dwelling units are expected to include a mix of studio apartments, one-bedroom, two-bedroom, and three-bedroom floor plans. Residences will range in size from 405 to 1,160 square feet, with 25 units designated as affordable. A parking garage on the first floor will hold about two dozen parking spaces. Resident amenities include a rooftop deck and exercise facilities.
When first planned, RDM expected completion as early as this spring, but as yet, no new opening date has been announced, nor is it clear if construction is ready to get underway immediately.
A tower crane permit hit the Chicago Data Portal on March 23. As the concrete contractor, Adjustable Concrete will be in charge of its operation.

Site context of Vision II (red) and Vision I (blue) via Google Maps

This surface parking lot will soon yield to 121 residential units. Image via Google Street View

Local CTA options, via Google Maps
Vision II will rise half a block from the intersection of North Ashland Avenue, West Division Street, and North Milwaukee Avenue. That junction is home to the Milwaukee Blue Line subway station and stops for CTA bus routes 56, 9, X9, and 70. Wicker Park is one of Chicago’s most walkable neighborhoods, putting a veritable plethora of dining, shopping, and leisure activities within a casual stroll.
Subscribe to YIMBY’s daily e-mail
![]()
Follow YIMBYgram for real-time photo updates
Like YIMBY on Facebook
Follow YIMBY’s Twitter for the latest in YIMBYnews


Awesome! More of this!
Guys will see this and say “hell yeah”
hell yeah
😂
Ring it up, another Wicker Park W
Hell yeah
First time in a while I read a post here and got excited lol
If you build it they will come.
Another piece of crap. This area is already overpopulated, overrated and overpriced. These “developers” know nothing of real architecture.
It looks like a perfectly good background building, which is really not very visible anyway.
Wicker park is not overpopulated given that it is a neighborhood in the middle of a large city. The density should be increased further by bulldozing the Lowe’s and the giant parking lots around it and replace it with a bunch of 25-30 story buildings with underground parking (and much it) for the new housing AND the Jewel.
It is definitely not “overpopulated”, demonstrated by the high prices from undersupply of housing. A lot of people want to live this close to all of the amenities this area provides.
It’s literally a middle of the block background building, it is ok if it is not architecturally thrilling.
WOW. That Wicker Park Connection short building just got F’d over in a big way. Went from having views of downtown to this.
Man,underground parking will never exist. Developers won’t pay for something that costs money and is logical. Ask any developer from Fulton Market!
Hello Chris will put in underground parking if they’re forced to. That would help weed out developers who are only interested in producing cookie cutter junk buildings for newly hatched MBAs for a year or two before they move to exurbs. In the long run those developers are not helping the city at all.
* They will put in underground parking…
Stupid voice recognition!
Very nice infill and density for this prominent corner.
Stupid question: As a pedestrian, do you enter the Vision 1 building on Division Street to get to the lobby for Vision 2?
you apparently will have to follow the sidewalk along the original vision building and eventually it will lead to the new vision entry. Alternatively you could just walk on the driveway haha. This spot is going to be a nightmare for delivery drivers and also pedestrians as more car traffic uses these two awful curb cuts off of division. Happy for more density though
Thanks. I am predicting a lot of lost and confused first time visitors to Vision II. LOL. “Hi, it’s me! The entrance is where??”
Seems like this whole area is a lost planning opportunity. Isn’t the ‘connection’ walkway from the park on Milwaukee over to Division now closed to the public?
The gate is closed during the day but it is unlocked from like 7am to 7pm or something to that affect.