The first permit has been issued to begin construction for a residential development at North Milwaukee Avenue and West Prindiville Street in the Logan Square neighborhood. The permit is assigned to the address of 2705 West Prindiville Street, though the development has been known prior as 2240 North Milwaukee. The permit’s application date is January 29 of this year, and it came through on April 7 with a reported cost of $350,000 for the caisson work.

Rendering of 2240 North Milwaukee by Jonathan Splitt Architects

Site plan of 2240 North Milwaukee by Jonathan Splitt Architects
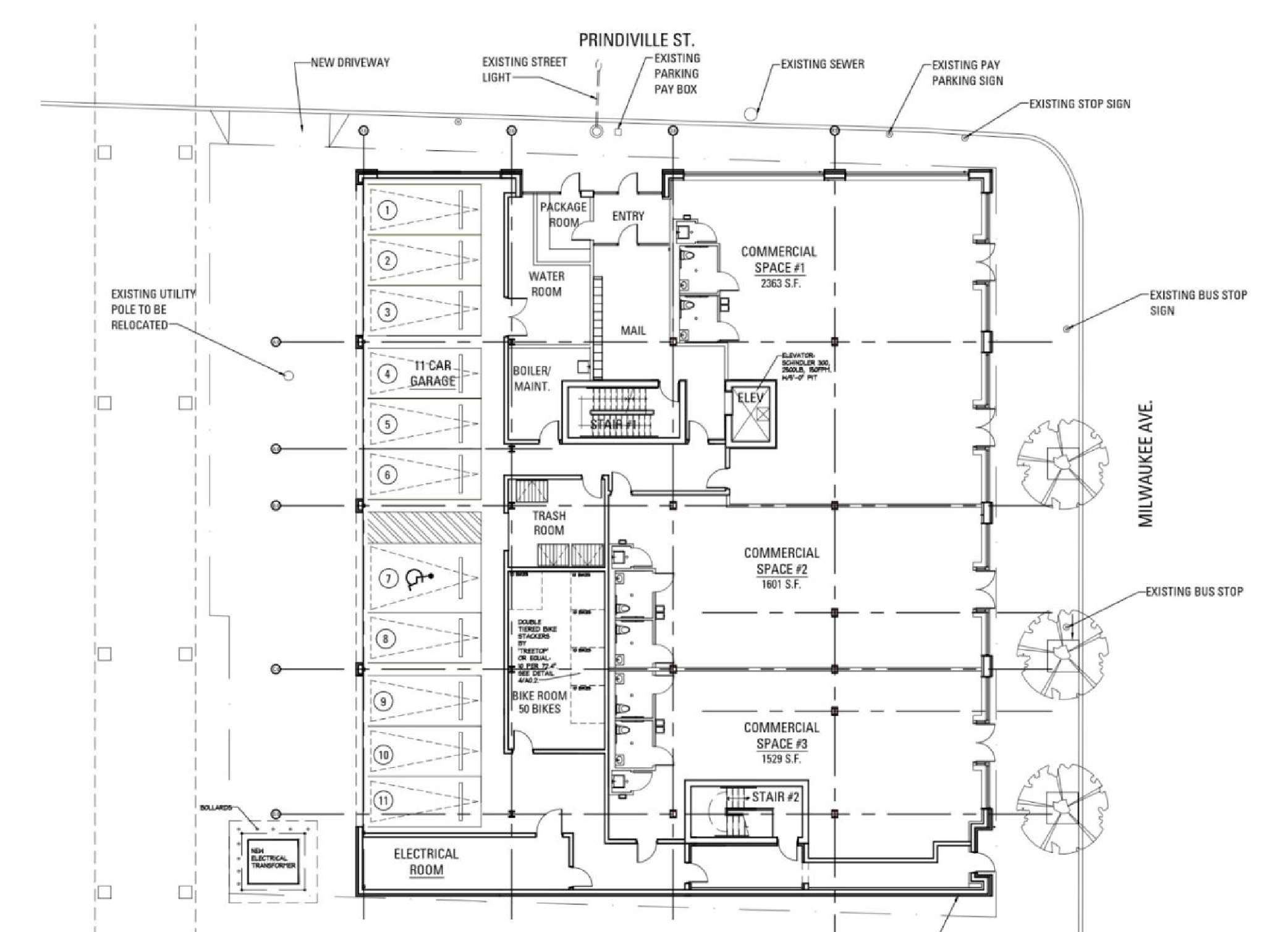
The ground floor will include three commercial spaces fronting Milwaukee Avenue. The residential entrance and lobby will be located on Prindiville Street. An 11-car garage will be accessed from the rear alley connecting Prindiville and Attrill Streets. There will also be a storage room for 50 bicycles. Jonathan Splitt Architects designed the project. A full permit to complete construction has been pending in the Chicago Data Portal since January 29, the same application date as the caisson permit.

Ground floor plan by Jonathan Splitt Architects

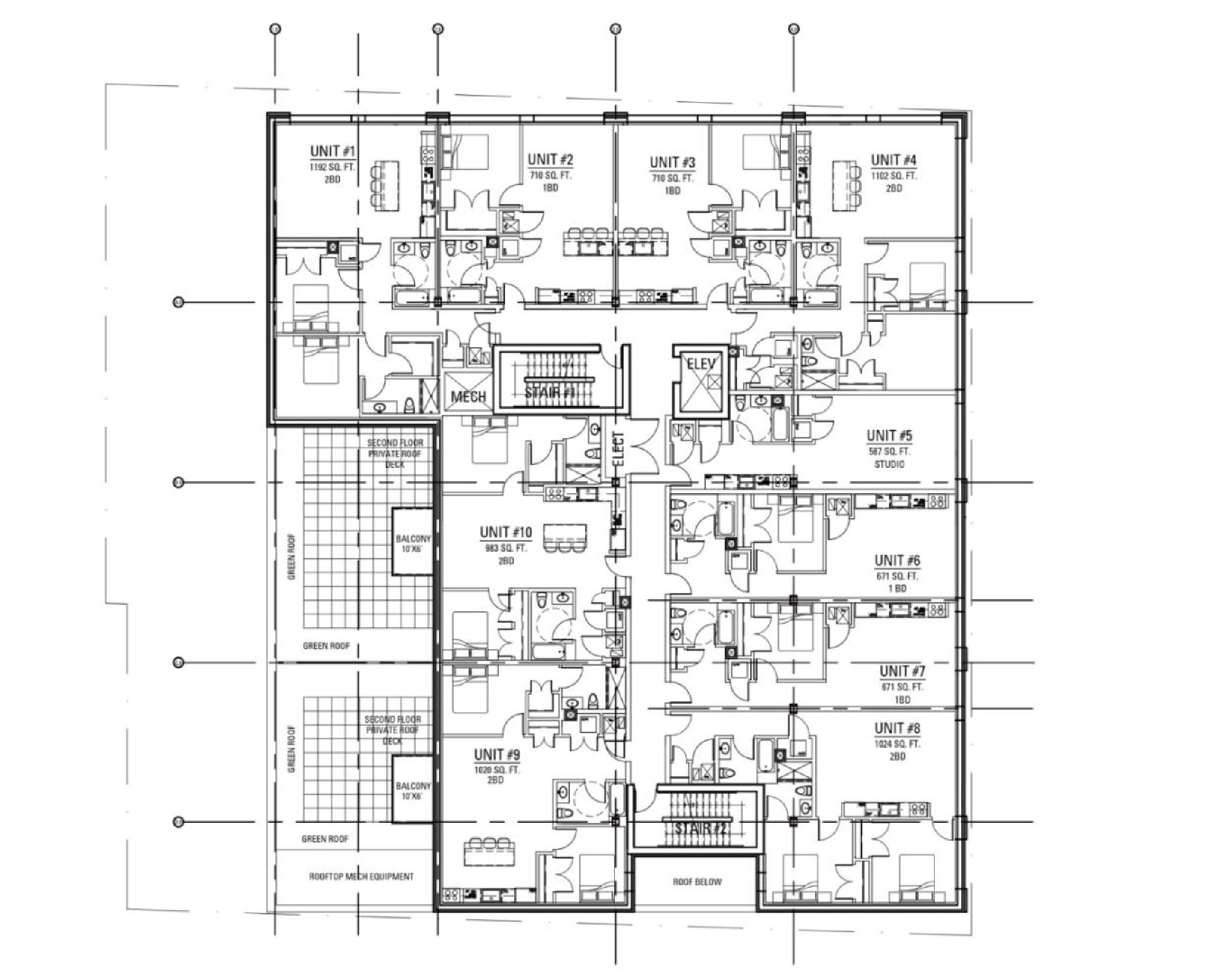
Typical residential floor plan by Jonathan Splitt Architects
Kiferbaum Development Group is no stranger to this pocket of Logan Square. In February 2018, they received a permit to construct six three-story townhomes spanning 2731 through 2739 West Prindiville. Those homes were completed less than a year later.

Townhomes by Kiferbaum at 2731-2739 West Prindiville Street, via Google Street View

Site context of 2240 North Milwaukee Avenue via Google Maps

Local transit options, via Google Maps
Tenants of 2240 North Milwaukee will reside a block from the California Blue Line elevated platform. The 56 Milwaukee CTA bus stops both northbound and southbound right outside their door. Route 94 buses make stops one block west at North California Avenue, and the east-west Route 74 stops two blocks north along West Fullerton Avenue.
Subscribe to YIMBY’s daily e-mail
![]()
Follow YIMBYgram for real-time photo updates
Like YIMBY on Facebook
Follow YIMBY’s Twitter for the latest in YIMBYnews


Another long time coming development. I wonder if some corner is being turned in terms of so many of these developments being approved for permits in the last month.