The city has authorized construction to begin for the residential conversion of the Oxxford Clothes building at 1220 West Van Buren Street in the West Loop. In the works for several years, Base 3 and The Missner Group can now get started on Oxxford Lofts, which is expected to deliver 112 rental units at the edge of the Eisenhower Expressway. A renovation permit was issued on April 10, 14 months after its application date. It includes a reported cost of $15.5 million.

1220 West Van Buren Avenue. Photo by Daniel Schell

Rooftop rendering of Oxxford Lofts via The Missner Group
The rejuvenated Oxxford Lofts will contain a mix of 48 studio apartments, 59 one-bedrooms and five two-bedroom, two-bath floor plans. The 20 percent allocation of affordable units will all be provided on site. Plans include the gut renovation of the seven-story building, restoration of the exterior, and a one-story addition at the top. A basement level will hold 24 parking spaces, and resident amenities will include a rooftop deck, coworking space, a gym, and bicycle storage. Chicago firm Filoramo Talsma Architecture designed the renovations.

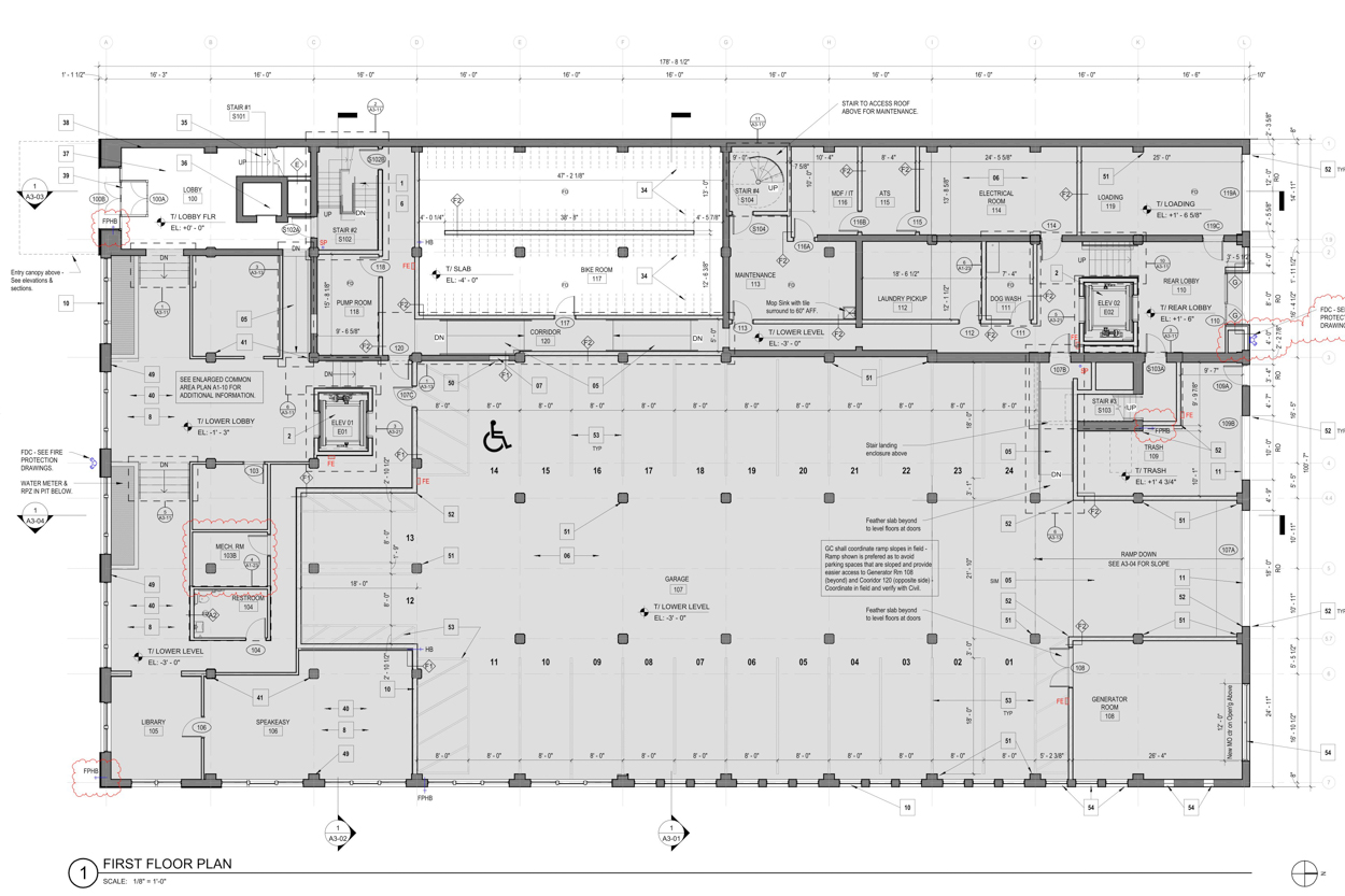
First floor and parking level plan, courtesy of Base 3

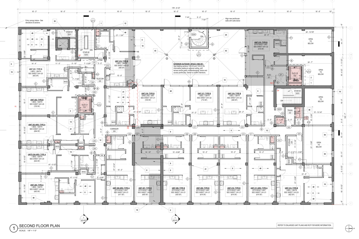
Second floor plan, courtesy of Base 3

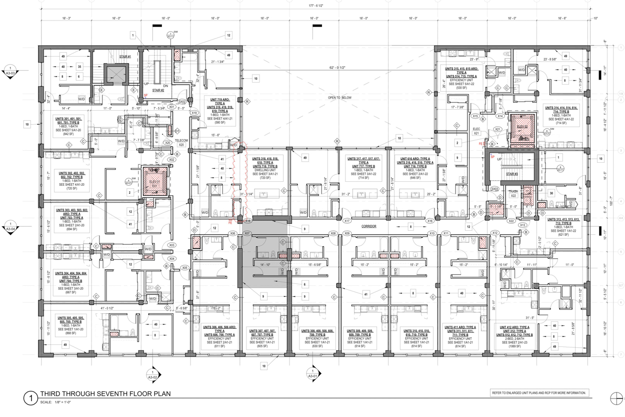
Typical residential floor plans third through seventh, courtesy of Base 3

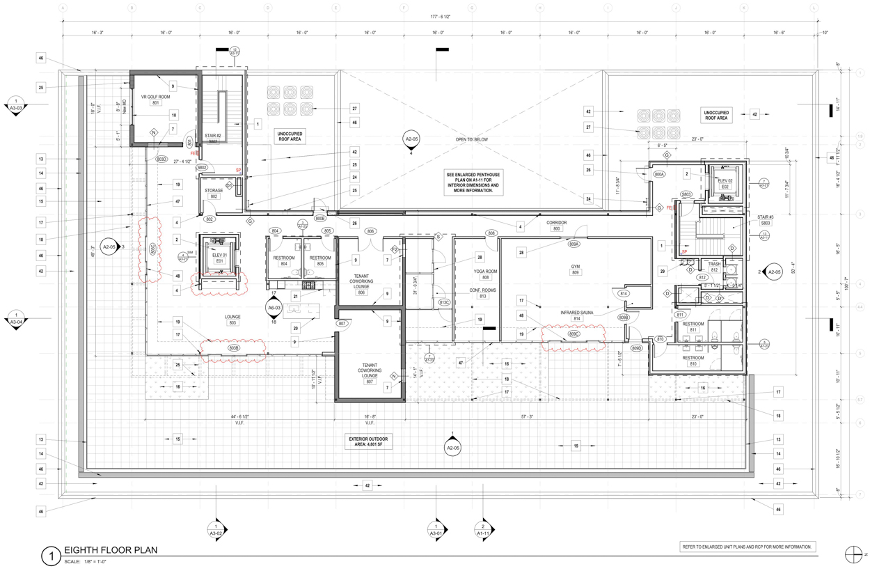
Eighth floor plan, courtesy of Base 3

Roof top plan, courtesy of Base 2
The building dates back to the 1910s, and was the headquarters of Oxxford Clothes, famous for their hand-crafted clothing. Once serving as their showroom, factory, and offices, they moved out in 2016 and sold the building, which was slated for an office conversion. Those plans stalled, but Base 3 has since tailored the conversion plans to suit the historic loft space. They hope to begin work in May, with delivery of the first units anticipated in summer 2027.

Photo by Daniel Schell

1220 West Van Buren from across the Eisenhower Expressway during Racine Blue Line platform reconstruction. Photo by Daniel Schell
An April 2017 permit issued by the city authorized “investigative” interior demolition to take place, which allowed the determination that the structural integrity of the building supported a full-scale renovation. Prior to that, a demolition permit in November 2012 approved the removal of the rooftop water tank.

The east elevation. Plans call for a full restoration of the building’s exterior. Photo by Daniel Schell

The Oxxford building had a rooftop water tank until it was permitted for demolition in fall 2012. Image via Google Street View
Situated just off the corner of Van Buren Street and South Racine Avenue, Oxxford Lofts is less than a block from the newly rebuilt Racine Blue Line L platform. CTA bus routes within a two-block radius includes stops for #7, 60, and 126.
Subscribe to YIMBY’s daily e-mail
![]()
Follow YIMBYgram for real-time photo updates
Like YIMBY on Facebook
Follow YIMBY’s Twitter for the latest in YIMBYnews


First thing, second pic “Fulton South”. Nope. You are not allowed to make up names like that.
Second, floor plans for second floor, interior units with doors to light well, is that just fire egress or will that be some kind of patio area?
“Owner to confirm intentions.” We’ll have to wait and see what they do with that space.
Gave me a chuckle as well. Real estate agents and companies really are the axis of evil – zero shame, brash, and just really ignorant and contextually insensitive.
For me it’s been a lot of years now since “zero shame, brash, and just really ignorant and contextually insensitive” could rank any higher(lower) than “worth an eye-roll”…TBH my own side in the culture war perpetrates worse than that most every day now (some days a damnsite worse, sigh). YMMV of course. Anyway I did chuckle at “Fulton South”, good luck with that one guys.
Having at one time lived very near to the Eisenhower I dunno that I’d want to reside on the first couple floors of this building. Up higher though it could be quite nice, with the strong transit access and that area has a lot of additional assets nowadays. For a native Chicagoan as old as me both the South Loop and West Loop reinventions are still startling; 1980s me would have laughed long and hard at predictions of what those areas have now in fact become.
Really nice reuse. Personally I wouldn’t want my living room windows facing a highway but otherwise this is a great project.
Cool project! But permitting took 14 months, not 2 (it was submitted February 2025)
Thank you. Fixed it.
Cool project, glad they can repurpose this building!
Who doesn’t want to live next to a huge expressway!
OK, east facade should remain as is except for three-over-three awning windows…to be replaced with new energy efficient – same type. Love the grittiness of the east facade, rich in colors and textures, showing its age and character – a real plus. Too bad the water tower was removed – it should have stayed as a real urban ornament. Otherwise a great project.
Yeah I wish they had kept the water tower too. I wonder what they could’ve done with it? Oh well. Great use for this space.
Looks great and a wonderful win for historic preservation and the environment as well! Hoping they go for a Chicago Landmark Designation of the building!
Yes! A classic old building becomes 100+ homes. Great access to highway AND Blue Line. I hope this renovation goes splendidly.
Solid choice for a conversion. Wouldn’t this be perfect to build another couple of stories on top of? (other than being right next to the pollution and noise of the freeway it’d be a perfect location for even more units)
Still confused as to what is going on with the former stair & elevator in the SW corner of the building, but overall a great reuse.