Details have been revealed for a new multi-modal transportation hub at 2107 South Pulaski Avenue in Lawndale. Dubbed “The Go Hub,” the new facility is being developed by Chicago-based nonprofit Equiticity. It will replace a pair of vacant lots just north of the intersection with West Cermak Road, steps away from the CTA Pulaski Pink Line station.

Site context map of The Go Hub via Google Maps

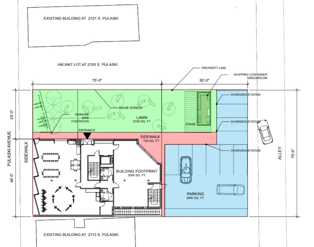
Site plan of The Go Hub by Oldile Compagnon
Equiticity aims to create racial equity in transportation within disinvested neighborhoods. Working with local architect Oldile Compagnon, the five-story facility will serve as a place for community and power-building by offering short- and long-term rentals, mobility workshops, local bike rides, walking and scooter tours, storage, space for community events, and an advocacy coalition.





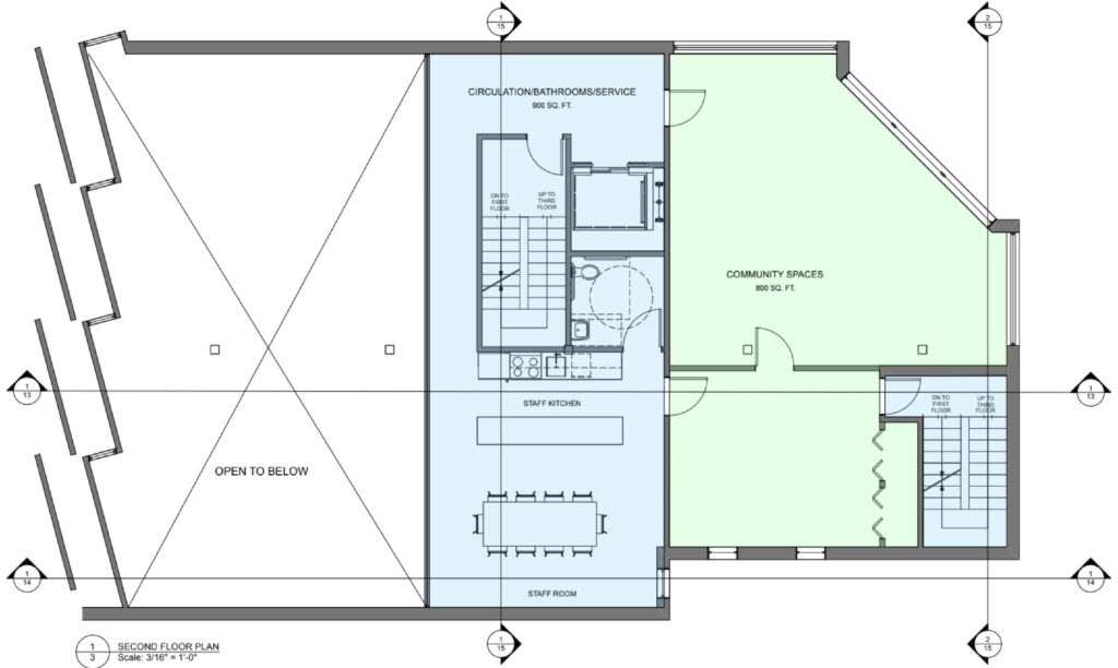
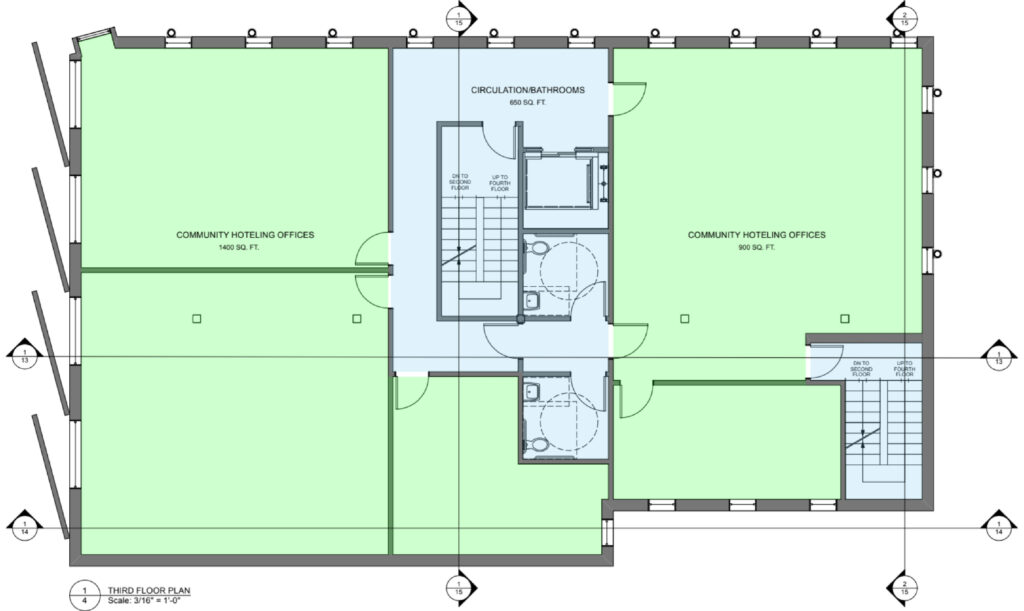
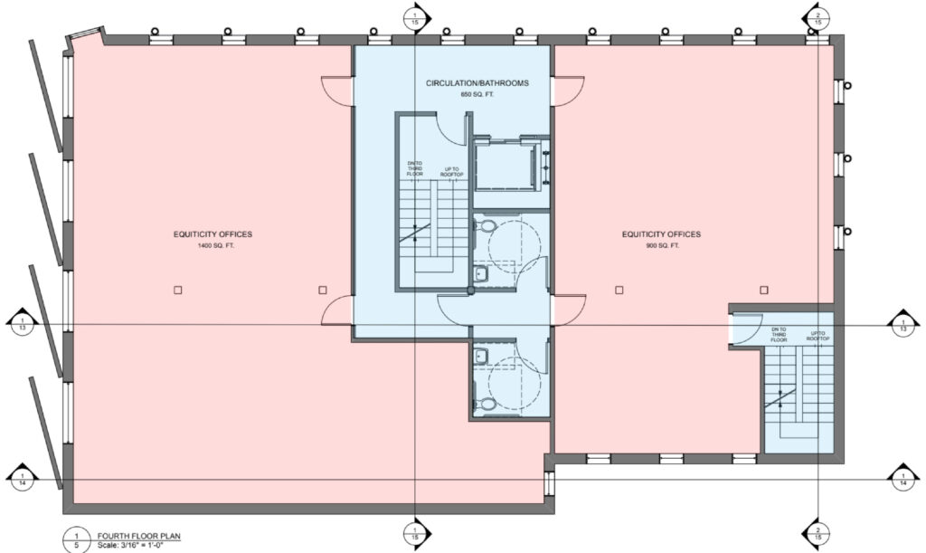
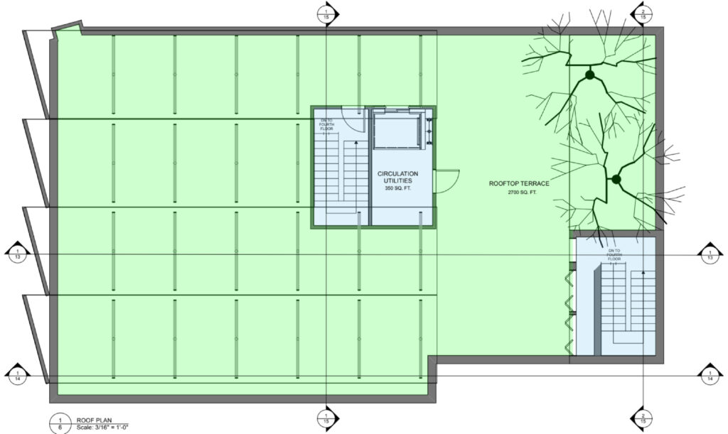
Floor plans of The Go Hub by Oldile Compagnon
The ground level will include a 10-space parking lot with EV charging, a large lawn with seating and a small stage, and a public bike fix station. The building’s basement will focus on bike parking and storage, while the floors above will hold a community center, a double-height bike workshop/class space, a kitchen, community hoteling and office space, and new offices for Equiticity itself.

Rendering of The Go Hub by Oldile Compagnon

Rendering of The Go Hub by Oldile Compagnon
All of this will be capped by a large rooftop terrace shaded by solar panels in a sawtooth motif that will extend down the front façade of the building. Equiticity recently received a small grant to build a plaza on the site for programming and art, according to Streetblog. The plaza will activate the space and engage the community while the team continues fundraising for the $12 million hub.
Subscribe to YIMBY’s daily e-mail
![]()
Follow YIMBYgram for real-time photo updates
Like YIMBY on Facebook
Follow YIMBY’s Twitter for the latest in YIMBYnews


The architecture is heavily relying on that solar cell glass panel feature. That is not going to be a cheap feature.
If this is a more final rendition, I really hope they can pull it off both functionally and aesthetically. VE’ing the glass will not be a good look if nothing else changes. It does seem like a potential heat ray is being added to the roof/facade.
Would look really cool if its executed well though
While I have questions about the social and economic logic of this project — replacing vacant lots, close to a poorly-used transit stop, in a struggling part of the city? The right planning attitude in spots like that is “go for it”, let entrepreneurs or organizations try some new ideas. Hope it works out as planned.
@Ian – I believe the name is “Equiticity,” not “Equicity.” Either way, kind of a mouthful.
I’ll take anything but I’m tired of all these community centers, urban farming, and working stations being incorporated in these types of projects because they just keep missing the mark. Build housing that is reasonably priced and provide space for business or commercial usage. The south/west side need jobs and housing, they don’t need workshop places or community centers on every street. Build mixed used buildings and you will have the place thriving.
100%. Feels like developers are building what they want to see for poor neighborhoods, not exactly what they need.
you had me at “local bike rides”
Sounds like a good project!
Using rough numbers this will cost at least $35k a month to operate assuming a $5M mortgage. I don’t see the income stream to support that.
I visited the Equicity website. Lots of words, but it seems to boil down to they encourage black and brown people to walk and take bicycle rides.
Holy buzzwords lol there is no way there are funds to build and maintain this place. Also pretty rich to be a “transportation advocacy group” eating up a significant portion of your lot to build surface parking. lmao