Plans have been revealed for a new affordable senior housing building at 6151 South University Avenue in Woodlawn. Located at the corner of East 62nd Street, the proposal would replace a large vacant lot owned by the project’s developer, Woodlawn Baptist Church, since 1982. The development will be known as WBC Manor.

Site context map of WBC Manor via Google Maps
The church has been working with local design firm Barry Architecture on the plans, which call for a U-shaped building composed of two connected structures of differing heights. The northern portion will rise six stories and reach 66 feet in height, housing the main elevator core. The southern portion, along East 62nd Street, will rise four stories.

Site plan of WBC Manor by Barry Architecture
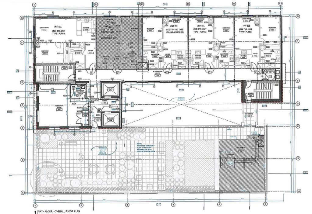
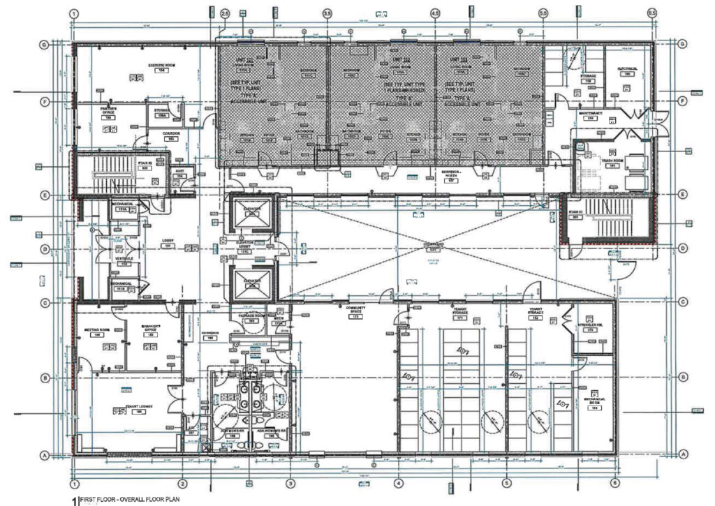
The ground floor will feature a large lobby along University Avenue, along with an exercise room, offices, a tenant lounge, tenant storage, a community room, and several residential units, all arranged around the building’s central landscaped courtyard. Four accessible parking spaces will be located at the rear of the site off the alley, accompanied by additional landscaped areas.


Floor plans of WBC Manor by Barry Architecture
The upper floors will be fully residential, with a total of 46 one-bedroom units. A large rooftop garden will be located atop the four-story portion of the building and will be accessible to all residents. The building will be clad in a mix of brick and metal panel exterior materials.

Elevation of WBC Manor by Barry Architecture
The project will also include a new 20-space parking lot across 62nd Street behind the existing church, this will be for the congregation’s use. At this time, no overall project cost has been disclosed, though the development team submitted a zoning application this week to move the project forward. No construction timeline has yet been announced.
Subscribe to YIMBY’s daily e-mail
![]()
Follow YIMBYgram for real-time photo updates
Like YIMBY on Facebook
Follow YIMBY’s Twitter for the latest in YIMBYnews


Nothing like owning an empty lot for 40 years. How fruitful for the neighborhood.
Although I would be the first to advocate for policies to push owners of empty lots to develop them, this neighborhood is filled with empty lots that likely haven’t been developed because it’s not financially feasible. So many south and west side neighborhoods have been losing population, so it’s going to take a while before it’s financially feasible to develop these empty sites. Good on this church for developing the site for people who need housing. Hopefully this spawns future development in this area.
I am guessing that over the 40 years because of the church being a religious non-profit organization No real estate taxes were paid as well?
If you look at areal imagery, it appears they used it for recreation. There appears to be markings of a basketball court. It’s not uncommon for churches to have playgrounds and courts.
As more and more development plans begin to spring up in Woodlawn, I’m glad to see some like this focused on the senior community. They deserve to have access to the neighborhood and retain their community there. Also agree with the above comment that it’s such a huge disservice to Woodlawn that private entities are allowed to own these vacant lots for decades with no incentive to sell, develop, or even maintain them frankly.
Its great new development in South shore ,woodland I just hope this building is 600sq ft people tend to think we downside all of our treasures
Good afternoon I’m A 70 old man and I want to know how I can apply for a apartment or mail a application.
Thank you so much.
Actually the lot was used as the gym area for the Church School from 1982 thru 2022 when the two schools located in the Church Education building closed.
who and Where is the funding coming from?
Good Afternoon I’m 73yearold I’m Looking for Apartments one or two bedrooms for my Husband of 40 year’s and myself THANKS YOU
I would like to know the process of getting a unit at this development. Pre-application and rental units. Being a disabled senior finding and getting units in new developments are very challenging, as we age those of us that are tired and want too live the rest of our lives in transit and grocery shopping oriented areas. Forever affordable homes and safety concerns are searching to live ours life in developments that have secure outdoor
space. And concentrate on elderly residents as. well.
Hello I’m 59yrs old and would love to have a one bedroom apartment. Love the area.where CAn I get an application or get on a wait list. I’m retired and live alone.