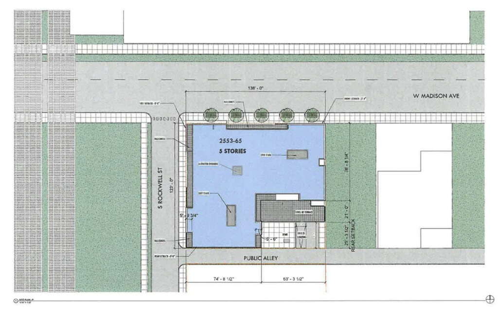
Plans have been revealed for a new mixed-use development at 2565 West Madison Street in the Near West Side. Located just west of the intersection with North Western Avenue and across the street from Johnny’s Icehouse, the project will replace a large vacant lot on the edge of Garfield Park.

Site plan for 2565 W Madison St by 2RZ Architecture
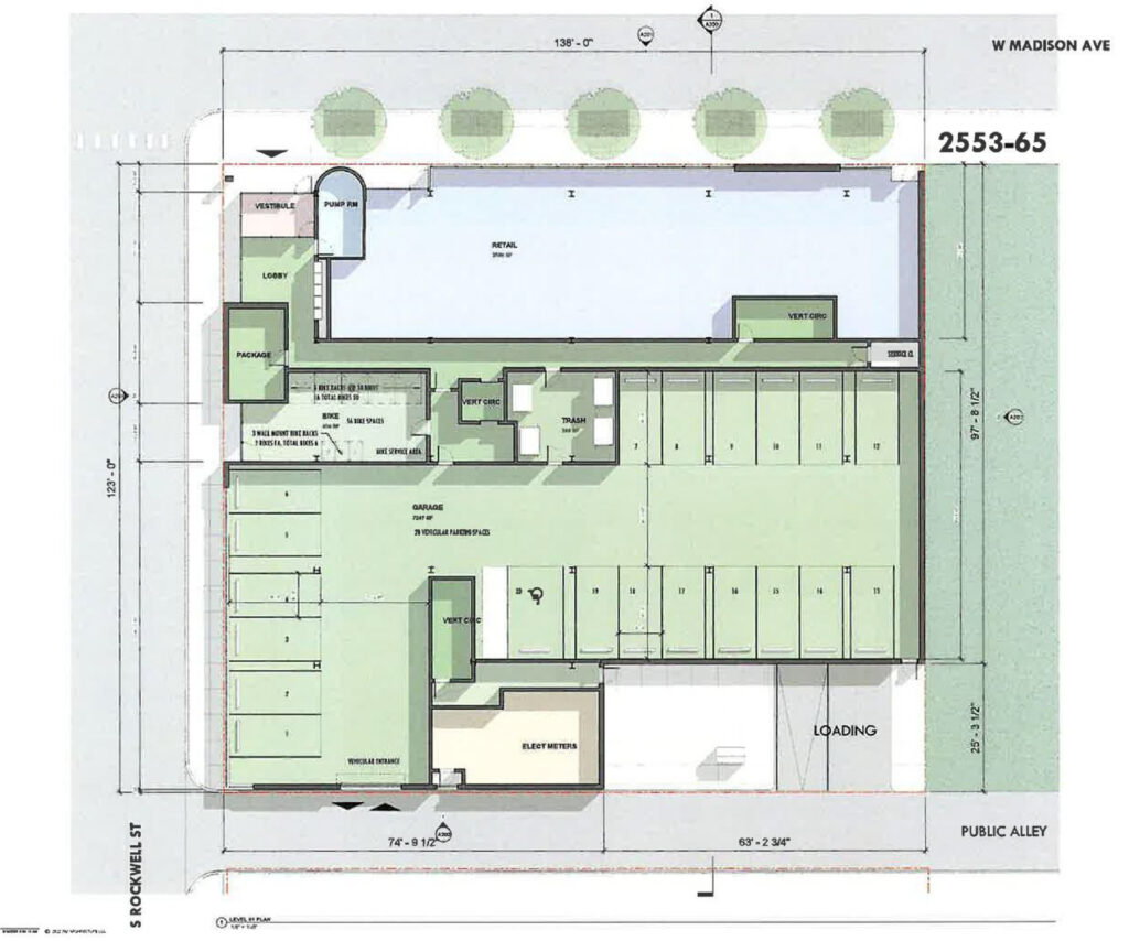
Efforts are being led by Level Development, with 2RZ Architecture handling the design. The L-shaped structure will rise five stories and approximately 60 feet in height. Its ground floor will contain 3,600 square feet of retail space along Madison, a small lobby, and 20 parking spaces within a rear garage accessed from the alley.

Ground plan for 2565 W Madison St by 2RZ Architecture

Floor plans for 2565 W Madison St by 2RZ Architecture
The floors above will contain 56 residential units, made up of 36 one-bedroom and 20 two-bedroom layouts. Of these, 11 will be designated as affordable. Select units will feature private balconies, and none of the bedrooms will rely on borrowed light. There will be no shared rooftop deck.

Elevations for 2565 W Madison St by 2RZ Architecture
The structure will utilize the aforementioned balconies and circular windows to help break up the massing. The developers will now need to acquire the city-owned lot as the project moves forward with the rezoning process. It will also require approval from the city as well as the local community. No timeline has been revealed.
Subscribe to YIMBY’s daily e-mail
![]()
Follow YIMBYgram for real-time photo updates
Like YIMBY on Facebook
Follow YIMBY’s Twitter for the latest in YIMBYnews


I say this every time something is built near western ave but there needs to be a CTA rail line running down western.
While I wish we could afford and prioritize that in Chicago and the US, I agree but it should be center-running gold standard BRT. This is doable and I’m pretty sure has already been studied along with along Ashland. We need a whole lot more *rapid* transit, so we can’t spend billions per mile. It has to be measured in millions per mile.
I just don’t trust American transit agencies building out actual BRT. Is there a single example of a true gold standard line in the entire country?
There isn’t a single example of a gold standard anything line in the US. (if there is, it is 3-5x too expensive which is disqualifying) The closest thing we have on the continent is the Vancouver SkyTrain. Don’t let perfect be the enemy of good.
I have to disagree – BRT is a libertarian scam – fake transit thought up by people who think cars=”freedom” and that mass transit is for other people. You get what you pay for. People just don’t want to ride a bus, and over time it is more expensive, IMO.
There will need to be a seismic political change in the US for decent mass transit, BRT should be seen as the joke that it is.
I used to repeated all those cliches myself, being a lifelong L rider. Since then though I’ve experienced some BRT-type service in a couple other cities and warmed up to it, and meanwhile reality intrudes: Jim said it well, we need to be spending millions per mile not billions.
We can keep repeating all the purist assumptions/arguments or we can add new transit which functions better than regular busses in regular traffic do. Not both. A city run by grownups would be already moving ahead with a couple of real BRT lines on major north-south arterials like Ashland or Western.
I do too. Would be a game-changer for the city
I think the L line should be elevated parallel to Western from the Orange line to the Pink line, in a subway under Ashland from United Center to Belmont, & then connect to the north side express tracks at Irving Park. This would provide north south connections on the west side while serving the largest destinations, increasing service at the 4 busiest non terminal stops on both the Pink & Orange lines, provide transfers to all L lines, & utilize excess capacity on the north side express tracks. I would have this be a rerouted Purple Line service so that frequency could be increased, while freeing up space on the Loop elevated to increase frequency on other routes.
Google the “Circle Line”, which was a similar proposal. “The CTA Circle Line was a proposed, largely unfunded, 2000s-era plan to connect all existing CTA rail lines outside the Loop, creating a circumferential route via new tracks on the near west side and existing Pink/Red/Orange line infrastructure. It aimed to improve city-wide connectivity, serving areas like the Medical District, Pilsen, and North/Clybourn.”
It went through initial study rounds, so you can see the maps and meeting minutes in the CTA archive.
2 reasonably-sized developments going up near Johnny’s in the last week or so! It’s looking like things are heating up all across Chicago, but especially on the West Side in Garfield Park/Austin and on the South Side in Woodlawn/Washington Park.
What is the other one?
Actually, just found it. Other side of the tracks from Johnny’s. Development jumping the rail line is good to see.
Oh I didn’t even know about that one, nice.
This could be quite interesting. Proposed materials aren’t identified, so it’s not clear whether it takes on a Bauhaus aesthetic or a masonry, perhaps Dutch modern aesthetic. The unit plans and floor plans are resolved, reinforcing that designing bedrooms with windows is not that difficult.
I see a sewing machine.
I actually think that the ‘affordable’ requirement should be eliminated in areas where average rents are below a certain threshold.
I can understand having these requirements (actually I don’t really believe in them at all, but that’s another discussion) in the downtown area and much of the north side. But places like the west and many of the southside neighborhoods are already full of so much underutilized land, and the rents that you can charge in those neighborhoods are far less than on the north side, that having this policy be city wide makes no sense.
I agree with you. I think going up from 10 to 20% was also a huge deterrent from getting big apartments off the ground, especially with our ridiculous taxes and pensions. They had a whole Bloomberg article on this yesterday, and while 20% sounds good, it really actually hurts almost everyone, besides the lucky few who actually get an apartment. But 10% with three times as many apartments going up would have more affordable apartments being built. We need to make things make financial sense in this city, not just arbitrary percentages of affordable because it sounds good. Look at how much apartments have gone up for everyone now because of the lack of new apartments being built.