The full permit has been issued to begin and to complete construction of the planned residential development at 1805 North Campbell Avenue in Logan Square. VAM Development is the recipient of the permit as both the developer and general contractor. The application start date is shown as February 23, with the permit coming through 43 days later, on April 7, with a reported cost of $4,667,700.

Site context of 1805 North Campbell Avenue, via Google Maps
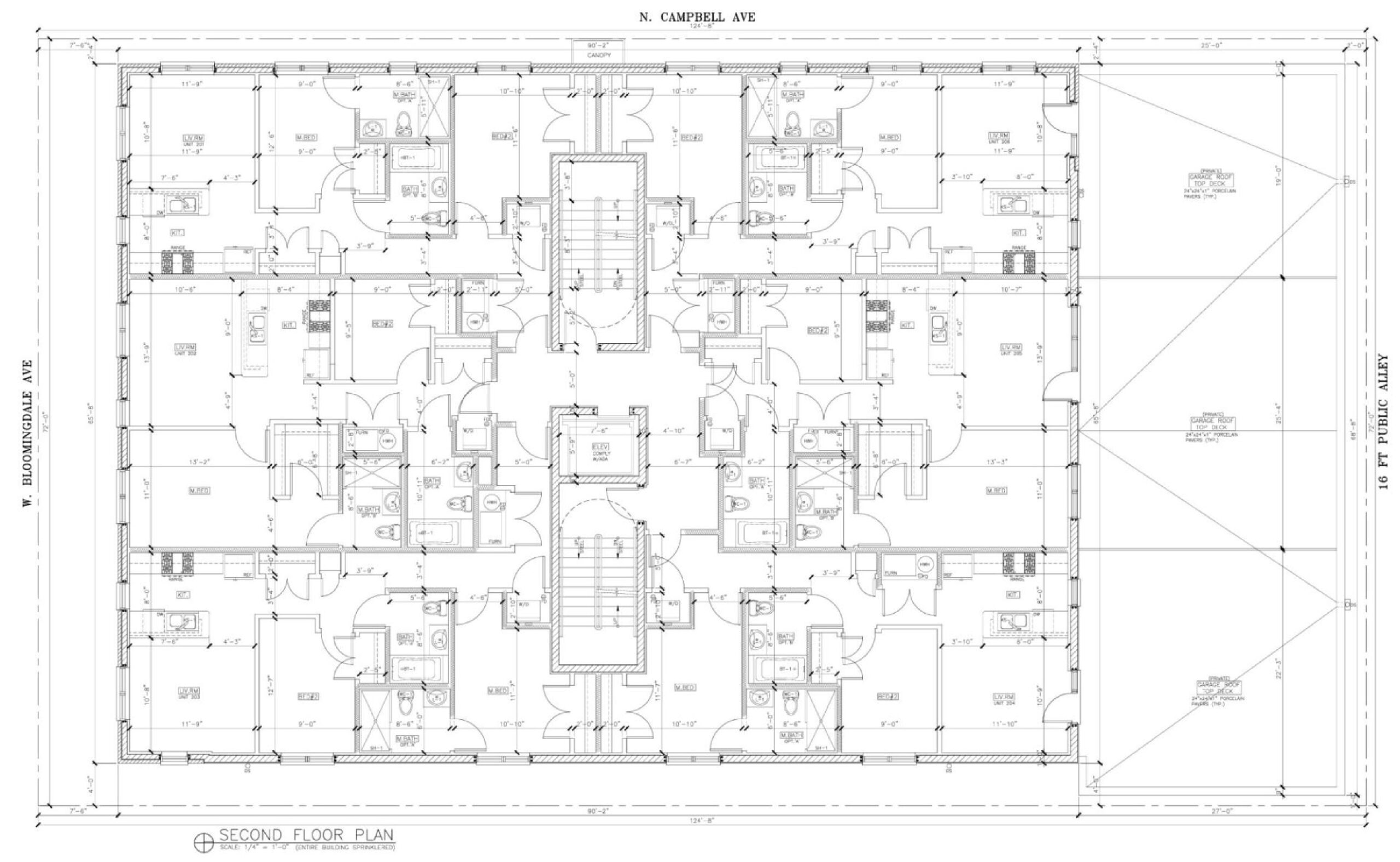
VAM will erect a four-story, 21-unit building designed by Hanna Architects on the northeast corner of North Campbell and West Bloomingdale Avenues, right next to the 606 Trail. Each residence will feature a two-bedroom floor plan, and most will be on the three upper floors. The first floor will contain three dwelling units facing south fronting Bloomingdale Avenue, an 11-space garage accessed from the north alley, a bike storage room, and the resident vestibule.

Rendering of 1805 North Campbell Avenue by Hanna Architects

Ground floor plan of 1805 North Campbell Avenue by Hanna Architects

Typical residential floor plan of 1805 North Campbell Avenue by Hanna Architects
A demolition permit for the previous residence on the property was issued by the city in August, and was carried out by Land Enterprises. Real estate records show VAM Development purchased the 1885-built home and property in November for $1.4 million.

1805 North Campbell Avenue, via Google Street View

Local transit options, via Google Maps
The nearest access points for the Bloomingdale Trail (The 606) are two blocks away, at Rockwell Street to the west and at Western Avenue to the east. For public transit, the Western Blue Line elevated platform is two blocks northeast at Milwaukee and Western. For bus travel, Route 49 makes stops two blocks east at Western Avenue. For east-west travel, the #73 buses stop two blocks north at Armitage Avenue, and a two-block walk south leads to Route 72 buses along North Avenue.
Subscribe to YIMBY’s daily e-mail
![]()
Follow YIMBYgram for real-time photo updates
Like YIMBY on Facebook
Follow YIMBY’s Twitter for the latest in YIMBYnews


All of those beautiful trees for an ugly box.Boo.
Housing is more important than trees on a single family lot. Even if it is ugly.
Nice density upgrade. And an easy walk to the Western station. Love to see it.
Another Hanna Architects monstrosity. UGH. Another brick box with little details.
And the underwhelming front door! Hope the residents don’t come home drunk, they wouldn’t know how to get in 🙂