Details have been revealed for a new mixed-use development at 315 South Jefferson Street in West Loop Gate. Sitting mid-block between West Jackson Boulevard and West Van Buren Street, the upcoming low-rise would replace a parking lot just steps away from Union Station and 320 South Canal. Efforts are being led by a team operating under an LLC utilizing the address name.

Site context map of 315 S Jefferson St via Google Maps

Rendering of 315 S Jefferson St by Built Form LLC
Local architecture firm Built Form LLC, which has extensive experience in South Florida, is leading the design of the nine-story structure. Topping out at 109 feet in height, the building would feature a handful of insets along its long sides to allow for additional windows within the residential units.

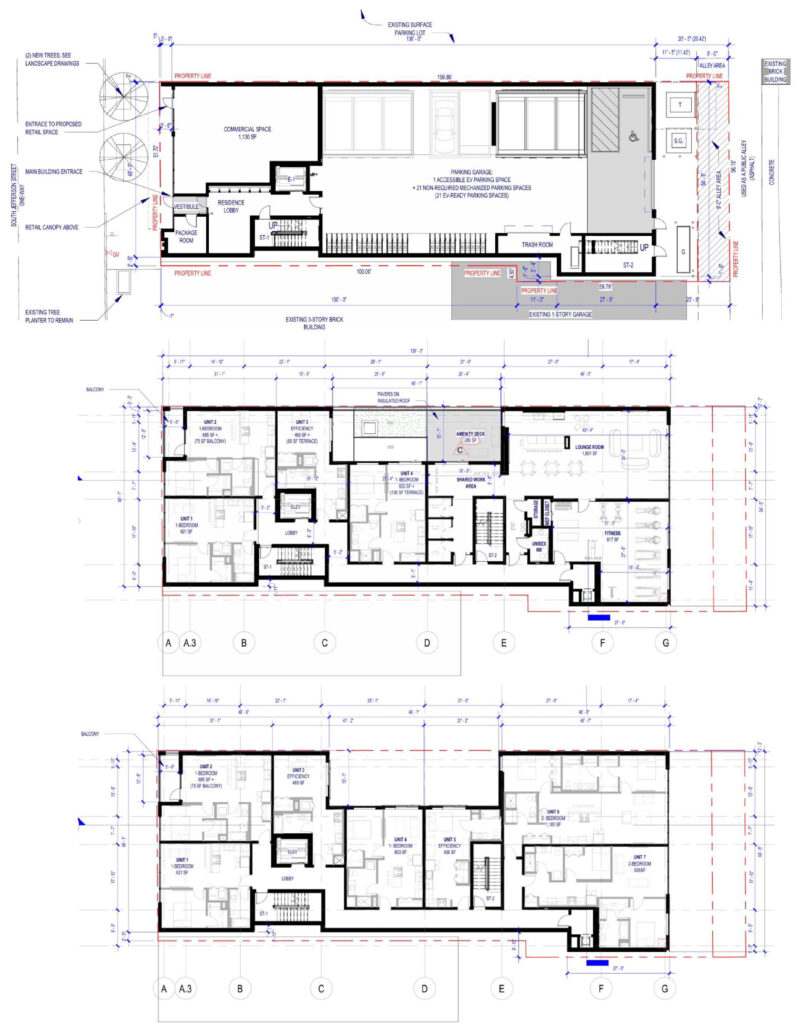
Floor plans of 315 S Jefferson St by Built Form LLC
The ground floor will include roughly 1,130 square feet of retail space along Jefferson, along with 22 parking spaces utilizing a vertical mechanized system that extends into the basement. The upper floors will contain 52 residential units, made up of 14 studios, 23 one-bedroom units, and 15 two-bedroom layouts.

Section of 315 S Jefferson St by Built Form LLC

Elevation of 315 S Jefferson St by Built Form LLC
Additionally, residents will have access to a fitness room, lounge, small amenity deck, and coworking space. The building will be clad in a mix of dark-tinted glass and polished metal panels. The project is set to be reviewed by the Zoning Board of Appeals in the coming month in order to amend the site’s existing zoning. No timeline has been announced.
Subscribe to YIMBY’s daily e-mail
![]()
Follow YIMBYgram for real-time photo updates
Like YIMBY on Facebook
Follow YIMBY’s Twitter for the latest in YIMBYnews


Is this a late April Fool’s?
Kinda boring design but I am such a sucker for narrow mid rises. Hard to make one look truly bad.
Happy for “parking lot infill” in the West Loop Gate. I wish more was in the plans for all areas around the Loop.
I love it. My kind of project
Hideous!!!
Ugly but great replacement for a rinky dink parking lot
Those metallic party walls seem a little foreboding, and might not have adjoining buildings for years, but better than a surface lot. Could be one of those projects where the developers couldn’t assemble all the parcels they hoped for and are making the best of what they have.
unlikely to ever get an adjoining building since the remaining lot is so narrow & assembling the other parcels to make a corner development work might not end up being feasible.
I like it.
Build it! Yesterday!
My apartment can now match my cybertruck, this is awesome.
Again, why only nine stories?? Beloit has taller buildings.
Ugly design considering the other incredible architecture in the block. When will the uglification of the city stop
It will stop when we will stop electing 3rd world mindset people into city government. Just saying.
Well that’s a trash comment.
I like it personally. Mostly because it fills a parking lot but I also do think it looks moderately interesting and will add some diversity in the streetscape.
What is the sites zoning currently? I can’t believe a 9 story building downtown can’t be built as of right.
I wouldn’t call it a “low-rise”…
I wondered about that — 9 stories is “low-rise” now? Where I live (South Loop) the term for buildings between 5ish and 20ish stories is “mid-rise”.