A trio of condominiums have been approved for construction at 3039 North Kenmore Avenue in Lake View. A permit application filed by the developer on December 3 of last year came through on February 17 with a reported cost of $1.2 million.

3039 North Kenmore Avenue, via Google Street View
The subject parcel contains a multi-unit frame building erected in 1890. According to real estate records, it was purchased in September 2024 for $1,085,000 by the entity of Kenmore & Barry LLC. A demolition permit has not yet been issued for the property, but will be required for razing the building before new construction can begin.

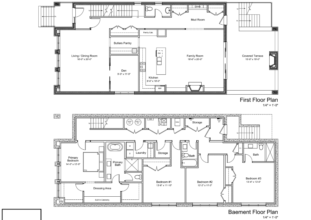
Duplex-down floor plan by Besch Architecture

Second-floor and third-floor condo layouts by Besch Architecture
In its place, the new permit calls for a three-story plus basement, three-unit building designed by Besch Architecture of Palatine, IL. Floor plans published by the 44th Ward show one duplex-down condo with four bedrooms located in the basement level and a large covered terrace at the rear of the building. Simplex units on the second and third floors will have three bedrooms apiece, with small terraces overlooking Kenmore Avenue.

Recently completed condo building by Besch Architecture at 6246 North Pulaski Road, via Google Street View
A four-car garage will replace the existing frame garage on the alley. It will be topped by a roof deck, as will the residential building. Rye Builders is named as the general contractor.

From the alley, via Google Street View. A four-car garage will be erected here

Site context of 3039 North Kenmore Avenue, via Google Maps

Local transit options, via Google Maps
The condos will be one block west of Illinois Masonic Hospital, and within two-block walks of both the Wellington Brown/Purple Line and the Belmont Red/Brown/Purple Line elevated platforms. Route 77 buses run less than two blocks north along Belmont Avenue, and for north-south travel, #8 and #22 buses make stops three blocks northeast at the Clark/Halsted/Barry intersection.
Subscribe to YIMBY’s daily e-mail
![]()
Follow YIMBYgram for real-time photo updates
Like YIMBY on Facebook
Follow YIMBY’s Twitter for the latest in YIMBYnews


That recently completed example is giving medical office bad…
LOL. My first thought was “forget about this proposed building, let’s talk about that recent construction to the right!”
It’s on Pulaski a semi busy st and faces a construction yard so if it looks fortress like or commercial it fits right in.
Looks great in the render. Nice big Chicago-style windows.