Plans have been revealed for a new mixed-use development at 6501 South Cottage Grove Avenue in Woodlawn. Located at the intersection with East 65th Street and steps away from the CTA Cottage Grove Green Line station, the proposal would replace a small existing commercial plaza and its parking lot.
Efforts for the project, known as Lifestyle on the Grove, are being led by Community Venture Investment Corp, with HED Architects working on the design. The development will span half a block and be split into two phases, with the first phase occupying the northern portion of the site and set to rise four stories tall.

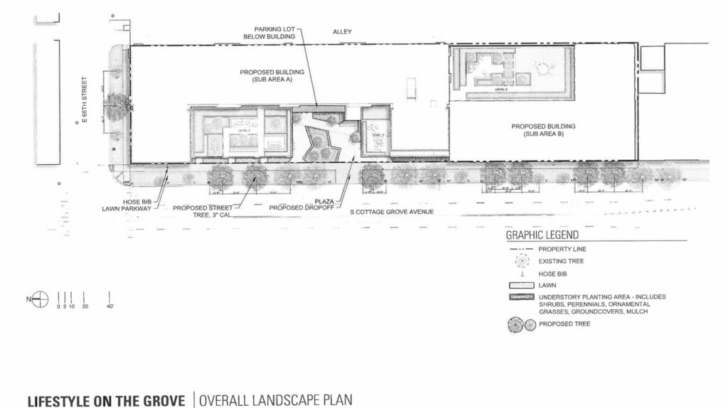
Site plan of 6501 S Cottage Grove Ave by HED
The U-shaped structure will surround a small one-story entrance and an outdoor plaza. Inside, the ground floor will contain 24 parking spaces, amenity space, and a large retail component. Above this will be 51 residential units, most likely made up of one- and two-bedroom layouts, though this was not defined within the zoning application submitted by the developer.

Elevation of 6501 S Cottage Grove Ave by HED
A second phase will fill out the rest of the site with a similar L-shaped structure anchored by an additional 28 parking spaces and retail components. In total, both phases will hold 18,000 square feet of commercial space combined. The second phase will also include 33 units, bringing the project to a total of 84 residences.
Residents of the brick-clad structure will have access to several rooftop decks on the second floor. At the moment, no additional details are known. The team will need to receive approval from the city prior to moving forward.
Subscribe to YIMBY’s daily e-mail
![]()
Follow YIMBYgram for real-time photo updates
Like YIMBY on Facebook
Follow YIMBY’s Twitter for the latest in YIMBYnews


Love the ambition here, especially so close to the green line and the #4 bus
Thank you thank you thank you!
Bring on the housing.
The area does seem to have some better candidates for a project, though. This strip mall has a grocery store and a laundromat. The opposite end of the street is a church with a collapsed roof. Across the street, and tons of other lots sit vacant and empty.
I hate letting perfect be the enemy of good, but why subtract when there are so many other spaces to add?
So much of what development happens depends on the owners of the land, how realistic they are about the value of their land, & their willingness to work with an entity that approaches them about development.
Private sector gonna private sector, but not sure how the city is allowing that structural hazard of a church to remain.
I really hope that most of the adjacent land wasting away isn’t a result of someone sitting on the plot, waiting for the right market to strike. Real estate used as an investment opportunity is one of the top 3 worst attributes of our economy.
This is a dream come true for the community of Woodlawn. Keep people in the community they ❤️
Being from the south side, I am excited about the expansion and what is happening on 65th & Cottage in Chicago. It is a great location to build community impact. Surrounded by neighborhoods like Woodlawn and Greater Grand Crossing, it offers strong visibility, accessibility, and deep cultural roots. This area is very ideal for hosting events, launching initiatives, and creating lasting economic and social growth on the South Side. Thank you to the founders for a job well done and bringing the vision to life.
So grateful to be part of a community that leads with respect and genuine care. The heart and work ethic here shows every day. 💛
Love bringing to our community i’m a resident and i also works in the community and i would love to see what all this new development brings to the community
This will be one of the weirdest comments I have ever left on here, but I’m leaving it anyways. So, for some reason, this building was in my dream last night. So in that dream, the developers for some reason held a vote for what colors this building would be painted, and the colors green and yellow won. And apparently these colors were chosen to represent the lgbtqia+ community.
That was a real dream that I actually had for some weird reason. I have absolutely no clue why.
Just admit that you’re a Packer fan. No one here would judge you. (Admin, can we get this user banned?)
A Great way to show the Vision of what Woodlawn can be going forward.
Let not give to much praise on this 1 site, there are plenty of vacant lots in Woodlawn that would benefit from VISIONARY housing
instead of the Cookie Cutter housing beefing built all over Woodlawn. The Woodlawn area never looked like what these builders
are building here! Where are The Architects with skills like Chicago had in the late 1890/ 1900?. I’m just disappointed that there is no creativity.
This is a much needed housing development project in the Woodlawn community. Finally a economic initiative where everyone wins! This is going to bring jobs and businesses back to the community. Something that we desperately needs. I can’t wait!
The proposed Lifestyle on the Grove development at 6501 South Cottage Grove represents a powerful opportunity for the Woodlawn community and for the broader ecosystem of minority contractors, workforce partners, and local businesses. As a mixed‑use project positioned steps from the Cottage Grove Green Line station, it has the potential to become a catalytic anchor for equitable growth on the South Side.
Community Impact
This project brings more than new construction — it brings the promise of renewed economic activity and neighborhood stability. With 84 new residential units, 18,000 square feet of commercial space, and a public plaza, the development can help strengthen walkability, attract new retail options, and support the long‑term revitalization of the Cottage Grove corridor. Its proximity to transit ensures that residents and visitors can easily access jobs, services, and cultural assets throughout the city.
Workforce Development
A project of this scale creates meaningful opportunities to expand local hiring and build career pathways for residents. From pre‑apprenticeship to skilled trades to project management, the construction timeline offers a chance to connect community members with training, certifications, and long‑term employment. With intentional planning, this development can serve as a model for how public‑private partnerships can uplift local talent and strengthen the construction workforce pipeline.
Contractor Opportunities
For minority‑ and women‑owned contractors, Lifestyle on the Grove represents a significant opportunity to participate in a high‑visibility, multi‑phase development. The project’s two‑phase structure — including residential, commercial, parking, and amenity components — opens the door for a wide range of scopes: site work, masonry, carpentry, electrical, mechanical, landscaping, and more. Ensuring equitable access to bidding and subcontracting will help keep project dollars circulating within the community and support the growth of diverse firms.