Revised and downsized plans are moving forward for the residential development at 3265 North California Avenue in Avondale. Initially revealed last fall, the project failed to receive support from the local alderman due to concerns about density and traffic. Now, developer Macon Construction Group has submitted a zoning application for a scaled-back proposal.

Site map of 3265 N California Ave by Hirsch MPG

PREVIOUS rendering of 3265 N California Ave by Hirsch MPG
The development will replace a large L-shaped vacant lot near the intersection with West Belmont Avenue, just steps from Brands Park. Local architecture firm Hirsch MPG has served as the architect for both iterations of the project. In 2025, the original plans called for 152 units across two large multi-unit buildings and 24 townhomes, supported by 126 parking spaces.

Revised site plan of 3265 N California Ave by Hirsch MPG

Revised site plan of 3265 N California Ave by Hirsch MPG
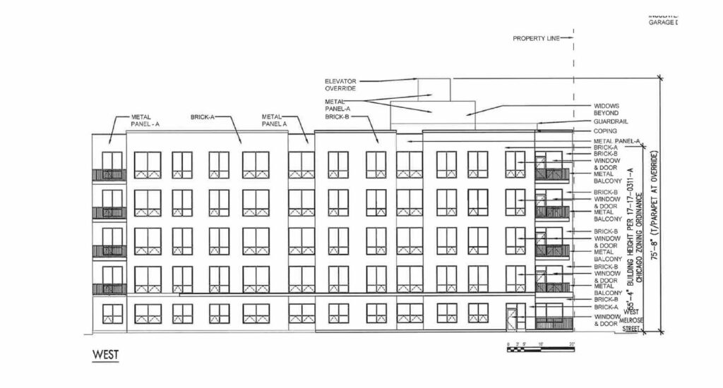
The revised proposal eliminates one of the multi-unit buildings in favor of additional townhomes. The project will now be anchored by a five-story residential structure at the southern corner of the site, containing 65 units comprised of one- and two-bedroom layouts. The building will include a 21-car garage and a rooftop deck. To the north, three rows of townhomes will add 40 units in total.

Elevation of 3265 N California Ave by Hirsch MPG

Elevation of 3265 N California Ave by Hirsch MPG
The townhomes will offer three- and four-bedroom layouts, each with a two-car garage. They will share a small central green space and be connected by a new private drive serving all of the structures. In total, the revised development will include 105 units, 20 percent of which will be designated as affordable.

Elevation of 3265 N California Ave by Hirsch MPG
With a zoning application now submitted, the development team must secure approval from the Plan Commission due to the proposed Planned Development designation, as well as final approval from the city before moving forward. At this time, no construction timeline has been announced.
Subscribe to YIMBY’s daily e-mail
![]()
Follow YIMBYgram for real-time photo updates
Like YIMBY on Facebook
Follow YIMBY’s Twitter for the latest in YIMBYnews


Shame . Alde people are preventing needed growth of housing . And tax revenue to Chicago . Density is a good thing and supports local businesses and makes for a more vibrant city .
Alder people should be removed once and for all from residential zoning decision making .
Chicago has become quite pathetic. This culture of downsizing is antithetical to turning around our housing and financial shortcomings. All these alderman that pander to Nimbys will talk passionately about how badly we need to build more housing while making it more difficult to do so. Villegas is guilty of this exact thing recently.
We are leaving a lot of density on the table across the city with all these suburban sized projects, no city refuses to maximize its potential quite like Chicago. DPD and the CAC are fighting DX-16 zoning in Fulton Market which is the ultimate sign of the times.
When a 4 story apartment gets reduced to townhomes I think “pathetic” is a bit of an exaggeration but that’s just me. It’s not like the Chicago spire was replaced by a five over one.
It’s not even close to an exaggeration. Within 72 hours over 400 people applied for 40 units at 1237 N. California in Humboldt Park. We aren’t even building 1/4th of the housing we need. Chicago is close to dead last among major cities. We’re closer to San Francisco than Washington DC, NY or Toronto. I guess if you’re a landlord this is great news.
People live in an area with 18k people or so per square mile and are up in arms over a couple hundred more like it would make a noticeable difference in there lives. Abolish community feedback now! Many are saying this!
So….the feedback from “many” in the community is to….abolish community feedback. 🤔
“Community feedback” is actually just whoever can show up to a series of meetings held at 6pm on Tuesdays. Sure, you can call/email to support, but when the local media reports on these proposals, they report as if the meetings represent the entire community (ahem, Block Club), further cementing the narrative that the neighborhood is against it.
Also we shouldn’t have to call/email our aldermen every time a proposal for a semi-dense development pops up. They should know what housing costs are, how many vacant storefronts are in their area, the city’s budget crisis, how density adds to safety, and how people generally demand more space so we need to build up to accommodate. It’s literally their job to know these things. So why should we have to convince them?
NIMBYs and aldermen seem to think they live in a suburb not a city..
Nimby striked again eliminating 1/3 of original housing units to satisfy their suburban fetish. I bet they’re a bunch of 70y.o. hags that go to these meetings and scream too much density, to much traffic, too much potential outsiders invading “their” neighborhood.
While I am generally a fan of more density in these sorts of projects. I like the final result here, fits the neighborhood scale pretty well.
Would bigger be better, yes. Is this better than the current vacant lot. Also, yes.
Build it.
Agree!!! people with suburban mentality… hello we live here in Chicago not in the corn fields!!!
It’s just my very flawed theory, but did the NIMBYs get a huge reduction in residents (not units) and cars? Seems like more four‑bedroom townhouses (more likely to be 3–4 residents) with their private two‑car garages (residents more likely to afford cars) will partially offset the loss of 0 to 3 bedroom apartments (less likely to be max residents per unit and less likely to afford cars). But this is a gross generalization I wish I had the knowledge and math skills to prove.
Number of residents will no doubt be lower and number of cars probably higher (and especially used more frequently). Nice job solving traffic guys!
Please for the love of God no more sunbelt style 5-over-1’s
looks fine. the comment here are, per usual, out of touch
If you think this looks good, you’d love Austin, Nashville, Salt Lake City, etc. Chicago’s architecture is wasted on you.
The developers didn’t bribe the elderman enough money. That’s the only reason it isn’t going through as is. Ugh. If this becomes single family I’m going to puke.
Not really, the Alderman in a NIMBY community can’t allow this stuff to fly so long as they host community meetings (essentially developer struggle sessions– and I am NOT a fan of developers lol)
The alderperson reduced the future affordable housing supply by 9 units, & the future total housing supply in the area by 47 units. May they never be able to run as if they’re an advocate for lower housing costs.
It is peak irony that people are whining about this downsized development being somehow not urban, when what made this a functioning city were these light industrial corridors that actually provided thousands of non-McJobs for the community.
Urban planning courses with a regional focus should be mandatory for developers and their silly cheerleaders. Seriously, learn some goddamned economics.