Plans have been revealed for the first phase of a new campus for non-profit Sarah’s Circle at 4458 North Clarendon Avenue in Uptown. Bound by West Sunnyside Avenue to the north and West Agatite Avenue to the south, the future complex will replace one of the last remaining lakefront lots across the street from the newly reopened Clarendon Fieldhouse.

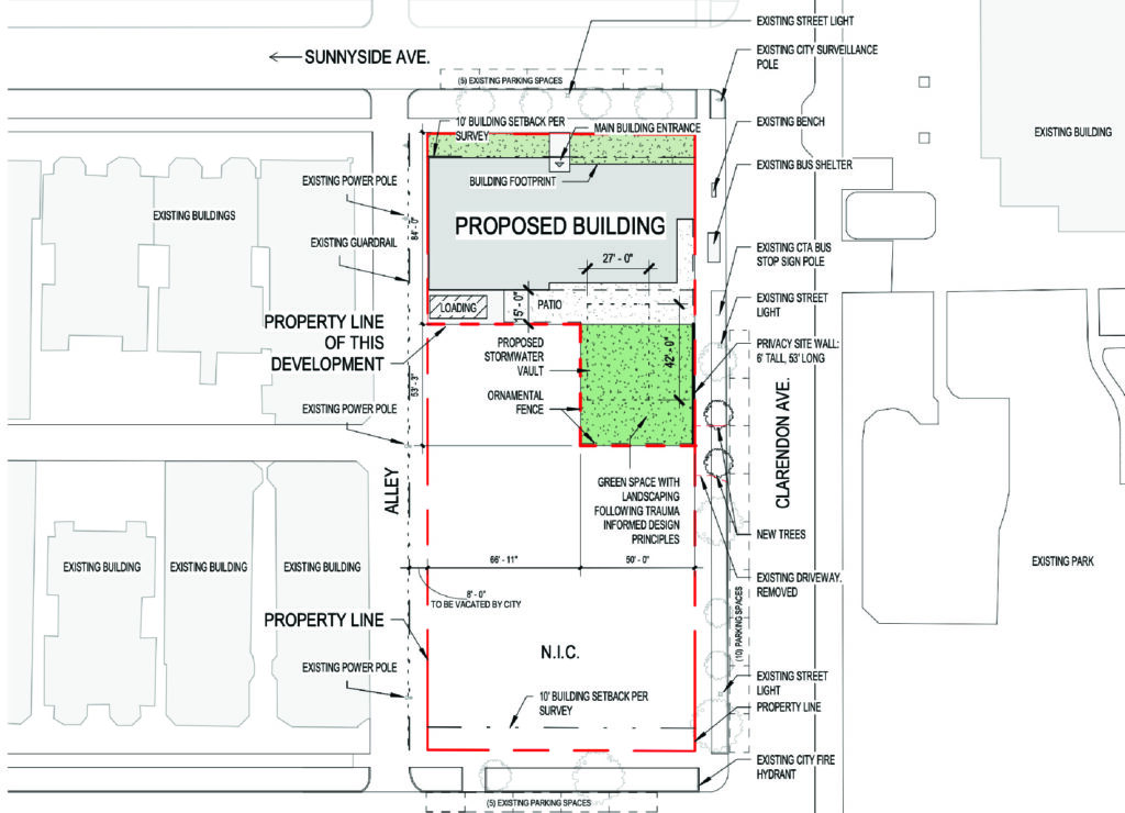
Site plan for phase one of Sarah’s Circle by Perkins&Will

Site plan for phase one of Sarah’s Circle by Perkins&Will
The organization intends to buy the lot and is working with long-time partner Perkins&Will to design the first phase. The seven-story building will rise along Sunnyside and feature a design similar to their recently completed facility at 4737 North Sheridan Road nearby. It will also serve as permanent supportive housing for women at risk of homelessness.

Rendering for phase one of Sarah’s Circle by Perkins&Will
Phase one will not include any new parking; however, the adjacent lot will remain until later phases. The site will include a small paved patio and a large trauma-informed garden. The ground floor will contain a large community space with a kitchenette, a sensory room, space for 24-hour security, and offices for on-site services.

Floor plans for phase one of Sarah’s Circle by Perkins&Will
The floors above will hold 54 residential units made up entirely of studios with a defined bedroom area, small kitchen, and private bathroom. There will also be a laundry room on each residential floor. These units will be available to women earning no more than 30 percent of the Area Median Income, or approximately $25,000 per year.

Rendering for phase one of Sarah’s Circle by Perkins&Will

Section for phase one of Sarah’s Circle by Perkins&Will
The building will be clad in a mix of red brick and precast concrete panels. A second phase is lightly detailed on the plans, showing an 11-story building rising in the middle of the site, parallel to Clarendon. This phase will contain additional units. The third and final portion to the south will eventually hold a third building; however, no details are currently known.
The team will not need a zoning change for the project but will require lakefront ordinance approval from the Plan Commission. At the moment, no timeline has been announced.
Subscribe to YIMBY’s daily e-mail
![]()
Follow YIMBYgram for real-time photo updates
Like YIMBY on Facebook
Follow YIMBY’s Twitter for the latest in YIMBYnews


Brutalism is back? But with a contemporary flare.
So the entirely concrete face with a single row of windows… is on the lakefront side? I’m a fan of brutalism, but this design is totally inappropriate for the location.
Not a great architectural design, but definitely a great cause. Many women will have a safe space to live thanks to this building
Could have just bought a small half empty old office building in the loop and converted it for their needs instead of building THIS in 2026. 🤦🏻♂️
Could have just bought a small half empty old office building in the loop and converted it for their needs instead of building THIS in 2026. 🤦🏻♂️
Brilliant: Let’s put a little urban infill building on this big blank canvas!
Great cause, horrible architecture for the site. Why ignore the lake and park view? No site relationship, such a rare opportunity missed.
Excellent news
It looks like a prison. Needs a rethink. And no, a bad building is never better than an empty lot. An empty lot has the promise for something better
Isn’t this like the fourth Sarah’s Inn built in Uptown? Why? Couldn’t another neighborhood benefit from this worthy cause?
Yes, more concentration of shelter nonprofit with ever inflated budget. Hey is Sarah’s Circle exclude men? Isn’t that using tax money for gender discrimination?
Looks like former alderman Helen Schiller keeps her voting block in tact
Sarah’s Rectangle
Will this organization and building pay real estate taxes or are they except??
Looks like a Cities Skylines building. (That’s not good if you didn’t know lol)
I still play Sim City 4 myself!