Plans have been revealed for a residential development at 1801 North Winnebago Avenue in Bucktown. The uniquely shaped site is bounded by CTA Blue Line tracks to the rear and the 606 Trail across the street to the south. Currently used as a parking lot, the property is slated for redevelopment by a local developer operating under the name 1801 N. Winnebago LLC.

Site context map of 1801 N Winnebago Ave via Google Maps
The development team has been working with local design firm Red Architects on plans for a four-story structure, topping out at approximately 50 feet in height. The proposal would replace previous redevelopment attempts for the site, including a large multi-story self-storage facility that was marketed for a time but ultimately failed to move forward under a different developer.

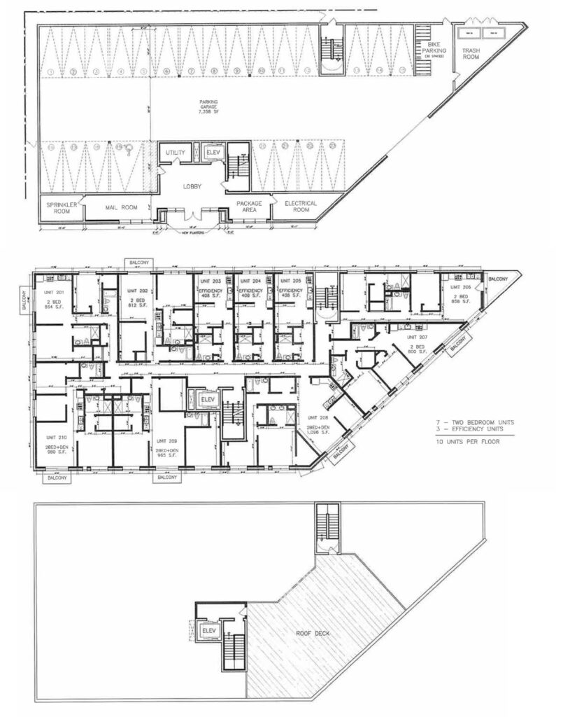
Floor plans of 1801 N Winnebago Ave by Red Architects
The new building’s footprint would occupy the entirety of the site and include a 23-vehicle parking garage on the ground floor, accessed from Bloomingdale Avenue to the south. A small lobby and mailroom would fill out the remainder of the ground-level space. Above, the building would contain a total of 30 residential units, six of which would be designated as affordable.

Elevation of 1801 N Winnebago Ave by Red Architects
Unit layouts would include nine studios and 21 two-bedroom units. Some apartments would feature small private balconies, while all residents would have access to a large shared rooftop deck overlooking the trail. The brick-clad structure will require city approval to move forward, with the developer having already submitted a zoning application. A construction timeline has not yet been announced.
Subscribe to YIMBY’s daily e-mail
![]()
Follow YIMBYgram for real-time photo updates
Like YIMBY on Facebook
Follow YIMBY’s Twitter for the latest in YIMBYnews


I wonder how many additional units they could have if the parking spaces were apartments, or better yet some kind (ANY kind) of shared use/commercial/recreational space.
If I had to pick between 1. a building with interesting amenities and 2. a place to put my car, I’d get rid of the car in a heartbeat… sick of traffic and paying for that thing anyway.
It’s frustrating that the most walkable, bikeable, and transit friendly neighborhoods are so expensive which has attracted a bunch of super wealthy people who seem determined to drive their car everywhere, which begets these developments with a parking spot for every unit. Now, some of even the most pedestrian friendly neighborhoods end up choked with cars, which fuels the NIMBY arguments. We need stricter parking maximums in neighborhoods this dense.
Chicago is a car city, full-stop. We decided long ago that public transit isn’t a priority and have shaped the city around car ownership. Podiums and garages in multi-unit buildings are considered a feature, not a bug. It doesn’t matter what legislation is passed with respect to TOD or ending parking minimums, we will still see accommodations for drivers. Then there’s the issue of safety which will remain a plague to the system for decades to come. There simply isn’t enough ridership to justify buildings without parking in most areas of the city.
Projects like a cross-town line down Western, BRT on LSD/Ashland/Halsted, the Circle-Line, connecting Foundry Park/Lincoln Yards and the 78 to transit are all common sense investments if we are ever going to seriously address the city’s car dependency but all of them are DOA. Some upgrades here and there and station renovations are the best we can do.
~0.75 parking ratio next to the (second) best trail in the City and a 3 min walk from one of the more accessible CTA stations in the entire city…. what are we doing here? Did they forget that you are gonna have to forgo the parking lot to build a building, or do they just plan on putting a building on stilts over the existing lot? This lot owner seems to be a little bit stuck in the past.
Anyways, we should take our wins since the literal self-storage building wasn’t built here. lol
Some people are just way too idealistic. If I’m living here and I have the amount of income to afford an apartment here, I’m probably going to have a car.
I may not use the car every day, perhaps one or two days a week. But cars open up your options in a way that transit never will in this part of Chicago.
I actually live in the neighborhood. I also have the income to own a car, but choose not to—and know several others that don’t either. Would a car be helpful? Sure. Is it worth spending the $1000 a month it costs to own a new car in 2026 just to run 1-2 errands to the grocery store? Absolutely not. Smarter and cheaper to either take transit or get a Lyft. Of course it’s different if you have to drive to Deerfield or Downers Grove for work. But the truth is, transit is more than adequate in this neighborhood.
And to answer your question, are people too idealistic? Sure. But without the idealists, all you get is more of the status quo. If you’re fine tripling down on a broken system, by all means. Just don’t complain when your walkable neighborhood is stuck in gridlock.
I agree with Tupper here. My sister who’s an ER doctor lives in Bucktown near this development and is determined to raise her kids in the city not the burbs. They need a car. I agree with the bike/transit lifestyle but the city needs a mix.
They don’t *need* a car to raise kids.
It’s sadly both true that this area is one of the best connected in the city + best to raise kids but I can also see how raising kids without a car here would be a uniquely frustrating experience. It’d be a lot better if we had BRT on North Ave, Western, and Ashland (and more consistent service). People with kids typically don’t have as much free time or flexibility to wait for bus transfers. We need to make transit as (or more) convenient as driving before wealthy urban families will make the choice to ditch their cars.
I live in Bucktown with 2 kids. You NEED a car. Activities are too spread out and make it difficult otherwise. Good luck carrying your weeks worth of groceries for a family home from Mariano’s.
That’s cool and all, but do you think you are representative of 75% of renters at this building? I’d wager nearly half of these spots will sit empty unless they are forced to be packaged with the unit. Hell, probably half of the renters are living in a location like this *for* the transit accessibility.
Accessible ground floor residential units facing Winnebago & Bloomingdale in this area would be such win. If the developer coordinated with CTA to include parking under the L tracks, then that would likely allow for 8 or so parking spaces.
Along with relocating the lobby to the corner, the bike & trash rooms off the alley parking, & adjusting stair locations for better unit layouts (now that they would not be dictated by parking lanes on the ground floor), that would add around 6 additional 2 bedroom ground floor units.
If the developer wanted to provide more parking they could still include 12 accessible off of Bloomingdale via multiple garage doors, since Bloomingdale doesn’t currently have a sidewalk on this stretch. That would mean only 4 ground floor accessible 2 bedroom units.
Senior citizen here. This building sounds like a great spot for me, if I can snag one of the Low income units. Modern amenities in a vibrant, walkable neighborhood at an affordable price would be very appealing. But I need my little economical paid-for car. I drive to Drs appointments all over the North shore and try to be active in the community. I have some mobility issues that limit my ability to walk several blocks, and public transit isn’t very accessible. Parking onsite with an elevator to my floor is exactly what I need.
I happy it’s not going to be a storage facility.
We really need a rail line north south down western ave. A more interconnected rail line will do wonders especially for these areas down western that already have stations
Please praise me because I don’t own a car… BUT I COULD!
Do I really like it? No. Do I like it a lot better than a storage facility? You bet I do.