A zoning application has been submitted for the first phase of the Woodlawn Central development at 6320 South Dorchester Avenue. Located just southwest of the upcoming Obama Presidential Center, we initially covered plans for the sprawling campus exactly four years ago. The multi-site plan would replace a collection of parking lots and vacant parcels.

Site plans for phase one of Woodlawn Central by Sherwood Design Engineers
The project is being led by Woodlawn Central LLC and The Apostolic Church of God. The parking lots are owned by the church and currently serve its large auditorium, which would anchor the area. Design efforts are being led by Sherwood Design Engineers. Overall, the project will deliver 1.25 million square feet of space, including residential, commercial, hotel, and community uses.

Conceptual drawing of Woodlawn Central by SOM and Gensler

Overall Rendering of Woodlawn Central with Obama Presidential Center by Sherwood Design Engineers
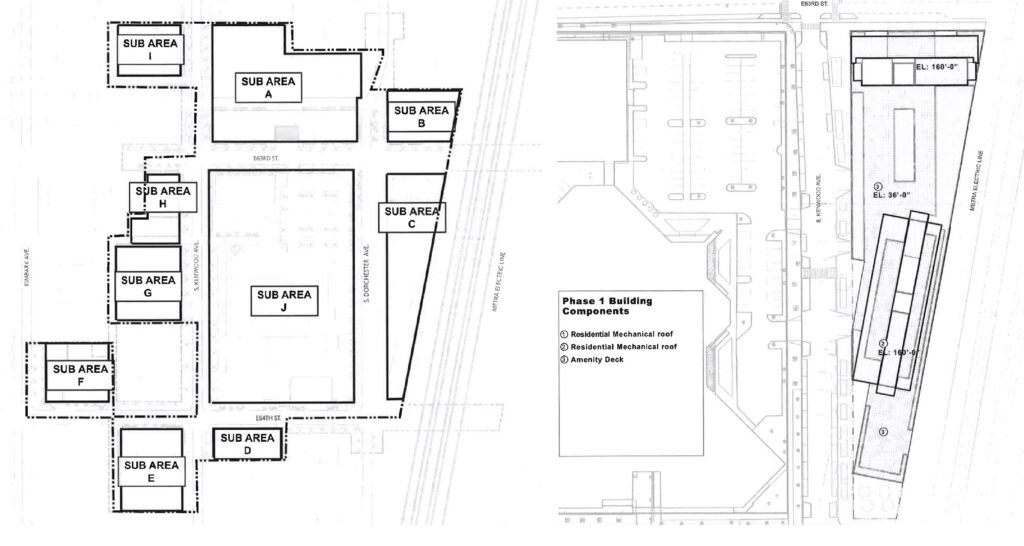
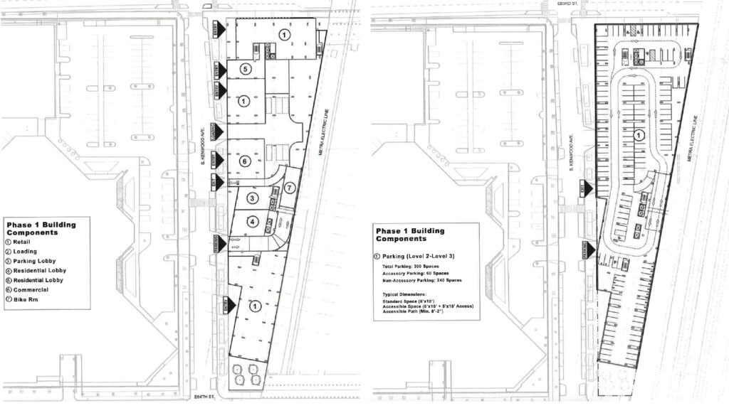
Phase one will rise on a wedge-shaped lot bounded by the existing Metra tracks to the east. Original plans for this block included a new Metra station and a hotel component, both of which have since been removed. The block-wide building will be anchored by a three-story podium containing 26,000 square feet of retail space, building lobbies, and 300 parking spaces.

Plans for phase one of Woodlawn Central by Sherwood Design Engineers

Elevation for phase one of Woodlawn Central by Sherwood Design Engineers
Of those parking spaces, 60 will be designated for residents, while 240 will serve visitors and church members. Above the podium will be two towers, each rising 14 stories and reaching 160 feet in height. Together, they will contain 231 residential units, though the unit mix has not yet been disclosed. Of these units, 20 percent will be designated as affordable housing.

Rendering of open space within Woodlawn Central by SOM and Gensler

Rendering of theater building and residences of Woodlawn Central by SOM and Gensler
Future phases of the project will include additional residential, parking, and retail space, as well as office space, a hotel, theater, museum, digital center, greenhouse, and public open space. A more detailed breakdown of each block from the original announcement can be found here. With zoning approval still pending, a construction timeline for phase one has not yet been established.
Subscribe to YIMBY’s daily e-mail
![]()
Follow YIMBYgram for real-time photo updates
Like YIMBY on Facebook
Follow YIMBY’s Twitter for the latest in YIMBYnews


put the 63rd st el back cowards!
Just make the ME line with the full frequency of a normal rapid transit line and make the ticketing system in-line with the rest of the CTA, atleast within the city limits. Same, maybe even better results, at a fraction of the cost.
This, but probably need to figure out a way to run more efficiently with less staff aboard each train. Turnstiles etc. probably solves that
Beautiful renditions! Greater appreciate that the Church and its development team disclosed its hope for one of the most important parcels in Woodlawn. It’s important for the region and the Greenline Modernization Planning teams to get back to the drawing board, in particular, Woodlawn and it’s promxicity to the Presidential Library. Oh happy day!
“WILL SOMEBOY THINK OF THE PARKING LOTS!!”
-probably some local NIMBY group disguised as a YIMBY activist group waiting for their bribe
SO TRUE! Once several NIMBYs in my community decried the loss of “green space” when someone proposed a modest infill three flat on a grassy vacant lot surrounded by chain link that was home to a rat den.
YIMBY article in 2022 stated a cost then $300-600 million. Is there a new estimate and where is the funding coming from.
Google seemed to be a good starting point for those questions. It appears to be primarily funded by private investment and incentives like tax credits. I think the church already owns the property. I suppose it is possible that it may come as a surprise to some that a South Side church can build projects with smaller subsidies than those handed out to billionaire sports team owners. I’m assuming that this will also put a lot of Hyde Park real estate back on the tax roll. The church owns all of the land, I think, and if there market rate housing, that abrogates (I think) the tax-free status for property owned by religious organizations. I think this means a net gain for the “tax payers”.
Also assuming that the costs have increased due to ongoing inflation.
Absolutely need to extend the green line the half mile more to connect at 63rd street Metra stop. With the Obama Library nearly finished and the numerous developments going up around the area more transit connectivity is needed.
It’s funny because the church building these developments was part of the push to remove the line in the first place.