Formal plans have been revealed for the upcoming redevelopment of the Emanuel Congregation at 5959 North Sheridan Road in Edgewater. The project encompasses both the lakefront lot on which the synagogue sits, as well as a smaller lot across the street just north of Thorndale Avenue. Efforts are being led by the congregation and developer Fern Hill.

Site map for 5959 N Sheridan Rd by Eckenhoff Saunders

Massing of 5959 N Sheridan Rd by Eckenhoff Saunders
Last October, we covered when the team, along with architecture firm Eckenhoff Saunders, revealed various potential massing schemes for the two-site development, ranging from 120 to 420 feet in height. Now, they have returned to the community with renderings and plans for the shortest of the options, which they had previously expressed as their preferred choice.

Rendering of six-story building by Eckenhoff Saunders
To kick off the project, the team would build a small five-story structure on the smaller lot west of Sheridan Road and north of Colvin House. Its ground floor would contain a temporary sanctuary space, classrooms, and offices for the congregation. The building would also include residential units on the upper levels and be clad in a cream brick exterior.

Floor plans of six-story building by Eckenhoff Saunders
This would allow for the demolition of the group’s existing synagogue in order to construct a new assembly hall. It is worth noting that once the final phase is completed, the smaller building will continue to serve as a school for Emanuel. The remainder of the development would rise on the larger lakefront lot east of Sheridan Road as a second phase.

Rendering of 12-story building by Eckenhoff Saunders
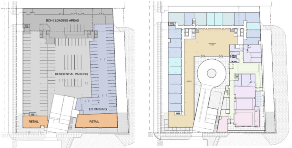
Work there would commence with Emanuel’s new permanent synagogue along the lakefront. It would sit above a large ground-floor parking garage and waterfront retail space intended for a restaurant. This configuration would elevate the assembly hall to the upper level and span an additional two floors with community rooms, offices, and other support spaces.

Rendering of 12-story building by Eckenhoff Saunders

Rendering of 12-story building by Eckenhoff Saunders
The aforementioned parking garage would eventually span the entirety of the ground level and include parking for future residents, back-of-house delivery areas, and an additional retail space at the northeast corner of Sheridan Road and Thorndale Avenue, complete with a patio. The second floor would serve as the main entry for both the residential structure and synagogue, anchored by a large central motor court.


Floor plans of 12-story building by Eckenhoff Saunders
Surrounding the motor court will be a 12-story, U-shaped building that will also sit above the synagogue. It will be anchored by a large amenity space on the second floor and capped by residential units above. In total, both buildings will contain 400 residential units made up of studio, one-, and two-bedroom layouts. Of those, 80 will be designated as affordable.

Elevation of 12-story building by Eckenhoff Saunders
The larger building will be clad in a mix of dark gray and white corrugated panels, with black metal accents and rooftop landscaping. The project will require additional community approval as well as zoning approval. Construction of the western building is expected to take approximately 12 months, while the eastern building would take around 15 months. No overall timeline has been announced.
The project’s community presentation can be found here.
Subscribe to YIMBY’s daily e-mail
![]()
Follow YIMBYgram for real-time photo updates
Like YIMBY on Facebook
Follow YIMBY’s Twitter for the latest in YIMBYnews


Obviously whatever they try to build here is going to face an uphill battle from the NIMBY’s in the towers nearby and this is going to go through at least half a dozen revisions. This isn’t terrible for a first draft. The low rise on the west side of Sheridan is decent infill.
Ugly . A two story garage on the lakeshore is in poor taste too .
Let’s hope this never gets built as proposed here .
It’s not a 2 story garage, just the ground floor.
That being said, if they shifted the parking to present some activated uses along Sheridan it would make the whole building a lot better. The current inefficient parking circulation layout means such a shift might not actually result in very much reduction in total parking (estimated as a half dozen), since it could be simplified to 3 parking aisles with a higher percentage of space dedicated to stalls vs. drive aisles.
That could easily be ground floor residential along Sheridan since the stacks all align with the floor above. Adding active uses on the lakefront side is a bit tricky because of the congregation. Although if parking was reduced to only ~30 parking spaces for residents then a waterfront restaurant could probably be accommodated.
Then again, that all could be added in the future since that is an atypically tall parking level (same height as retail), if the parking demand for tenants ends up being below what is provided on site.
That much parking in this dense of an area is not needed. It also could and should be much taller. Looks decent thought right now, hope they amend it
Both phases should be much taller, but the proposed renderings aren’t a bad start. I’d like to see at least 24-36 stories on the lakefront property. No one is entitled to views. You want to maintain your views, move to a higher floor or a better situated building.
TOTALLY AGREE! Maybe the neighboring condo owners probably purchase their units with the mindset that nothing would block the views from their building. But unless they purchased the air rights of this particular site, I’m sorry this development needs to be more dense/taller. We need more housing. It just doesn’t look right that we have this tiny new development surrounded by these huge mid-century towers!
Kudos to the congregation for taking steps to ensure they continue into the future. That said, the residential component of the lakefront plan is so hugely disappointing! If any piece of property should be a high rise building, it’s this prime beachfront location. And why pick a courtyard configuration that minimizes the views of Lake Michigan for residents. What a waste!
Temple Emanuel was fashion forward LSBD architecture when it was built. While not commanding, it was dignified and made an architectural statement. The west building in this scheme would be fine without the suburban black bank glass at the street. The replacement courtyard building is completely wrong for this site: a synagogue above a restaurant is undignified. Open this project to a competition so that a breathtaking architecture can be the result!!! (put the cafe on the west side of the street to have views of the lake instead of Sheridan Road!
Disappointing. The worst of the proposed designs, unfortunately.
Because of the many high rises already on Sheridan Rd, current zoning now limits new buildings to 6 stories. At least 5 new projects built within the last ten years and/or in the development now have agreed with zoning law. 400-600 new units would make traffic much more congested on the street.
“400-600 new units would make traffic much more congested on the street.”
People are more important than cars.
A new residential building is not the problem. Everyone in the area (including me) knows that the congestion on Sheridan Road is primary caused by commuters (not residents) passing through Edgewater on their way to DuSable Lake Shore Drive.
I purchased my condo at the Malibu with the knowledge that we would be zoned for no high rise buildings built on our side of the street. Now our view from the lower floors and pool deck will be blocked by this jumbo building with over priced apartments, with limited parking. Disappointing.
I am sorry you are disappointed, but zoning can change any time so there was never a guarantee you would have unobstructed views and sun for eternity. If I were your HOA, I would send a thank you note to the synagogue for proposing something so relatively small.
Views are not a protected asset. Whoever told you that lied to you.
I am sorry that you were taken advantage of in this way, but this is not a jumbo building. It is literally half the total mass of your condo building, including less than 1/3 the height.
Boo hoo. Zoning changes all the time so next time you want to preserve your view make sure you purchase the lot next door or a lakefront unit. The cost of those units in Malibu East are nowhere near what it costs to guarantee top shelf views for eternity.
This project’s design has a bad image and several personalities negative for a religious sanctuary. I think they should start over. The synagogue section looks stuck on and more Christian mausoleum like in a bad disrespectful way. So many different facade details, materials and colors makes my head spin.
The ” U ” should be pointed east towards the rising sun in the mornings
Agree that the courtyard should face east, if you’re committed to this dumb concept. The present plan configuration allows for the lowest percentage of units with potential lake views.
A taller, single point tower would have been the proper approach. It would have a smaller tower footprint, would provide more view opportunities for both the tower residents and for the neighboring buildings, and would provide the opportunity for a taller signature tower.
Curious about the little house just north of this property. On the east side of Sheridan. Will that be in any way part of this project?
IIRC that’s the Giannoulias family home. (Yes, THAT Giannoulias, though I don’t believe Alexi lives there at this point, it was his parents or grandparents, I assume.)
A different news sources says the little blue house property will be sold to Fern Hill IF/WHEN the development is approved.
Haven’t seen anyone talking about the central part of the “U” which could be a lovely space but appears to be an awful vehicle turnaround. Swing and a miss on this one. The NIMBYs will probably destroy it anyways.
Religious services and other synagogue events create concentrated periods of high traffic to/from the building so the courtyard driveway keeps the main entrance off of Sheridan Road.
Would love if they added at the minimum another floor to the building west of Sheridan so that it split the difference between the 5 & 7 story buildings on Kenmore across the alley.
I’ll forgive the lack of “activation” at street level because the majority of Sheridan Road from Hollywood to the curve at Devon/Broadway/Sheridan. Most of the street level in this specific area is occupied by blank building bases, lobbies, motor courts and parking lots.
This is a sad testament to the reality of Chicago’s present day status. In almost any other era this would’ve been a 30 or 40 story building at a minimum without pushback. Here it is one of the very few available lots along the lakefront and a 12 story courtyard is the highest aspiration. Whether Nimbys, aldermen or economics are to blame it’s unreal to think that a developer even attempting to propose a skyscraper along the north lakefront is reduced to a pipe-dream.
Back in the early 2000’s I would’ve thought a few 700’+ towers would exist by this point as the northside became more wealthy and desirable. The opposite has actually occurred. As more wealth than ever is concentrated on the north side the scale of buildings proposed has reduced dramatically. Chicago is beginning to fall behind Miami as a skyscraper city.
Rather shocking there’s no mention of providing public access to the lakefront. The Riverfront ordinance requires 30′ mandates… and here we get… 0 feet? For the LAKE? THe most important public resource for hundreds of miles around? Crazy. What a loss. Particularly here, where this could be an easy addition to Thorndale Park. It’s right there! The beach could be doubled for nothing. Have the 12 story building be a 24 story building where the eastern half of the lot is free, and double the size of the beach for the whole public. Public access to the lake for new construction along the lake should be mandatory, just like the river.
This is a great idea, but historically the existing buildings on this stretch of Sheridan Road have consistently fought against anything that might put their privileged lakefront at risk, such as expanding any portion of the public beach. There’s even an organized association of all the street’s HOAs so they can collaborate on “issues.”
there is NO lakefront behind the church. Its only large boulders to stop waves in storms. No beach at all.
Should be taller but thats my only complaint. Parking makes sense for the Synagogue.
Sheridan road does NOT need 400 more UNITS of anything. We already deal with TERRIBLE unsafe traffic that alderman does NOTHING about. People are constantly in danger crossing sheridan at ARDMORE bike path by SPEEDING cars. We dont need more development. We need SOMEONE to care about the constantly worsening quality of life for us already living on sheridan, for 10 or 20 years. NOBODY cares about us.
I like the design and plan. I realize there will be changes in the final draft, but please keep the restaurant and the low income housing units. Robert Rizzo
Will the beach next to Emmanuel be able to be used as now during the estimated 15 month construction on the east side?
If building is also going on across the street why can’t that be 12-15 stories including all the parking for all the apartments on the lower levels together with the cafe or whatever else planned for commercial use. Keep the east side for a smaller current zoning allowed residential building, the Temple, a courtyard for holiday use for Temple observances, and Temple parking. Then there might be a smaller lake impact with more views for apartments. The plans seem all over the place to me, with the Temple being an actual afterthought.