Plans for a new retail building were approved by the Plan Commission earlier this month. Located at 67 East Oak Street, the mid-block structure will replace an existing five-story building along the city’s highest-value retail corridor. The effort is being led by a local LLC along with the design firm Myefski Architects.

Site context map of 67 E Oak St by Myefski Architects

View of existing building via Sun Times
According to the Sun-Times, the developer originally explored remodeling the existing 12-tenant building before deciding to demolish it and start fresh. The move is in line with what has been happening along the corridor, with two-story new construction spaces aimed at a single tenant or brand, similar to the buildings on either side.

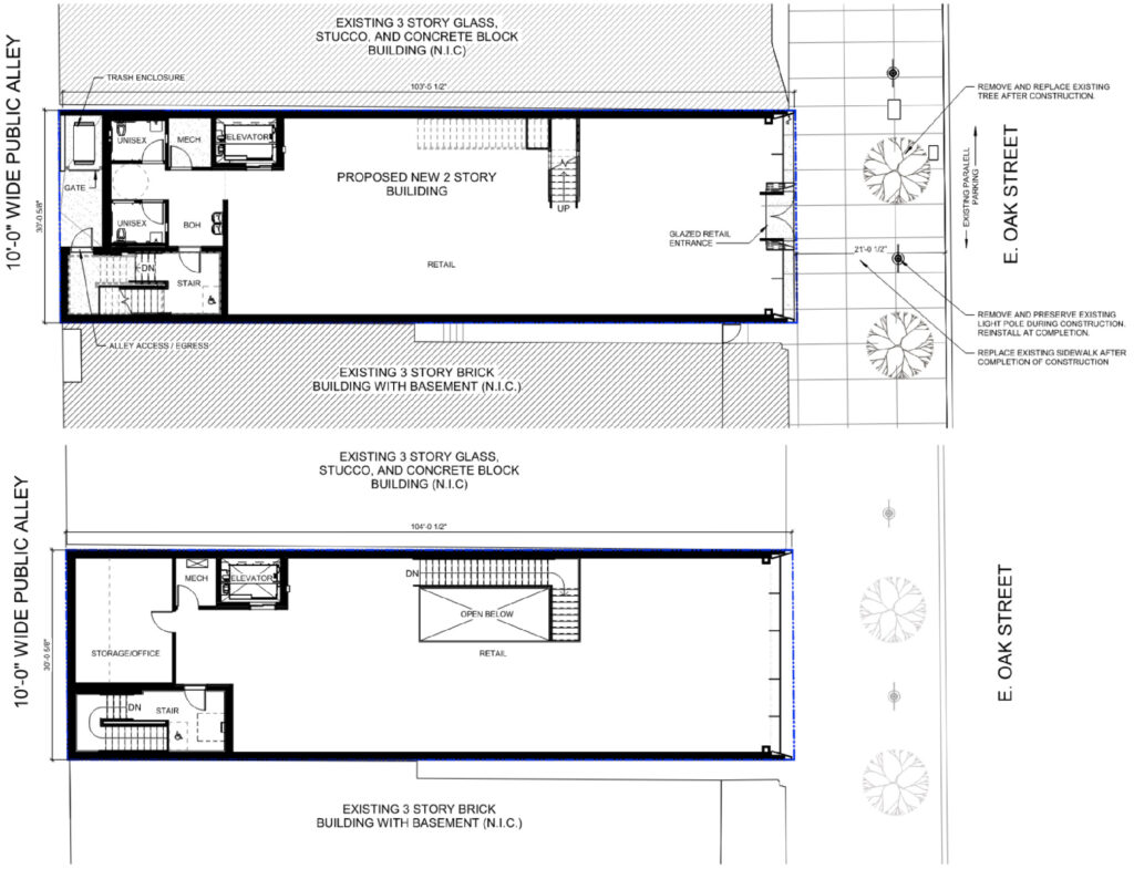
Floor plans of 67 E Oak St by Myefski Architects
Set to rise 35 feet in height, the building’s overall design will be relatively simple and feature an all-glass front façade framed by a thin black metal edge. Inside will be 5,960 square feet of space with a statement staircase to the second floor, an elevator, restrooms, and a small trash enclosure in the rear.

Section of 67 E Oak St by Myefski Architects
To ensure bird safety, the glass will include a slight etched pattern for visibility. The small building is expected to cost around $8.1 million to construct as a white box, meaning the future tenant will build out its own interior. Once all approvals are received, the team hopes to begin demolition at the start of 2026, with a targeted completion date of September 2027.
Subscribe to YIMBY’s daily e-mail
![]()
Follow YIMBYgram for real-time photo updates
Like YIMBY on Facebook
Follow YIMBY’s Twitter for the latest in YIMBYnews


boooooo
I do not understand the economics of tearing down an existing multi-use building to replace it with a short single use one. How does this work!?
It would likely cost a pretty penny to rehab the existing building to bring it up to modern standards and make it appealing for tenants. It’s much easier to lock in a single tenant long term than trying to round up a dozen (or so). This move as a no brainer.
How can the margins be better with only a single use tenant? I don’t think it’s a no-brainer at all and it’s pretty regressive for the greater neighborhood.
The building is fine just as it is. Don’t do this.
They evidently believe they can make more money with a large double height flagship retail space than a bunch of smaller retail/boutique/office spaces. If the existing building sat partially empty for years because they can’t find smaller retail to fill this expensive street, it might be the better solution, even property tax-wise.
Oak Street is becoming an anonymous glassfaced street wall of boredom
As others have noted, this is a reduction in density and shouldn’t be celebrated.
There is a literal skyscraper, 1000 Lake Shore Plaza (55 stories), on the same block less than half a block away. And they are building a two-story? Absurd.
A real downgrade both for the parcel and the block as a whole. These two-level single tenant stores are barely different than what can be found at Old Orchard Mall or Oakbrook. They just line a real street in this case.
This makes very little sense.
If the existing building isn’t feasible commercially due to its floor plates or leasing diagram, why can’t a new design proposal provide the desired double-height retail space for a single tenant at grade and integrate spaces suitable for other commercial/boutique office in the available 4 story envelope above?
Then you’d need to take space away from your boutique tenant for elevator and stairwells.
So many people in these comments that think they know best but actually are fairly clueless about commercial real estate LOL
OBVIOUSLY it is not very feasible to get small-time tenants in the current building, as we can all see. Rehabbing is also very expensive. Did you run the actual numbers yourselves? No? Okay, so sit down and stop making yourself look ignorant.
What needed Plan Commission approval? It’s such a small project, and smaller than the existing building, I’m surprised it’s not by-right.
It required a hearing because it’s in the Private Lakefront Protection District.
This actually makes a ton of sense. The rent in that neighborhood is extremely high so it doesn’t make sense for 12 tenants (there’s simply not enough volume in that small square footage for the math to tie).
The tenants it does make sense for are: (1) large mid to high-end retail brand (e.g. lulu, apple, quince, etc.) looking for a flagship location, (2) an ultra luxury brand with good volume (e.g. rolex) – neither of which wants to have a small format store in the modern retail environment.
Make sense to build a structure that meets the current demand.