Updated details have been revealed for the redevelopment of the Hollander Building at 2422 North Milwaukee Avenue in Logan Square. Located just north of the intersection with West Fullerton Avenue, the project has been in the works for nearly five years and has now received zoning approval after being taken over by a new developer.

Site context map of Hollander Building redevelopment via Google Maps
The last time we covered the project was just over a year ago, when the previous developer, GW Properties, received City Council approval. Since then, they have sold the site to J2 Equities, which has brought on SPACE Architects + Planners to take over the design. Much of the previous design has remained the same.

PREVIOUS rendering of Hollander Building redevelopment by NORR
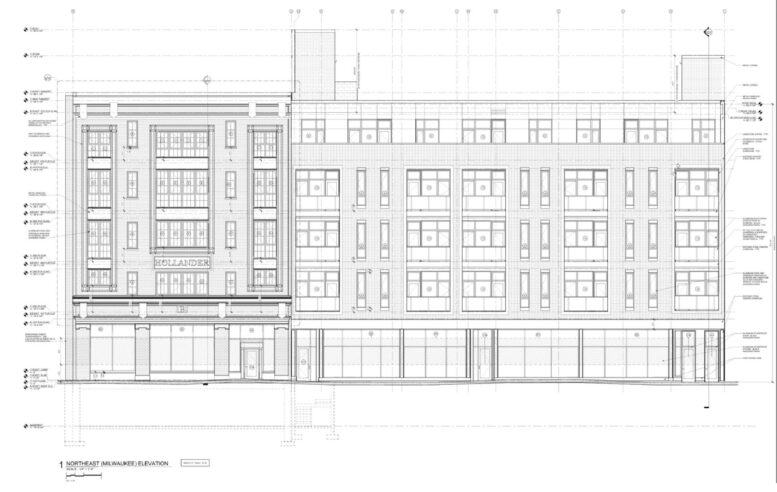
The project calls for the redevelopment of the existing Hollander warehouse along with a five-story expansion to the north, replacing a one-story commercial building and parking lot along Milwaukee. The Hollander building will have its facade restored and three columns of windows added, with the residential entrance to be built along Fullerton.


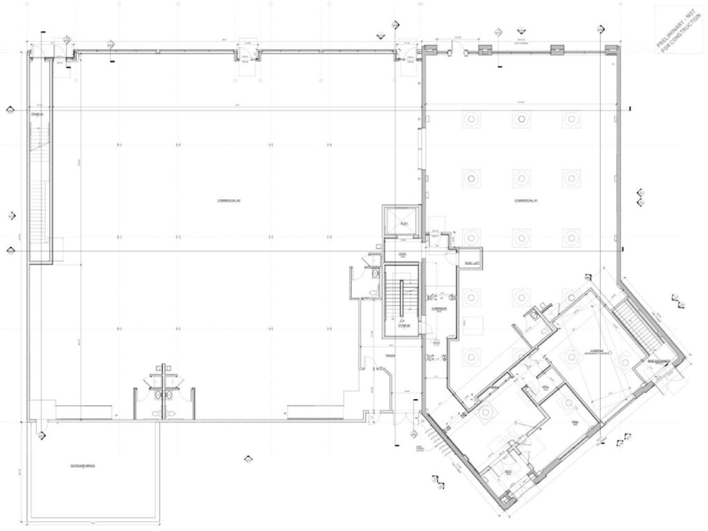
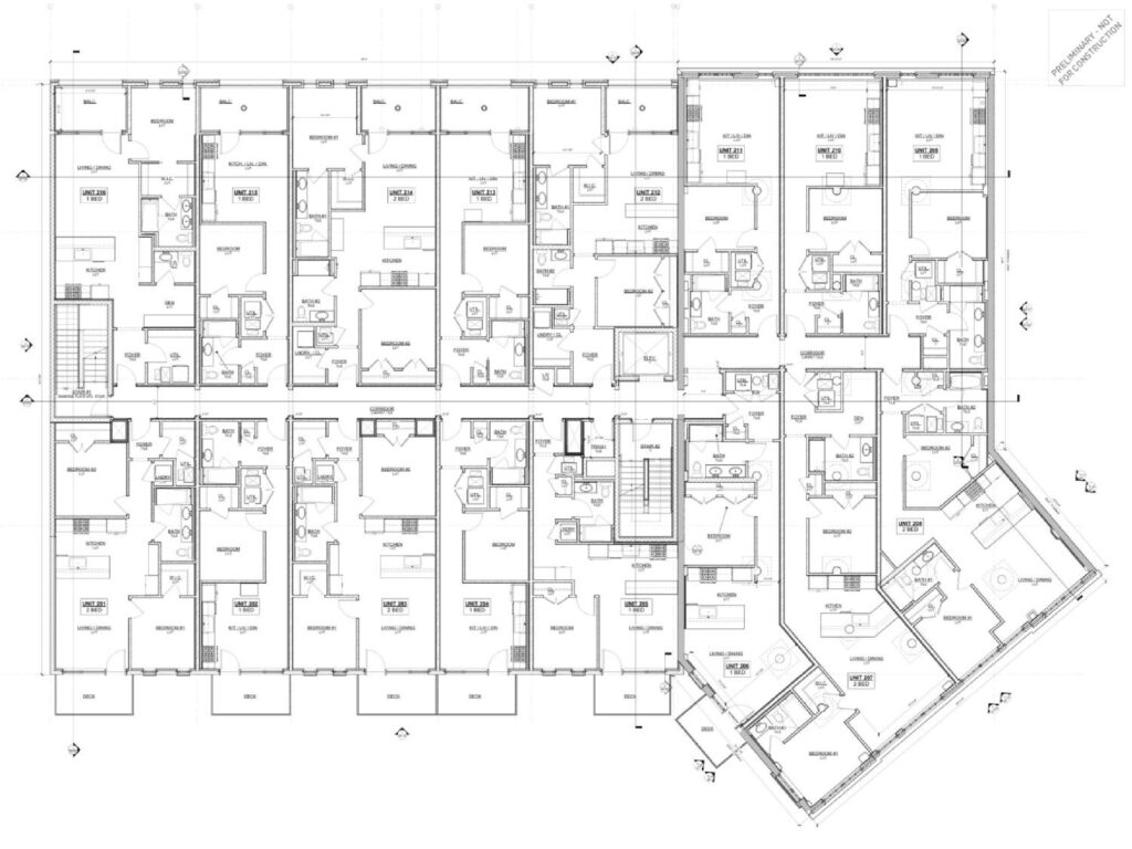
Floor plan of Hollander Building redevelopment by SPACE Architects + Planners
The remainder of the ground floor will hold 12,000 square feet of commercial space spread across both the new and existing structures. Behind this will be seven parking spaces along the alley. The upper levels will contain 62 residential units, made up of 38 one-bedroom and 24 two-bedroom layouts. Of those, 12 will be designated as affordable.

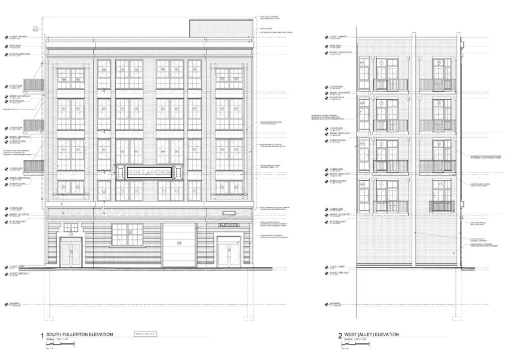
Elevations of Hollander Building redevelopment by SPACE Architects + Planners
Residents will have access to a shared rooftop deck, and the building will be clad in a brick facade. With this final approval from the Zoning Board of Appeals (ZBA), the project is cleared to move forward, and the development team has already submitted building permit applications. At this time, no construction timeline has been announced.
Subscribe to YIMBY’s daily e-mail
![]()
Follow YIMBYgram for real-time photo updates
Like YIMBY on Facebook
Follow YIMBY’s Twitter for the latest in YIMBYnews


This is great! I just wish they made the first floor just residential instead of commercial space.
Considering the intense busyness of this interaction, I think it’s best to peel back residences right at heart of such spaces.
It’s not a guarantee… but there’s no doubt this is an active area. Buses passing, more room to grow for others, a sound buffer would be difficult to maintain on the ground floor.
Lol what? Who would want to live on the ground floor here?
Explain why.
I agree the city of Chicago is oversupplied with ground floor retail space… but residential on the ground floor here would be odd.
Maybe I’d put residential on the Fullerton side but not on the Milwaukee side. Retail will definitely be used on that block of Milwaukee
This is a very busy public corner/street and it’s getting more so.
One of a Kind Hospitality now owns the closed Furious Spoon, Pink Squirrel and Deadbolt buildings and have had success with their restaurant concepts. You wouldn’t want to have a ground floor residence sandwiched between them.
The development of Milwaukee Ave. continues to move northwest along the Hipster Highway