The Chicago City Council has approved a mixed-use development at 2240 North Milwaukee Avenue in Logan Square. Revealed earlier this year, the project will replace a large parking lot at the intersection with West Prindiville Street, near the Congress Theater redevelopment. Efforts are being led by Kiferbaum Development Group.

Site context map of 2240 N Milwaukee Avenue via Google Maps

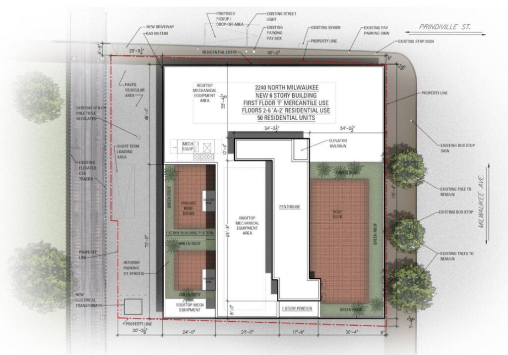
Site plan of 2240 N Milwaukee Ave by Jonathan Splitt Architects
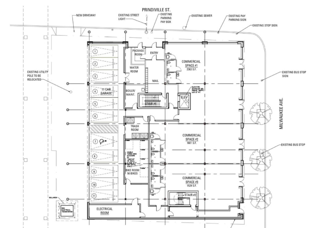
Designed by local firm Jonathan Splitt Architects, the six-story development will rise 72 feet tall and be clad in a red-brick exterior with loft-style windows and cast stone accents. The ground floor will include 5,500 square feet of retail space along Milwaukee Avenue, pre-split into three spaces. This will be joined by a lobby along Prindiville Street.

Floor plan of 2240 N Milwaukee Ave by Jonathan Splitt Architects

Floor plan of 2240 N Milwaukee Ave by Jonathan Splitt Architects
Tenants will also have access to 11 parking spaces along the rear alley within four garages. The upper floors will contain 50 residential units, consisting of five studios, 20 one-bedroom units, and 20 two-bedroom layouts, ranging from 587 to 1,192 square feet in size. Of these, 10 units will be designated as affordable. Select units along the rear will also feature private balconies.

Rendering of 2240 N Milwaukee Ave by Jonathan Splitt Architects

Rendering of 2240 N Milwaukee Ave by Jonathan Splitt Architects
Residents will have access to a 1,300-square-foot amenity space on the rooftop level, along with a large outdoor deck offering skyline views. Although a construction timeline has not been revealed, the team purchased the lot earlier this year for $1.5 million. With full zoning approval in hand, they can now apply for permits.
Subscribe to YIMBY’s daily e-mail
![]()
Follow YIMBYgram for real-time photo updates
Like YIMBY on Facebook
Follow YIMBY’s Twitter for the latest in YIMBYnews


This is a huge step up from the blue/grey garden shed on steroids across the street.
I actually love these type of buildings: mid-rises with a simple shape, red brick, nodding to Chicago’s industrial heritage.
If Hanna designed buildings like this the cityscape would be dramatically improved. Vast swaths of the northside are degraded with his rubbish.
The rendering shows a blank brick wall facing the eL with a single tiny window on each floor, but the floor plan shows two bedrooms sharing that same wall.
Once again, we include “affordable” units but no 3 bedrooms for families. Planned regular turnover, perfect for constantly raising rent.
Why did this require city council approval
I can’t imagine that zoning at this site would’ve allowed a development of this size by-right
11 parking spots for 50 units is a fantastic ratio. Especially considering the whole building is replacing a surface-level parking lot. Nice looking design as well!
Why are developers allergic to a nice cornice, they complete buildings
Thank you! 100% agree!
Love seeing new development on Milwaukee. There are just way too many empty lots waiting to be filled. Hope more developments come soon.
A cornice or some memorable, unique decorative feature should honestly be a requirement for approval
While I prefer the full brick over any of the other cheapo developments, it still is absolutely bland and doesn’t catch the eye at all. So many missed opportunities to make an imprint on the city’s beauty
You can never make some people happy
Nice masonry details and design for Logan Square, please no value engineering later.
I will take a bland looking mixed-use over many alternatives. The investment trend along the Hipster Highway continues (heading northwest along Milwaukee Ave) Godspeed