Partial funding has been secured, and building permits have been issued for the mixed-use development at 227 West Chicago Avenue in River North. Located at the corner of North Franklin Street, the upcoming mid-rise will replace a vacant lot that previously held a one-story commercial building.

Site context map of 227 W Chicago Avenue via Google Maps
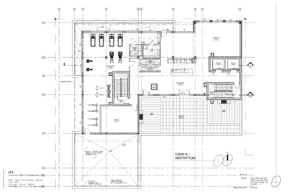
Led by Noah Properties, along with architecture firm Jonathan Splitt Architects, the ten-story structure will rise 135 feet in height with a site-wide one-story podium. Within the podium will be 28 vehicle parking spaces, a small lobby, and 3,000 square feet of retail space. The top floor will feature a small rooftop deck along with amenity spaces.

Floor plan of 227 W Chicago Ave by Jonathan Splitt Architects

Rendering of 227 West Chicago Avenue by Jonathan Splitt Architects
The tower above will contain 56 residential units, made up of 24 one-bedroom, 16 two-bedroom, and 16 three-bedroom units, ranging from 700 to 1,300 square feet in size. These will offer private balconies and floor-to-ceiling windows in select rooms. Of the total units, 11 will be designated as affordable.

Rendering of 227 W Chicago Avenue by Jonathan Splitt Architects
Clad in a light brown brick exterior with black metal accents, the $30 million project received a $23.5 million construction loan this week, according to Crain’s. Additionally, the team received a full building permit this week, allowing their general contractor, Remi Development LLC, to complete the structure by early 2027.
Subscribe to YIMBY’s daily e-mail
![]()
Follow YIMBYgram for real-time photo updates
Like YIMBY on Facebook
Follow YIMBY’s Twitter for the latest in YIMBYnews


I love this type of building for the city. They are not eye-catching, but they always blend in well with their surroundings. Furthermore, people love living in transit-oriented mid-rises; they bring density, foot traffic, and help local businesses flourish!
Finally, they nicely support more extravagant architecture once it’s build in their proximity.
Nice project, I’m convinced Chicago needs an ordinance that would issue fines every 6 months the lot sits empty, something needs to be done about property owners demolishing the old structures and then sitting on empty lots for years waiting for a new developer. It makes city ugly and should not be allowed. Some areas are plagued with this issue.
#Detroit
Did they ever implement the blight tax?
Nope, because of the largely unwarranted bankruptcy, Detroit has little control over its own taxes. It died after being presented to the state.
This could be achieved through a property tax reform where land is assessed at a higher rate than buildings. A good case study is Harrisburg, PA where it successfully stimulated more development.
Is this where we continue the never ending doom loop of Chicago in which crime is down, real estate has never been hotter, and the general population has never been wealthier?
From an equity perspective, there are some troubled waters forecasted. From a mayor perspective… major elephant in the room. But seeing the areas around Cabrini Green fill up, major attention building about Bronzeville, Garfield Park, and Hyde Park, and some other vanity projects make wind, hopefully finances can align with these many developers that are biting.
The downtown office conversions are going to be a major catalyst. The domino effect of their foot traffic impact will be inevitable. But all of this relies on the state getting mass transit funding. ALL of it.
A woke rant like this should have started with a land acknowledgement. And there was absolutely no attention paid to this building’s pronouns. Shameful.
When anyone uses the word woke unironically I immediately know that whatever opinions they holds are invalid. Thanks!
Sorry there’s direct proof unsupportive of your flawed narrative.
Do we have the floor plans for any of the other floors? I’d love to see them