Updated plans have been revealed for the upcoming health and job training hub at 3446 West North Avenue in Humboldt Park. Sitting on the corner with North St. Louis Avenue, the project was originally unveiled last fall with a more glass-heavy exterior. The team has now submitted a zoning application for the refined proposal.

Massing and site plan of ASI Health Hub by UrbanWorks
Efforts are being led by local organization ASI Health, which has been working with architecture firm UrbanWorks. Their plans call for a new five-story structure set to replace a surface parking lot. The design features a boxy massing articulated by angled window bays and large terraces. This will be supported by two parking spaces accessed from the rear alley.

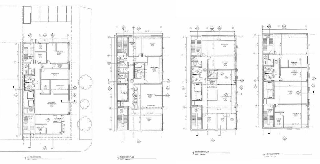
Floor plans of ASI Health Hub by UrbanWorks
Inside the 20,000-square-foot structure will be multiple classrooms, multi-use conference spaces, offices, and more to support the organization’s mission. Programming will focus on healthcare services and careers, including memory care for individuals with cognitive diseases, senior care, rehabilitation, and behavioral health services for the community.

Elevations of ASI Health Hub by UrbanWorks
Additionally, the project will provide bilingual workforce training in high-demand fields such as healthcare, technology, and green industries. The building will also serve as the new main offices for ASI Health, allowing the organization to train roughly 15,000 home care professionals per year. The $12 million development will now require city approval, with no timeline yet established.
Subscribe to YIMBY’s daily e-mail
![]()
Follow YIMBYgram for real-time photo updates
Like YIMBY on Facebook
Follow YIMBY’s Twitter for the latest in YIMBYnews


This is major and congratulations to the local organization for its grand plan. Certainly, hope to see a more refined approach to its healthcare training offerings. 15,000 per year trained on Home health care workers at that intersection will require a second look at parking and intersection enhancements. Would be interested in seeing its relationship with City Colleges, the Archdiocese of Chicago and regional universities. Hoping the City Council will dive deep with this application in order strengthen collaborations in workforce development. Very impressive!
Parking shmarking.
They can all download the Ventra App