Plans have been revealed for a new mixed-use development at 526 North Western Avenue within Smith Park. The proposal would replace a small commercial building near the intersection with West Grand Avenue, just southwest of Ukrainian Village. The small bow-truss structure most recently housed a migrant shelter until its closure in 2024.

Site context map of 526 N Western Ave via Google Maps
Efforts are being led by Panoptic Group, which has been building small-scale projects in recent years. The developer has been working with local design firm Hanna Architects on the five-story structure, which will rise to approximately 59 feet in height. The exterior will be clad in a mix of corrugated decorative panels and brick.

Elevations of 526 N Western Ave by Hanna Architects
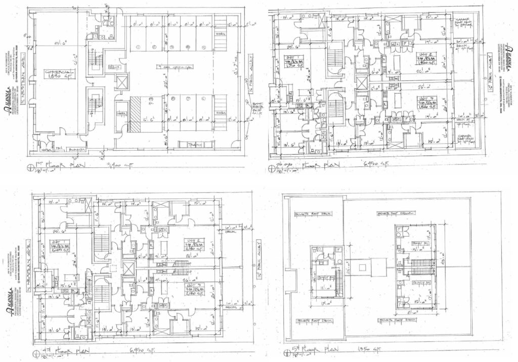
The ground floor will include 1,830 square feet of commercial space along the streetfront, as well as a small lobby and a nine-car parking garage at the rear along the alley. The floors above will contain nine residential units, all of which will be three-bedroom layouts. There will be no affordable units, as the project falls just below the threshold required by the ordinance.

Floor plans of 526 N Western Ave by Hanna Architects
While all units will feature a private balcony, the three top-floor units will also have access to a rooftop family room and outdoor deck. The team has already submitted a zoning application to the city, though no timeline has been announced.
Subscribe to YIMBY’s daily e-mail
![]()
Follow YIMBYgram for real-time photo updates
Like YIMBY on Facebook
Follow YIMBY’s Twitter for the latest in YIMBYnews


You’ll be paying for the world class view of the liquor store parking lot.
Do I want to look at a parking lot? No. Do I want walkable access to a liquor store? Hell yes. Certainly beats looking at a drive through Burger King.
This whole area has a lot of potential. Once Metra redoes the A-2 interlocking, hopefully they will also upgrade the Western Ave station. This whole cluster is ripe for TOD.
I’m not familiar with the area. Is there significance to the phrase “within Smith Park” instead of “near” the park or “in” the neighborhood. I was picturing a new building in the middle of a grassy field next to a playground. Thanks!
“Corrugated decorative panels”? The Quonset hut elevated to architectural grandeur? Will be interesting to see the result, for what will presumably be rather pricey 3 BR units.
It’s important to attack places you don’t live. They are a threat to you.
Once the red line extension is finished the city needs to take a look at building the western ave line. Reducing car dependency on the near west sides would be wonderful