Updated details have been revealed as plans for the residential development at 3233 North Sheffield Avenue have been submitted for zoning by the development team. Located near the intersection of West School Street in Lake View, the large proposal will be replacing three industrial buildings that previously housed Torstenson’s Glass Factory.

Site map of 3233 N Sheffield Ave by 2rz Architecture

Site plan of 3233 N Sheffield Ave by 2rz Architecture
The project is being led collaboratively by North Park Ventures and SNS Realty Group, with 2rz Architecture handling the design. Since we first covered the project in August, the plans have been slightly modified. However, the exterior design has remained largely unchanged, continuing to use insets and multi-tone brick to break up the building’s massing along the streetfront.

Floor plan for 3233 N Sheffield Ave by 2rz Architecture

Floor plan for 3233 N Sheffield Ave by 2rz Architecture
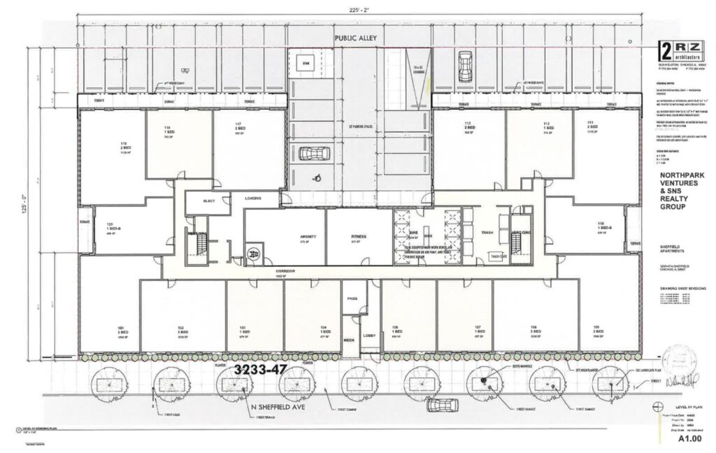
The ground floor of the U-shaped structure will include a small amenity room, a fitness room, a small office, tenant storage, and multiple residential units. This level will connect to a 25-vehicle parking lot at the rear. In total, the building will contain 99 residential units, a slight increase from the previously announced 92, resulting from the addition of studio units to the program.

Rendering of 3233 N Sheffield Ave by 2rz Architecture

Rendering of 3233 N Sheffield Ave by 2rz Architecture
The updated unit mix will consist of four studios, 46 one-bedroom units, and 49 two-bedroom units. Of the total, 15 units will be designated as affordable housing. While the project’s cost has not yet been disclosed, the development team is expected to receive city approval in the coming months. A construction timeline has not yet been announced.
Subscribe to YIMBY’s daily e-mail
![]()
Follow YIMBYgram for real-time photo updates
Like YIMBY on Facebook
Follow YIMBY’s Twitter for the latest in YIMBYnews


There seem to be 10 of those 1 bedroom units (2 per floor, 1 at the north inset, 1 at the south inset) will have borrowed light bedrooms. Along with 8 of the 2 bedrooms (the corner units next to the stairs on the upper floors) will have at least 1 borrowed light bedroom.
That is a pretty good ratio compared to many recent new construction projects.
Good density but incredibly ugly
My thoughts exactly lol
So many cool Chicago architectural styles to pick from and they went with bland postmodern sunbelt-style 5-over-1.
So glad they have three different setbacks and 4 different facade materials to break up all that scary, scary massing.
Incoherent and unserious. Take this thing back to Nashville where it belongs.
Agreed, this might fly in Atlanta but these buildings look so so bad across the street from old Chicago architecture.
Watching NYC YIMBY this is pretty sad indeed. NYC under construction countdown – 14th tallest – 50 something stories. Chicago – this. 🤦🏻♂️ and it’s not like there’s no demand for housing, but business climate and bureaucracy is so bad no one wants to commit anything major.
Underlying zoning here looks to be B3-2, which allows for a max height of 50 feet.
You can be as upset as you want that it’s not 50 stories tall, but this proposal is essentially as maxed-out as the underlying zoning allows.
I get it but we aren’t NYC. The economy isn’t doing well and NYC will always get priority for development. Chicago tons of open lots and industrial buildings waiting to be built on. It will be a while until we only see taller developments replacing the low/mid rises. Obviously getting companies to invest has been a worrying issue, but nothing that can’t change with a couple sparks.
Indeed. I’m very optimistic about Chicago. Very few other cities in the US have what Chicago already is today. The less tall infill is incredibly exciting as it makes all neighborhoods much more vibrant and livable. Height is necessary closer to the city center, but it’s not what’s needed to take Chicago to the next era of livability.
Totally agree. While I wish we had more major developments going up like in years past, it’s exciting to see more dense infill in the neighborhoods. That’s where a majority of people live, so making it more lively is just as important
I feel like that’s a separate issue that has to do with the downtown and central part of the city. Development like this is actually just what we need when it comes to this type of neighborhood. This neighborhood is more like Long Island, not Manhattan.
As a lifelong Chicagoan we need this all over the city (hopefully better designs too haha) and we don’t need to go too much higher outside of the downtown and lakefront areas.
I wouldn’t be saying this if Chicago was in a different position. The reality is we have so many empty lots and, despite a lot of growth on the north side including this area, we still don’t have that much demand. There is demand though, and it’s better if we spread the development out with buildings like this to rebuild the city in a more spread out way, and also there’s usually more backlash as you go taller. Chicago can be doing so much better but, we’re doing relatively well lol
Could this look uglier? No charm or character to try to fit in with the neighborhood. A neighborhood where we quickly losing all over charming character to stuff like this.
Truly ugly. Wish the original structure could be repurchased rather than torn down. I hope we don’t lose our beautiful old buildings.