Details have been revealed for a new mixed-use development at 7644 North Sheridan Road in Rogers Park. Located at the intersection with North Rogers Avenue, the project will replace two structures, including a two-story commercial building. The proposal is being led by 5T Development Partners along with local firm SEEK Design + Architecture.

Site context map of 7644 N Sheridan Rd by SEEK Design + Architecture

Site plan of 7644 N Sheridan Rd by SEEK Design + Architecture
The V-shaped building will rise five stories and approximately 60 feet in height, containing a small central courtyard. Its large massing will be visually split into two sections, with the street-facing portion featuring a sawtooth design clad in metal. The nearly 200-foot-long northern portion, stretching to the back alley, will have a more straightforward design clad in brick.

Massing diagrams of 7644 N Sheridan Rd by SEEK Design + Architecture

Rendering of 7644 N Sheridan Rd by SEEK Design + Architecture
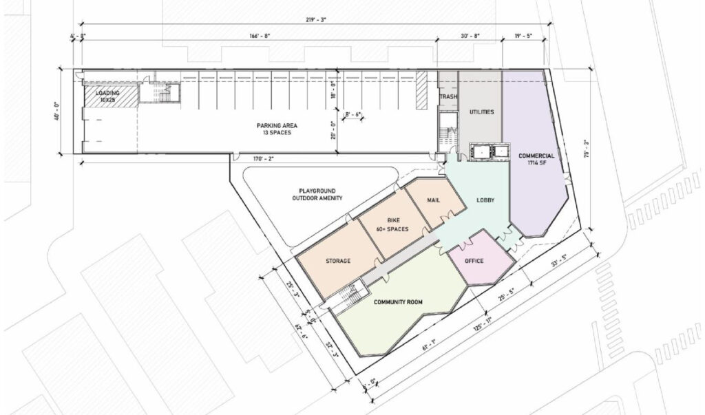
The ground floor will contain a 1,714-square-foot commercial space at the street corner, which will be joined by the lobby, an office, a large community room, bike parking, and a 13-car parking garage accessed from the alley. The upper floors will hold 44 residential units made up of four one-bedroom, 28 two-bedroom, and 12 three-bedroom layouts.


Floor plans of 7644 N Sheridan Rd by SEEK Design + Architecture
All of the units will be designated as affordable, with some set aside for various income levels ranging from 30 to 80 percent AMI. Each floor will include a shared laundry room. The project will cost $21 million and will be funded via Low-Income Housing Tax Credits (LIHTC) through the city’s affordable housing program. It will need to clear multiple hurdles before securing the funds.

Rendering of 7644 N Sheridan Rd by SEEK Design + Architecture

Rendering of 7644 N Sheridan Rd by SEEK Design + Architecture
If all goes according to plan, the team could secure funding by the end of next year while also obtaining the necessary lakefront zoning approval. It is worth noting that the project would rise just down the street from 7728 North Sheridan, a similar proposal that was recently significantly downsized. Currently, the team hopes to break ground in 2027 and open in mid-2028.
Subscribe to YIMBY’s daily e-mail
![]()
Follow YIMBYgram for real-time photo updates
Like YIMBY on Facebook
Follow YIMBY’s Twitter for the latest in YIMBYnews


For affordable housing this is a beautiful, well thought out structure. It’s better looking than a lot of the luxury housing going up in Lakeview/Lincoln Park/River North/Logan Square…Kudos to the architects on this one. Hopefully, the finishes look good and stand the test of time in Chicago’s climate
it should look nice if the taxpayers are paying $500,000 per unit.
Each “taxpayer” is going to fork out about 0.25/unit, at the most, paid over a 15-30 year span. I’m perfectly willing to pay that much to have an empty liquor store and bar be replaced by a nice building with retail I might actually use. I’d be willing to pay that just to look at a nicer building on that corner.
yes I love to overpay for things too! in this case, we are overpaying by about $250,000 per unit.
“Overpaying” for a quality building that will be rented at a loss so that people who are struggling don’t have to leave Chicago is a better use of my taxpaper money than so many other things.
I understand this option may be more expensive, but I suggested via the community survey that the architect consider swapping the exterior materials. Brick on the east and south street-facing sides would better complement the existing neighborhood, while the metal exterior panels are better for the less visible north side of the building.
I was surprised to see this layout, as it is much less efficient in terms of usable space than if they had pursued a Y shape that opened towards the corner, with the single unit leg still reaching back to the alley. Which would have allowed all of their corridors to be double loaded, with the leg off the & back towards the alley able to fit the largest units (a very compact 4 bedroom layout).
This would reduce the number of required stairs to 2, increase the rentable square footage, & lower the cost per unit. If they reduced the parking on the ground floor they’d even be able to increase the number of units by adding some nice ground floor accessible units too, especially if they eliminated that commercial which is going to struggle as much as the existing retail does.
Wow I really like this design. Fits the space well and will elevate the neighborhood as a whole
Metal cladding is CHEAP, and will age POORLY. I suggest not allowing this material to be used.
Good feedback Former Housing Architect.
I live near the site and absolutely welcome housing. It would be so much better for the block than an abandoned former liquor store.
It doesn’t fit the neighborhood 🙁
I am in favor of AHU for working people in Rogers Park. I think more developers would build these type of buildings if they could get property tax relief for commercial properties. I also feel these commercial properties should be zoned away from the lakefront.