A permit has been issued by the City of Chicago to allow construction to begin on a 44-unit residential development at 6301 South Western Avenue in Chicago Lawn. Using the address of 2355 West 63rd Street, the permit was applied for by the Southwest Organizing Project (SWOP) on April 7 of this year. It came through on October 7 with a reported cost of $16 million.

Site context of 6301 South Western Avenue/2355 West 63rd Street, via Google Maps
Located on the southeast corner of Western Avenue and 63rd Street, the property is across the street from the 1924-built Marquette Bank at 6314 South Western landmarked by the city in October 2008. The development site is currently improved with a vacant three-story masonry building, for which a demolition permit will need to be issued.

6301 South Western Avenue, circa July 2025 via Google Street View
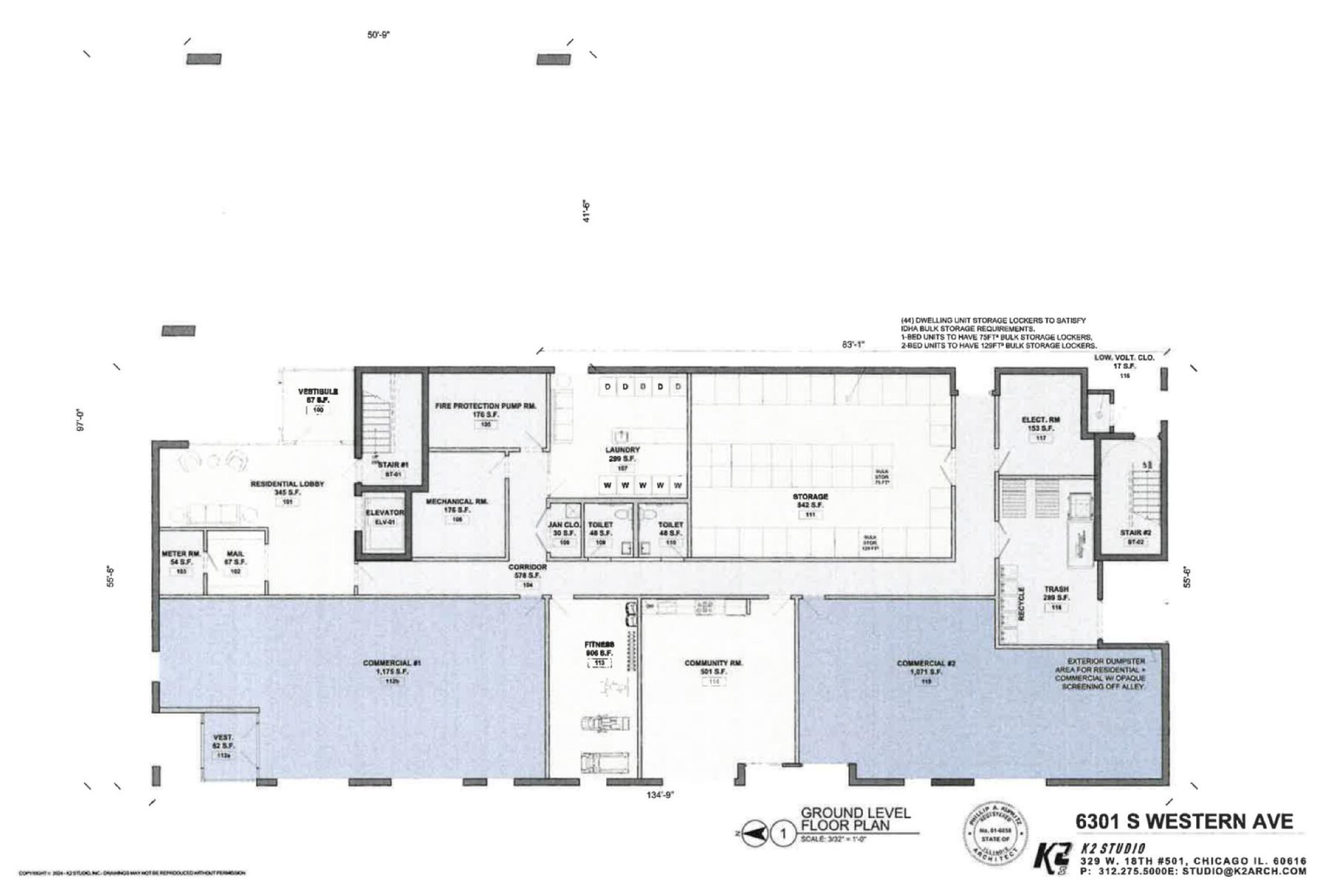
K2 Studio has designed a five-story building for the site. The ground floor will include about 2,000 square feet of commercial space fronting Western Avenue, which, according to language in the permit, will be used by a single tenant, though a K2 Studio rendering shows it as two separate spaces. Also located on the first floor will be the residential lobby and vestibule, a large storage area, shared laundry facilities, a small gym, and a community room. There will be 11 surface parking spaces provided outside.

Form and elevations of 6301 S Western Avenue by K2 Studio

2024 form and elevations of 6301 South Western Avenue by K2 Studio
The 44 apartments will occupy the four upper levels, and all of them will be considered affordable units. Toro Construction Corporation of Orland Park is named as the general contractor. Upon City Council approval in February of this year, the projected completion date for the development was the third quarter of 2026. It is not clear if that goal will still be met with this week’s granted permission.

2024 floor plan of 6301 South Western Avenue by K2 Studio

Local rail options, via Google Maps
Tenants of 6301 South Western will reside on an intersection with stops for east-west and north-south CTA buses. The Route 63 63rd Street bus can be used to connect with the Halsted Green Line about 2.2 miles east, and Route 49 and X49 buses can be used to connect with the Western Orange Line about 1.8 miles north.
Subscribe to YIMBY’s daily e-mail
![]()
Follow YIMBYgram for real-time photo updates
Like YIMBY on Facebook
Follow YIMBY’s Twitter for the latest in YIMBYnews


A veritable ocean of vacant lots in this area, and of course they have to tear another one down to build this
Way to go!
There’s a surface parking lot right across the street from it, too. 6300 would be a great place to build without needing to tear anything down. I hope they at least consider building at 6300 in the future, but maybe the bank wants to keep that whole space
Not including site acquisition and demolition costs, this project will provide 44 affordable units for about $364,000 per unit. There are hundreds of vacant apartment buildings in West Englewood that could be purchased and rehabbed for far less. This is no way to address the affordable housing crisis in this city. Politicians love a ribbon-cutting.
Another crime against architecture for some “affordable housing” man, living in this city can feel like a humiliation ritual sometimes.
We desperately need a North/South rail line down western ave. It’s one of the busiest streets in the city and the longest but it is bumper to bumper traffic because there is not alternative
Don’t forget Ashland/63rd on the Green Line Englewood branch