Updated plans have been revealed for a residential development at 1453 North Sedgwick Street in the Near North Side. Located at the intersection with West Blackhawk Street, the proposal would replace a pair of three-story homes across from the Marshall Field Garden Apartments.

Site context map for 1453 North Sedgwick Street via Google Maps
The project is being led by a local developer under a separate LLC, with Red Architects serving as the designer. The new building would occupy the entirety of the site near Old Town, situated on a unique block without rear alleys. Because of this, and due to the bus stop located in front of the lot, there will be no on-site parking.

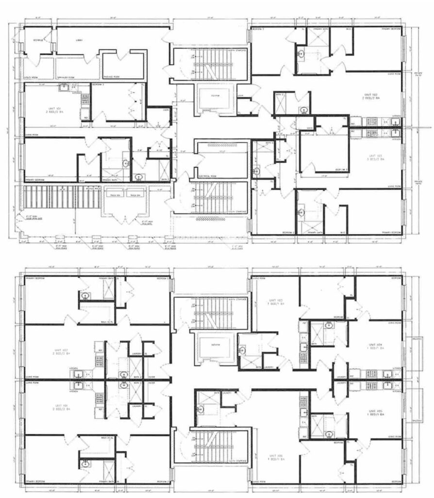
Floor plans of 1453 North Sedgwick Street by Red Architects
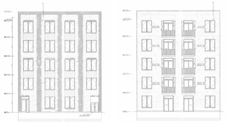
Rising five stories and 66 feet in height, the building will contain 27 residential units. These will include 16 one-bedroom, 10 two-bedroom, and one three-bedroom layout. Of these, five units will be designated as affordable. Select units along the rear wall will also have access to private balconies.
The building will be clad in brick with metal panel accents. Additionally, there will be a 30-bike parking room on the first floor, accessible from the front. The developer has now submitted a zoning application for the project, which will require approval from both the alderman and the city before moving forward.
Subscribe to YIMBY’s daily e-mail
![]()
Follow YIMBYgram for real-time photo updates
Like YIMBY on Facebook
Follow YIMBY’s Twitter for the latest in YIMBYnews


Wholly cow…not a lot of character here…
They should be building on that parking lot right next to it, not demolishing homes
The existing homes are somewhere between not charming and outright ugly. I have no issues with this and will save my judgement on the new design until renderings or construction.
I agree that the current homes are not pretty – but a nice example of what much of the neighborhood once looked like. In any case, seems as if their time has come, and we’ll be getting many more residents in the same space. That’s good news.
5 stories, 27 units, and no on-site parking? Awesome. This is a huge win. It’s right in front of the bus stop and less than a block from the Sedgwick station. Loving this.
Wonder if that vacant lot south of there where get some attention soon. This stretch can use 5 story density with the transit station there.