Plans have been revealed for a mixed-use development at 2121 West Grand Avenue in West Town. Located near the intersection with North Hoyne Avenue, the proposal would replace a large vacant lot that is occasionally used for material storage. The project is being led by Panoptic Group, which has completed similar developments both nearby and across the city.

Site context map for 2121 W Grand Ave via Google Maps
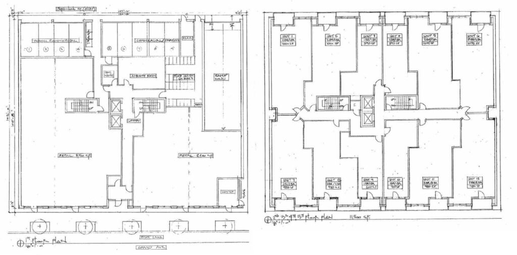
Like many of the other mid-rises we’ve been covering, this one is also being designed by Hanna Architects. The new building will rise five stories and stand just over 60 feet tall, sitting atop a 25-space underground parking garage. The ground floor above will feature 5,900 square feet of retail space, split into two units, along with nine additional parking spaces accessible from the rear alley.

Plans for 2121 W Grand Ave by Hanna Architects
The upper floors will contain 48 residential units, comprising 16 one-bedroom and 32 two-bedroom layouts, ranging from 590 to 1,075 square feet in size. Of these, 10 will be designated as affordable housing. All units will include a private balcony and access to a small amenity space; however, there will be no shared rooftop deck.

Elevation for 2121 W Grand Ave by Hanna Architects
The building will be clad in red brick with black metal accents and window frames. Along the streetfront, the balconies will be inset. Before moving forward, the development will need to gain city approval, and the team has already applied for zoning. As of now, no timeline or overall budget has been revealed.
Subscribe to YIMBY’s daily e-mail
![]()
Follow YIMBYgram for real-time photo updates
Like YIMBY on Facebook
Follow YIMBY’s Twitter for the latest in YIMBYnews


Man those long units are brutal. Otherwise it should look fine. Hanna’s renderings are really bad and as long as they aren’t doing something dumb with panels or alternating brick colors they can look good enough. 0.5 parking ratio is pretty good for Grand.
These infill developments on Grand are fantastic. The street has really come alive over the past few years and this will continue to help.
What is the rental units starting at?