A permit has been issued by the City of Chicago to allow for the construction of a residential building at 4009 North Oakley Avenue in North Center. That’s the former site of Chicago Joe’s restaurant, which was permitted for demolition on August 29, 2022 so the site, located on the northeast corner of Oakley and Irving Park Road, could be redeveloped.

West and south elevation rendering of 4009 North Oakley by SGW Architecture & Design

South elevation rendering of 4009 North Oakley by SGW Architecture & Design
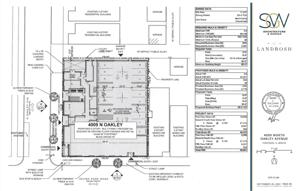
Landrosh Development is the site owner, developer, and general contractor. Real estate records show they purchased the property in July 2022 for $1.85 million. They’ll now erect a five-story, 58-foot building with 38 dwelling units, eight of which will be set aside as on-site affordable homes. They filed an application to build on April 15, and it came through on October 7 with a reported cost of $7.7 million.

Looking southeast from Oakley Avenue, February 2025. Photo by Daniel Schell

From the corner of Oakley and Irving Park, February 2025. Photo by Daniel Schell

Photo by Daniel Schell
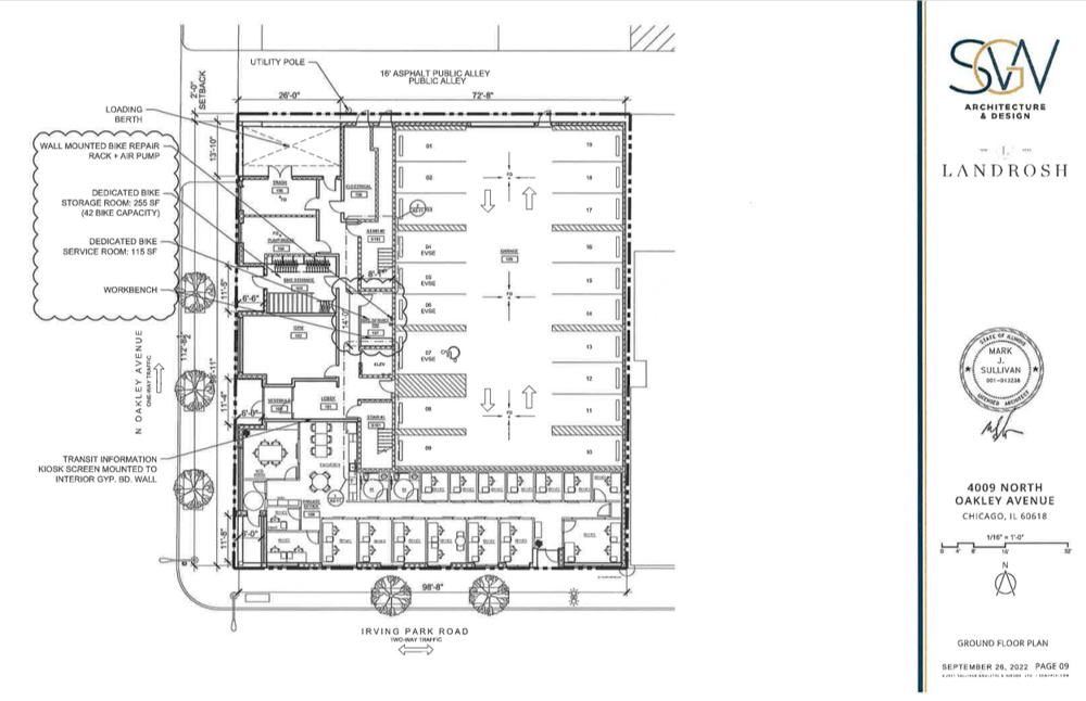
The residential units will occupy the upper four floors. The first floor is to include 2,800 square feet of retail/commercial space; a rendering and a note on the Landrosh website indicate this may be office spaces. A garage accessed from the alley off Oakley will include 19 parking spaces. Storage for 42 bicycles will be included, as will be a workshop dedicated to bike repair. The residential entrance, lobby, and mail room will be accessed from Oakley Avenue.

Site plan for 4009 North Oakley by SGW Architecture Design

Ground floor plan for 4009 North Oakley by SGW Architecture & Design

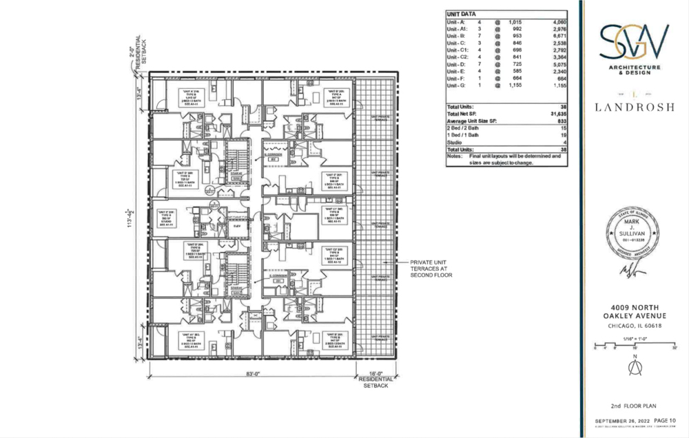
Second floor plan for 4009 North Oakley by SGW Architecture & Design

Third and fourth floor plan for 4009 North Oakley by SGW Architecture & Design

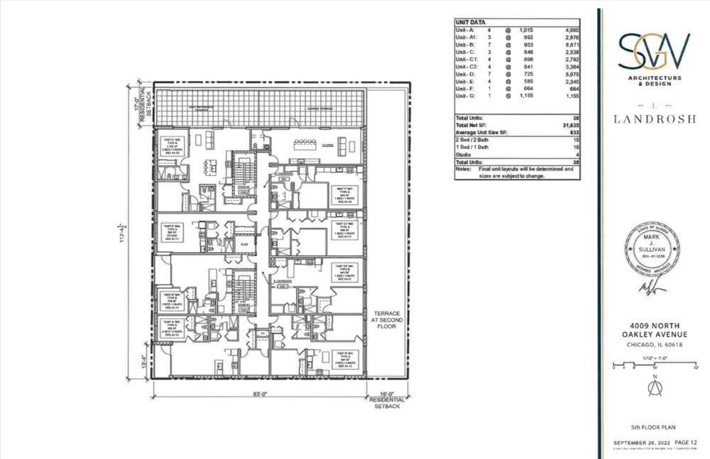
Fifth floor plan for 4009 North Oakley by SGW Architecture & Design
Renderings by SWG Architecture & Design show a two-tone brick veneer exterior. Inset balconies will face Oakley Avenue. Setbacks on the second story of the east elevation and on the top floor of the north elevation will provide outdoor terraces at those two levels.

Site context, via Google Maps

Nearby transit options, via Google Maps
The corner of Oakley Avenue and Irving Park Road has bus stops both eastbound and westbound for the CTA’s Route 80 bus. For north-south travel, Route 49 and X49 buses make stops one block west at Western Avenue. The Irving Park Brown Line elevated platform is just over half a mile to the east; the Route 80 bus can be used as a connection.
Subscribe to YIMBY’s daily e-mail
![]()
Follow YIMBYgram for real-time photo updates
Like YIMBY on Facebook
Follow YIMBY’s Twitter for the latest in YIMBYnews


Housing will be welcome here, though Chicago Joe’s is missed. A bold design, with a bit of a detention facility vibe in the renderings.
Another throw away building design, adding nothing to the city’s character or charm.
Black-and-white can be a cool design but this one has too much black and not enough white for me. Some horizontal white trim under the balconies could be nice.
Anyway, it’s more housing and more density so I support it!
Housing and density are almost always good, and this area is so car-centered, I’m happy to see an empty lot turn into housing.
Too dark??? Give me the building some happy COLOR!!!
Too dark, make bright, happy color? Not black..
I really love this
The architects this is incredible. It’s gonna fit in great with our old architectural buildings that are still standing Azaming can’t wait to see it !thanks for making our chicago look so beautiful!!!!
We really need the housing in the area, and I’ll welcome this lot no longer being empty, but everything that Landrosh makes is absolutely hideous.