Plans have been revealed for the residential redevelopment of four vacant lots at 3736 to 3766 South Michigan Avenue in Bronzeville. Located just south of the intersection with East 37th Place, the property has been vacant for over two decades, near Guaranteed Rate Field. The project is being led by Capricorn Design + Build LLC.

Site plan of 3736-3766 S Michigan Ave by Hanna Architects
The 47,000+ square-foot lot will be redeveloped with four separate four-story buildings, designed by Hanna Architects. Each structure will rise approximately 52 feet in height and be clad in red brick with cast-stone accents. The overall design draws inspiration from Chicago’s traditional six-flat buildings, and will contain a total of 90 units across the four structures.

Elevations of 3736-3766 S Michigan Ave by Hanna Architects

Elevations of 3736-3766 S Michigan Ave by Hanna Architects
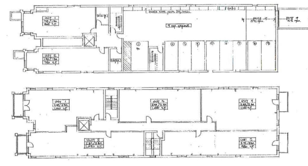
Each building will feature street-facing units, along with 14 parking spaces distributed between a small garage and the rear alley. Two of the buildings will contain 22 units each, while the other two will each contain 23 units. Of the 90 total units, approximately 15 percent will be one-bedroom layouts, with the remainder being two-bedroom units.

Sample plans of 3736-3766 S Michigan Ave by Hanna Architects
To meet city requirements, 18 units will be designated as affordable. There will also be a small rooftop deck atop of each building. The developer plans to construct each structure sequentially, in separate phases, but is seeking city approval for all four through a single planned development application. At this time, no construction timeline has been announced.
Subscribe to YIMBY’s daily e-mail
![]()
Follow YIMBYgram for real-time photo updates
Like YIMBY on Facebook
Follow YIMBY’s Twitter for the latest in YIMBYnews


Great news! Infill on Michigan is always great.
Just that little detail makes bulky balconies sooooooo much more attractive and pleasant from the street view while still providing a bit of privacy at the face.
I wish these were the standard balcony vernacular taking over everywhere. See? A cornice is not that hard. They don’t even have to be as decorative as the one rendered. A simple band is just as effective.
Completely agree. It’s frustrating to see many here put all the blame for bad design on codes. A lot of the time it is just cheapness or laziness.
If you’re referring to fact the balconies are more brick than railing, I fully agree. It’s also a very vintage Chicago element. Everyone in my vintage building has at least one of these mostly brick, micro-terraces. You just have to keep the floor drain clear because they hold water like a bathtub. 😉
Am glad to see the infill and the fact that the buildings are going to look like traditional Chicago 6 flats. Way to go!
Fantastic density that will continue to help Bronzeville flourish and believe it or not Hanna is capable of designing something half decent!
Had to do a double take when I saw their name lol
Hanna Architects seems to be branching out. Still ubiquitous, but now a little variety. Projects on the South and West Sides are always good news.
Does anyone have contact info for this guy Hanna? I attempted to reach out to an office in the loop and was informed they don’t do projects like this. I am wondering if I have the wrong guy.
Their other project unveiled this week had an interestingly designed entryway. I’m hoping they’re able to make more of their builds with some flair to them.
Amazing. This is the type of housing development we need more of in Chicago.
What will be the size of each unit
This is awesome! more of this!
I don’t understand why these have to be approved? We should allow 4 unit buildings everywhere in the city. There needs to be a city wide change in zoning.
While I agree with you, these are 22/23 unit buildings
2 contain 22 units and 2 contain 23 units. 90 units in total. Though it seems like a reasonable density for most of the city.
Cause Aldermen love their power
I agree. Just another step in the process. Let them build before construction costs go up!
As someone who lives in the area, I like the sounds of 90 units to a long vacant lot. Hopefully this can lead to more retail infill as well on the nearby State and Indiana corridors. Ideally, some mixed used developments similar to some of the new buildings on Pershing.
Good Bronzeville needs more density. I hope developers Build more high rises in the future.
I am really excited about this development! How do I get my name on the tenant list?
Thanks Dorothy Hayes