Plans have been revealed for a new mixed-use development at 3188 South Archer Avenue in McKinley Park. Located near the intersection with South Wood Street and bound by the Stevenson Expressway to the north, the proposal will replace a large vacant lot often used as a junkyard. Efforts are being led by SkyRiver Archer Development LLC.

Site context map of 3188 S Archer Ave by Vari Architects
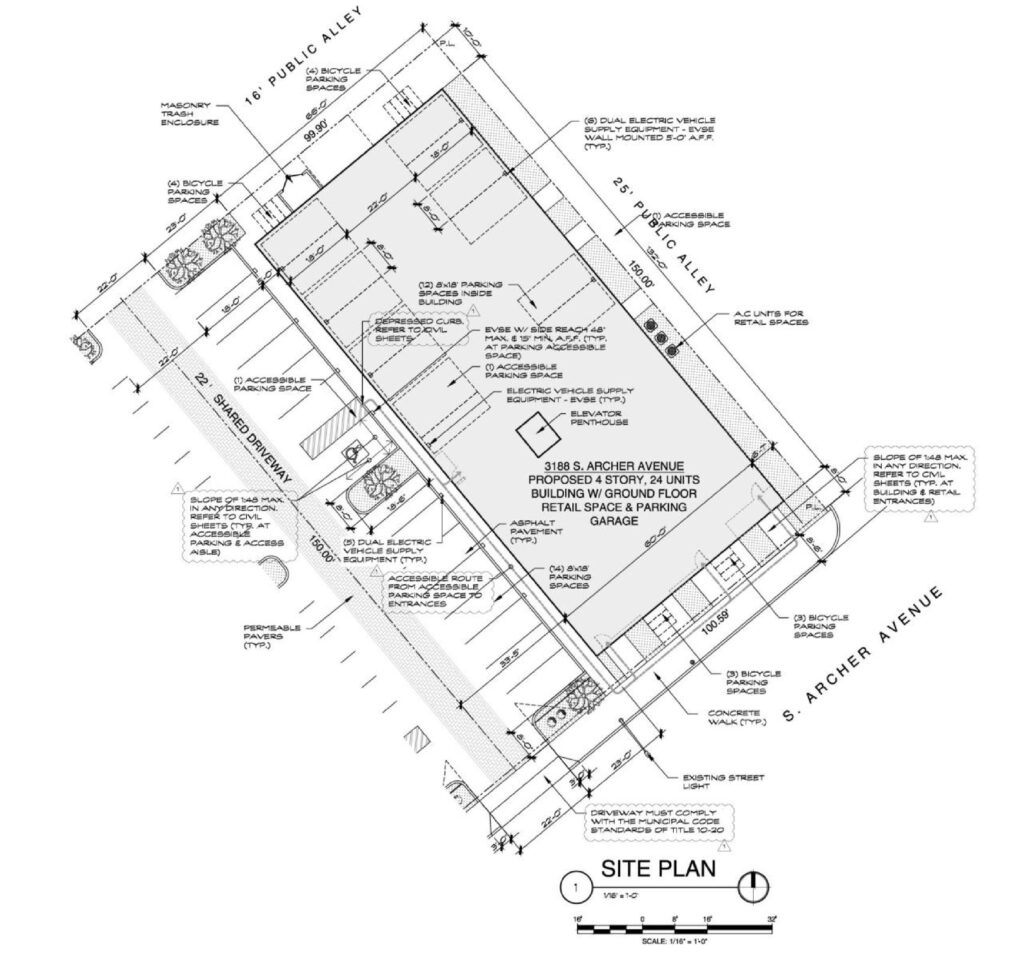
The project is set to rise four stories and 47 feet in height, and is being designed by local firm Vari Architects. The ground floor will feature nearly 3,000 square feet of retail space split into three separate storefronts, along with a 13-vehicle parking garage in the rear. This will be joined by an additional 14 outdoor spaces located along a shared side driveway.

Site plan of 3188 S Archer Ave by Vari Architects
The upper levels of the building will contain 24 residential units, split evenly between two-bedroom and three-bedroom layouts. More uniquely, none of the floor plans will include interior bedrooms. The development will also include affordable units, though the final count has not been confirmed.

Floor plans of 3188 S Archer Ave by Vari Architects
None of the units will contain private balconies, and the building will not feature a shared rooftop deck. The structure itself will be clad in a predominantly brick facade accented by aluminum panels. The team has received approval from the Zoning Board of Appeals and has applied for permits, though a construction timeline has not yet been announced.
Subscribe to YIMBY’s daily e-mail
![]()
Follow YIMBYgram for real-time photo updates
Like YIMBY on Facebook
Follow YIMBY’s Twitter for the latest in YIMBYnews


I don’t love the side parking lot. I wish they could get some arrangement with the lot across the alley, but they may not be willing to sell.
Fair. But replacing vacant lots with housing is the overall trend line we need to be seeing.
For whatever reason, Vari loves a highly visible parking lot. They have built three buildings within one block of each other in my neighborhood. Two of them have their parking lots on full display to the street, creating asphalt gaps with the adjacent buildings.