Plans have been revealed for a residential development at 2724 North Lehmann Court in Lincoln Park. Located just south of the intersection with West Diversey Parkway, the slim site previously held a three-story residential building, which was issued a demolition permit late last year. Once demolition is complete, developer Contemporary Concepts can move forward with construction plans.

Site context, with 2724 North Lehmann in red an 607 West Diversey in blue, sandwiching The Inn at Lincoln Park. Via Google Maps

2724 North Lehmann Court, photographed in April 2025
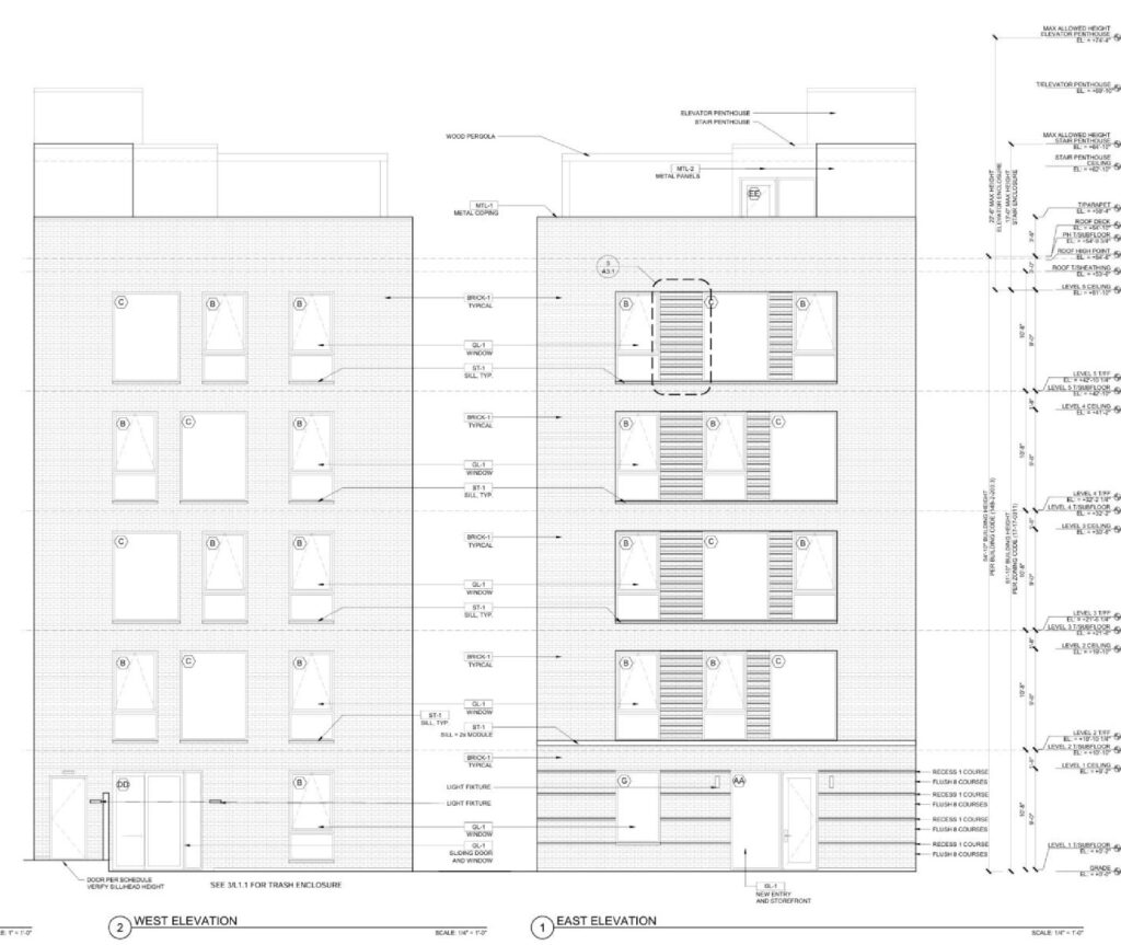
Contemporary Concepts is also behind the nearby residential conversion of the Leon Hotel, with this property sitting just behind the upcoming redevelopment of the Inn at Lincoln Park by a different team. The project along Lehmann is being designed by local firm Studio Dwell Architects and will rise five stories tall upon completion.

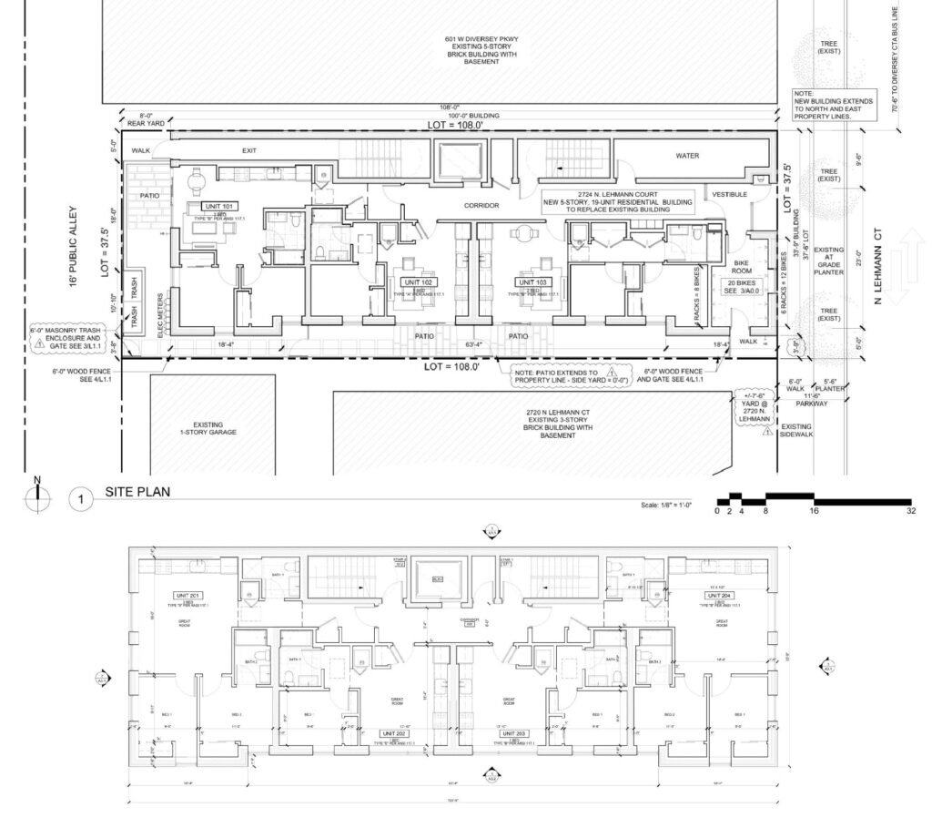
Floor plans of 2724 N Lehmann Ct by Studio Dwell Architects
The ground floor will include a small lobby along with a few residential units. The building will not feature any on-site parking, aside from a bike room along the street frontage. The upper floors will contain the remaining units, bringing the total to 19 residential units, consisting of nine one-bedroom and 10 two-bedroom layouts.

Elevations of 2724 N Lehmann Ct by Studio Dwell Architects
Most units will not have private outdoor space; however, a shared rooftop deck will be provided. The building will be clad in gray brick with black metal accents. Due to its relatively small size, the project will only require approval for select zoning variances, such as the removal of parking requirements. A community meeting will be held soon, though no timeline has been announced.
Subscribe to YIMBY’s daily e-mail
![]()
Follow YIMBYgram for real-time photo updates
Like YIMBY on Facebook
Follow YIMBY’s Twitter for the latest in YIMBYnews


Inspirational and so beautifully presented; the rendering must have taken at least 8 minutes to create 😉
This is what they did in 8 minutes…lol
Maybe less than 8 since it looks like they used ChatGPT. “Create the most cost-efficient and ugly design possible.”
Most cost efficient & ugly would not have had the change in masonry textures at the window ribbons.
I will hold out judgement on whether this will be an attractive building until it is complete, since understated can turn out quite nice if attention is paid to detail.
19 units and no onsite parking except for bikes. Huge win, my friends
I don’t understand the drawing. It will share a common wall with an existing building that has windows on that side of the building?
Looks like there’s a tiny bit of space in between and seems like they’re staying within the property they own so it’s all legal
No it wouldn’t be legal. By code you have to have either 3′ of space or no space at all. For no space at all the shorter building would be flashed to the taller one in order to seal the opening between them. And “a tiny bit of space” is impractical because you’d never be able to access it for repairs. The building next door is under rehab by the same group who have obviously scarified the windows for this structure.
This seems very dense for a 4000 Sqfeet piece of property with 19 units. What was the old zoning on the original building? Love the Milwaukee blonde brick facade on the 1908 building!!!
Regarding “what was the zoning on the old building?” Zoning rules, as we know them and specifically regarding density, did not come into effect until 1957 in Chicago so the old building would not have been constrained by zoning requirements. Note that zoning is not “on” a structure but is “on” the land.
The “the land” is zoned RM-5 .with 4000 sq feet foot print. This allows 10 units ….how is this project getting 19 units