Zoning has been approved for the residential conversion of 56 East Superior Street in River North. Sitting mid-block between North Rush Street and North Wabash Avenue, the conversion of the office-loft building was first announced earlier this summer after years of litigation on the site over a previous skyscraper proposal.

Site map of 50 E Superior Street via Google Maps

View of 50 E Superior Street via JLL
Rising seven stories tall, the former Western Methodist Book Concern building has sat relatively vacant as of late, having been rezoned in 2017 for the aforementioned skyscraper. Now, developers Honore Properties and Peerless Development have brought forward a conversion designed by local architecture firm Kennedy Mann.

Site plan of 56 E Superior Street by Kennedy Mann

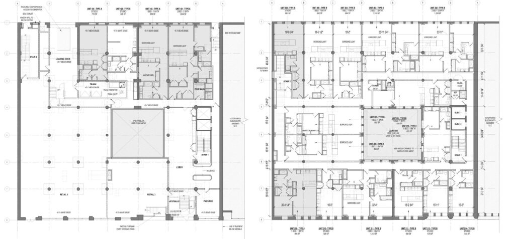
Floor plans of 56 E Superior Street by Kennedy Mann
The ground floor will contain two small retail spaces, along with a new residential lobby and some units in the rear of the building. The floors above will hold the rest of the 88 residential units, consisting of 29 studios, 40 one-bedrooms, and 19 two-bedrooms, 18 of which will be required to be affordable. Many of the units will utilize borrowed light for the bedrooms.

Elevation of 56 E Superior Street by Kennedy Mann
Residents will also have access to a fitness room, community space, green space within the central courtyard, and a rooftop deck. The project will include a façade restoration for the aging structure. The zoning approval came from the Zoning Board of Appeals, giving the developer the green light to apply for permits. A timeline is currently unknown.
Subscribe to YIMBY’s daily e-mail
![]()
Follow YIMBYgram for real-time photo updates
Like YIMBY on Facebook
Follow YIMBY’s Twitter for the latest in YIMBYnews


This is an epic lost opportunity.
I live in the neighborhood, however there are some (many) that don’t want more density. Which is a bit rich for people who live a block from Michigan Avenue 🙂
There will be many more opportunities to build tall buildings in your neighborhood. There are only limited opportunities to preserve a small sliver of Chicago’s past among the forest of mid and high rises.
The building looks absolutely unremarkable. I can’t find anything special about it online either.
EVERY building in Chicago is a small sliver of Chicago’s past. We are not a museum.
I was hoping for a skyscraper, especially after One Chicago was completed nearby. But gaining 88 units is still a nice win.
I’m curious what the facade restoration will look like.
I see this as a win, I’m glad that these historic buildings are being repurposed.
There are still plenty of lots that can be developed into highrises
The absurdity of a bankrupt city employing a whole lot of highly paid professionals to cogitate for months on whether changing the use of a building to residential is going to destroy the neighborhood. Pure busy work. Expensive busy work – not just salaries and the cost of having the employees, but also the lost opportunities from owners who give up, don’t want to risk sinking heavy cost into trying the process, and just plain old waiting time. (Another example: my recent home renovation hit about a 6 week delay (several thousand dollars in taxes paid, during that time, I might add) while Zoning decided a bizarre little issue they created. They finally gave up, because their solution would have created a haven for rats. Every email in the chain included 6 Zoning employees pondering this stupidity.)
I’m not sure what your rant has to do with this specific project. I think the community objected to the skyscraper and the lawsuits were between the various businesses involved in the project. Also not specific to this project, but we need some paid professionals to help guide development and zoning for a host of different reasons.
They basically approved a block-long casino and a stadium in the span of a summer. Let’s say half a year. (Yes, these projects have been in the works for a minute, but actual approval for the developments is forthcoming.)
The land surrounding the United Center was cleanly passed and encouraged. Whether we agree on the fund allocations for LaSalle St. developments or not, millions have been allocated to get the ball rolling, with several projects already underway. Without professionals to guide the big picture, you end up with haphazardly designed cities like those in Texas or Toronto. Even Atlanta piques with unremarkable. Remember that Old Town skyscraper blocked for years from starting because the city said yes, but neighbors said no?
Your rants are starting to become clouded and lack the scope to account for all variables. You default on the city being the boogyman and rarely add positive credit when it’s due.
Hate to tell you #1: the most desired parts of our city were built without the help of zoning professionals. People built. Pretty simple. Some of the least desirable parts of our city – try Central Station, try Lakeshore East, try Prairie Meadows, Sandburg Village, or hell, think back to exquisitely planned wonders like Cabrini Green and the Robert Taylor Homes – were planned by thoroughgoing professionals.
Hate to tell you #2: our city is teetering on the edge of bankruptcy. Throwing $157,000,000 at private owners to convert office buildings to residential which, if left alone, they’d probably do anyway – assuming the city would let them – is not a sound use of increasingly scarce resources. No amount of nuanced thinking about all the variables can validate that decision.
When people like you bring up these points, it’s a “rant”
But when THEY complain (and they DO complain–all day long to no end) about design, parking, developers being ‘greedy’, etc etc it is “justified outrage”
Keep doing your thing, a lot of people agree with you, trust me.
– Lake Shore East was a master plan designed by SOM in 2001. “In its graceful marriage of nature and city, SOM’s master plan captures the essence of the famed 1909 Plan of Chicago by Daniel Burnham and Edward Bennett.”
Privately developed, but the city did lend approval.
– Sandburg Village was initiated by Arthur Rubloff & Company, and John Cordwell led the master plan. This urban renewal project displaced 850 families, but a private developer initiated the plan.
Is what you’re getting at that private developers are responsible for delivering what you don’t like, but because the city had to approve, they are the ones responsible? Tf kinda logic is that?
Lincoln Park (originally Lake Park) was designed to be cemetery land. Swain Nelson and Olaf Benson then became significant figures in evolving the park space, along with many other collaborators.
Everything Chicago-based today came about from the 1830s grid system. Then, the 1909 Plan of Chicago by Daniel Burnham and Edward H. Bennett brought about the City Beautiful movement. And the 1923 Zoning Ordinance is what established all these “most desired parts of our city,” as you so stated. The best parts of Chicago wouldn’t exist without such plans. You think any of this would exist if developers had a go at their own organic construction? If yes, I beg you to study the suburbs of Will and DuPage counties. Even Winnetaka and Evanston had master plans, with Evanston’s published in 1876.
Planners do much more than just zoning. Not sure why you’re so stuck on this detail. They do more than one thing. I recommend interviewing someone in the industry.
Your first point is packed with so many fallacies.
This is a very exciting development and the renderings look beautiful. The architect and developers have a great track record, too. Pumped to see some new life breathed into this building. The interior courtyard will be a lovely and unique feature for these residents.