A Transit Oriented Development at 1101 West Berwyn Avenue in Edgewater is wrapping up exterior work ahead of a planned March 2026 opening. A peek through the windows that abut the newly-rebuilt Berwyn elevated platform shows studs inside units, so there’s still a ways to go on the interiors. But outside, brickwork is done and most of the windows are in.

Photo by Daniel Schell

Photo by Daniel Schell

Photo by Daniel Schell

Photo by Daniel Schell
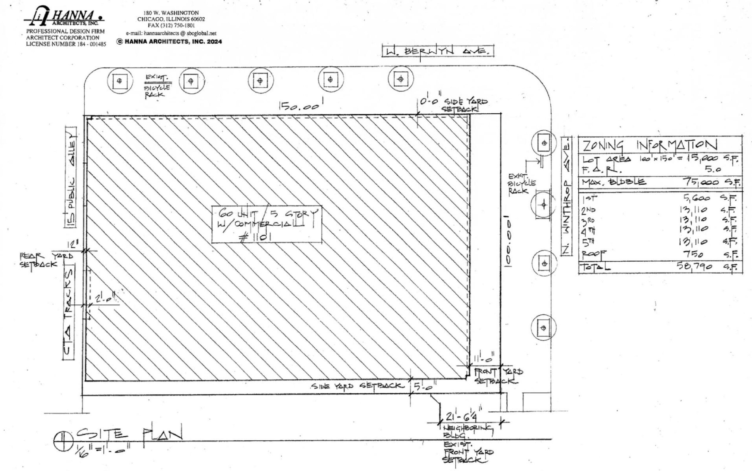
The building will have a pair of first-floor retail spaces totaling approximately 3,800 square feet, and those areas have not begun finishes yet. A 20-space parking garage will also be included at ground level, accessed from the alley under the L tracks. The five-story structure from Panoptic Group will deliver 56 rental apartments and offer residents the use of a rooftop deck atop the fifth floor. The units will all be one-bedroom and two-bedroom floor plans, with 11 of them set aside as affordable.
**Correction**: All floor plans will be two-bedroom, and all units will be market rate.

Rendering of 1101 West Berwyn by Hanna Architects

Site plan of 1101 West Berwyn by Hanna Architects

Ground floor plan of 1101 West Berwyn by Hanna Architects

Typical floor plan of 1101 West Berwyn by Hanna Architects

Photo by Daniel Schell

Unfinished ground-floor space. Photo by Daniel Schell

The back of the building, from the Berwyn L platform. Photo by Daniel Schell

Photo by Daniel Schell

Photo by Daniel Schell

Site context, via Google Maps

Local transit options, via Google Maps
1101 West Berwyn is located on the southwest corner of West Berwyn and North Winthrop Avenues. The new entrance to the Berwyn Red Line elevated platform is right next door. There are also stops here for the CTA’s Route 36 and 92 buses. At the west end of the block are stops for the north-south 36 bus at Broadway. A two-block walk east leads to stops for Routes 136, 146, 147, and 151 buses at Sheridan Road.
Subscribe to YIMBY’s daily e-mail
![]()
Follow YIMBYgram for real-time photo updates
Like YIMBY on Facebook
Follow YIMBY’s Twitter for the latest in YIMBYnews


Looking good! So convenient having the Berwyn station right there.
Thanks for the maps helped me know exactly the location
Hi I’m one of the owners of the property and want to correct a couple things in your description…
The unit mix consists of all 2bedrooms with approximately half 2 baths & other half 1baths.
There are no affordable units so all 56 units are market rent.
Thank you
1101 Berwyn LLC
Thank you, William. Corrections have been added.
How us this allowed to not have “affordable” units? What wheels got greased here.
As long as there’s no upzoning there’s no ARO requirements for new construction.