Foundation work has begun on a five-story, 48-unit residential building at 750 West North Avenue on the southern edge of Lincoln Park. Developer Base 3 got a permit to begin construction on September 22, and now pile and excavation work is evident from the Brown Line tracks snaking around the site.

750 West North Avenue by Red Architects

Piles, shoring, and a pile of dirt from the L, November 14. Photo by Daniel Schell

Photo by Daniel Schell

Photo by Daniel Schell

750 West North Avenue by Red Architects
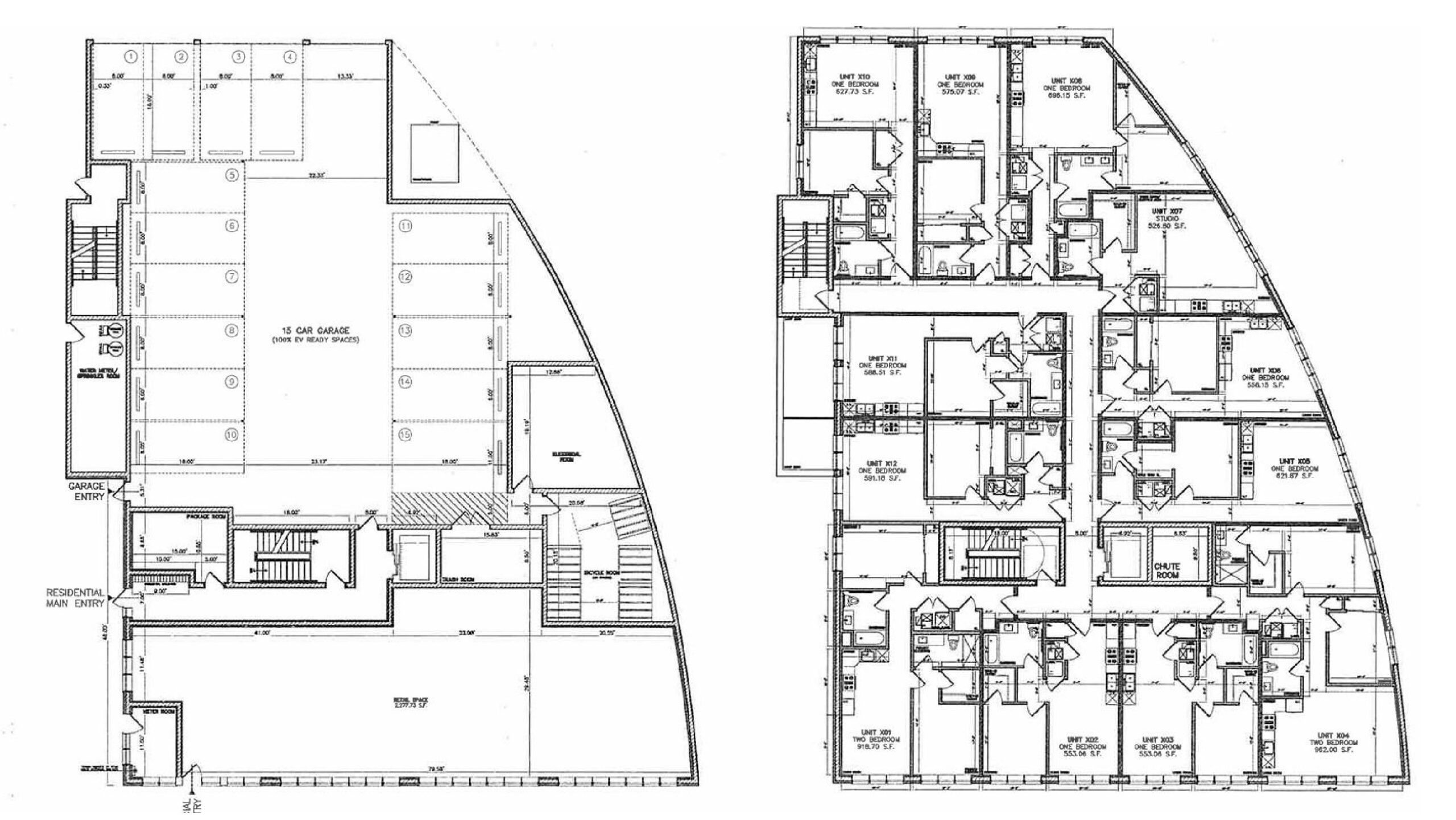
Red Architects worked on the design for 750 West North, and Base 3 will be their own general contractor. Plans call for a shared rooftop deck atop the structure, with a 15-space parking garage and one retail space of approximately 2,300 square feet fronting North Avenue at street level. There will also be storage for 50 bicycles.

Curves piles for the east façade, 11/23/2025. Photo by Daniel Schell

Photo by Daniel Schell


Photo by Daniel Schell
Residential units will include studio, one-bedroom, and two-bedroom floor plans. Base3 anticipates welcoming the first tenants in spring 2027. These will be rental units, but pricing information has not yet been made public.

Photo by Daniel Schell

Floor plans of 750 West North Avenue by Red Architects

Photo by Daniel Schell

Site prep, with the surface parking lot now torn out, September 2025. Photo by Daniel Schell

Site context of 750 West North Avenue, via Google Maps

Nearby transit options, via Google Maps
Despite its location beneath the curving Brown Line tracks, 750 West North is closer to Red Line access, with the North/Clybourn subway station just a block to the west. At street level, there are stops for the CTA’s north-south Route 8 bus and east-west Route 72 bus at the intersection of Halsted Street and North Avenue. The Sedgwick Brown Line platform is a half-mile walk east on North Avenue.
Subscribe to YIMBY’s daily e-mail
![]()
Follow YIMBYgram for real-time photo updates
Like YIMBY on Facebook
Follow YIMBY’s Twitter for the latest in YIMBYnews


A development here has been a LONG time coming, although I prefer the prior proposal.
There is a type-o in your post, however. You called this 750 W Chicago Ave in the early part of this article
That ain’t even a typo; that’s just me not paying attention. Thank you; I fixed it.
FYI, the headline says 750 W Chicago when this is actually 750 W North…
ooof…thank you.
Glad to see this one getting built. Nice location with an easy walk to the Clyburn Station and multiple bus stops.
Seeing the brown line from above – I have questions on what used to be here that made the train snake like this. Wish years ago they could have straightened it out – but alas. Super glad more infill on North Ave is happening.
Totally needs a Brown line stop here. Either to the north as it crosses over Halsted, not sure it will fit. Or to the northwest behind those homes.