With the arrival of excavation equipment in the final days of October, construction has now begun for a new residential building at 2644 North Lakewood Avenue in Lincoln Park. The homes replace a large 1992-built single-family dwelling at 2642 North Lakewood that was permitted for demolition in July and razed in late summer.
On the way is a three-story plus basement, four-unit condominium project from Bak Home Development. They received a new construction permit from the City of Chicago on September 29 of this year with a reported cost of an even $2 million. Bachula Development is the general contractor, working with plans by architect Matthew Skoda.
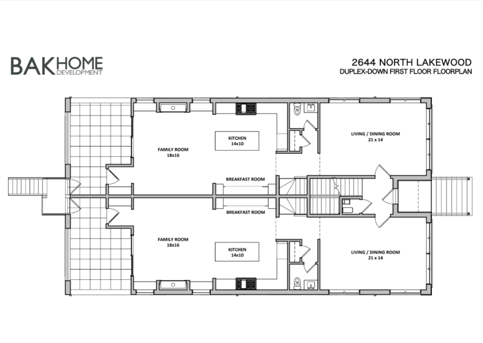
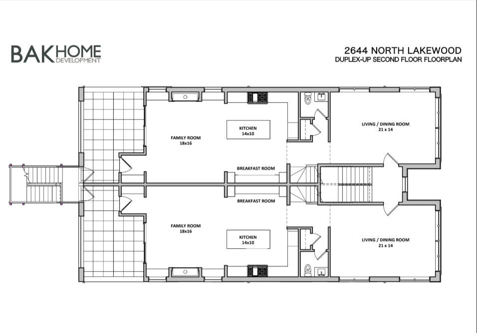
All four condos will be laid out in four-bedroom floor plans, with a pair of duplex-down units on the basement and first levels, and two duplexes-up occupying the second and third floors.

Lower level plan, courtesy of Bak Home Development.

First floor plan, courtesy of Bak Home Development.

Second floor plan, courtesy of Bak Home Development.

Third-floor plan, courtesy of Bak Home Development.
Each duplex-up will have its own roof deck atop the third floor, as well as a rear deck off the second-level family room. Duplex-down residents will have access to roof decks atop the detached two-car and three-car garages on the alley, plus a back deck off the elevated first floor that also leads down to a private rear yard. Bak Home Development expects to have units available for inhabitation in fall 2026.

Rooftop plan, courtesy of Bak Home Development.

Outdoor space plan, courtesy of Bak Home Development.

2642 North Lakewood Avenue. Photo by Daniel Schell

August demolition. Photo by Daniel Schell

Post-demolition, 10/17/2025. Photo by Daniel Schell

An excavator arrived on site October 30th. Photo by Daniel Schell

Excavation underway, 11/05/2025. Photo by Daniel Schell

Photo by Daniel Schell

Photo by Daniel Schell
Subscribe to YIMBY’s daily e-mail
Follow YIMBYgram for real-time photo updates
Like YIMBY on Facebook
Follow YIMBY’s Twitter for the latest in YIMBYnews


There’s multiple vacant lots just south of this site and yet we’re still demolishing fortresses.
It doesn’t work that way. This was the one that was for sale not the empty lots nearby.
I actually like this building, but why did they have to demolish a beautiful building to make it happen? I’m sure they could have found equal size lots nearby. Why do we continuously allow this to happen? This is a net loss in the end.
That Greek temple SFH from 1992 was nothing special, IMO.
Now we get 4 dwelling units instead of 1, and the new building looks better too boot.
Net gain in the end!
Wow that’s a lovely design. Looking forward to it!
This looks so much better when the front bumpouts are living spaces with windows rather than recessed balconies. Let’s get back to this now and leave the balconies on every building in the past.